Louer Résultats de votre recherche Détail de l'annonce

Location Appartement 4 pièces de 70m² à 1 024 EUR/mois à TOURCOING

CARRE VERDE - Appartement - 4 pièces
A propos de ce bien :

1 023,86EUR / mois

Charges comprises

  • Appartement
  • 101 RUE DE BONDUES
    59200 TOURCOING
  • 4 pièces
  • 70m²
  • 2ème étage
  • Disponibilité immédiate
  • DPE : D

Location soumise au respect d'un plafond de ressources/revenus

Calculer le plafond de ressources

Ce bien vous est proposé par notre filiale :

AFEDIM Gestion
Mes notes

Ce bien a attiré votre attention ?

Retrouvez vos notes personnelles en vous connectant à votre espace.

Connexion

Pas encore de compte ? Créez un espace utilisateur AFEDIM.

Description du logement

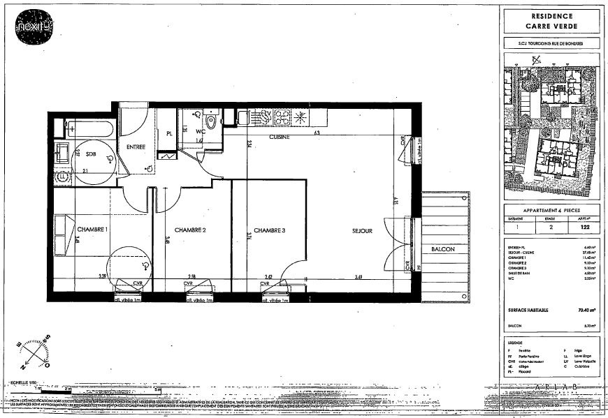
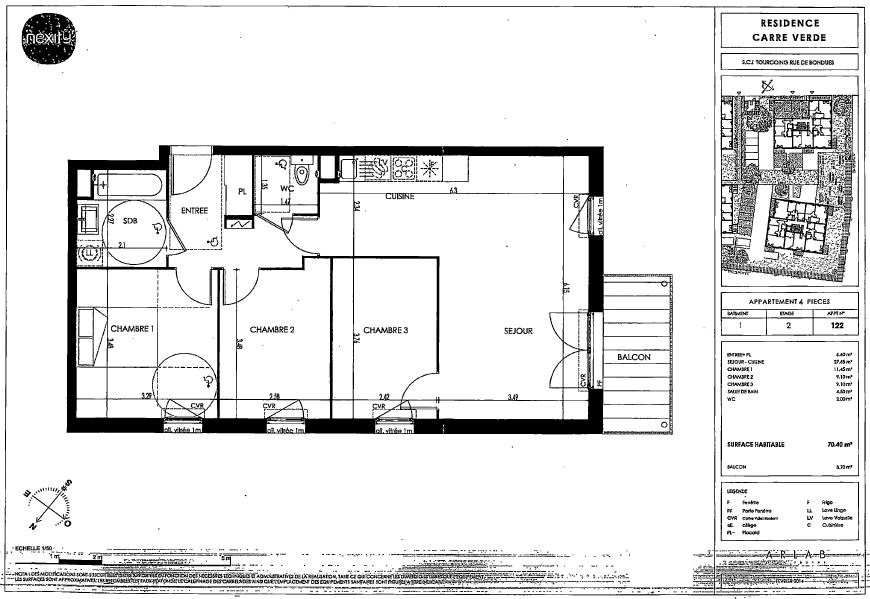
A TOURCOING. A la lisière de Bondues et du somptueux château du Vert Bois, proche des commodités. Dans la résidence CARRE VERDE, un appartement T4 n° 122 (lot 7) de 70.40m² avec balcon de 5.70m² exposé sud-ouest, situé au 2ème étage avec ascenseur. Il se compose d'une entrée avec placard, d'un séjour avec cuisine ouverte aménagée et équipée (plaque, hotte), de trois chambres, d'une salle de bains et d'un WC indépendant. A l'extérieur, deux emplacements de stationnement n° 6 et 13 (lot 21 et 37). Chauffage électrique individuel. Eau chaude et froide, entretien des parties communes compris dans les provisions sur charges mensuelles et donnant lieu à une régularisation annuelle. Les honoraires de location TTC (à la charge du locataire) incluent le montant de rédaction des états des lieux facturé pour 212 euros TTC, après réalisation lors de l'entrée dans les lieux. A visiter sans tarder. Pour plus de détails sur ce logement, vous pouvez consulter la fiche descriptive de ce bien, sur notre site internet Afedim.


Voir le plan du lot


Numéro commercial : 122

Référence du bien : 0027510


Caractéristique(s) du logement

  • Surface habitable : 70 m²

  • 2ème étage

  • Chauffage individuel - Electrique

  • Cuisine : Non aménagée et non équipée

  • Orientation : Sud-Ouest

  • Placard(s)


Conditions financières

  • Loyer hors charges : 754,86 EUR

  • Montant du dépôt de garantie : 754,86 EUR

  • Provision sur charges : 269 EUR

  • Honoraires TTC à la charge du locataire : 706 EUR

  • Honoraires TTC états des lieux locataire : 212 EUR


Bilan énergétique


Performance du logementGaz à effet de serre

Échelle de performance énergétique s'étalant du niveau A, correspondant à un logement extrêmement performant, au niveau G, correspondant à un logement extrêmement peu performant. Les niveaux F et G sont qualifiés de passoires énergétiques. La consommation (énergie primaire) est de 132 kWh/m².an et est associée à une émission de 4 kg de dioxyde de carbone/m².an (voir détail de l'émission de gaz à effet de serre ci-après), cela correspond à une performance énergétique de niveau D.

Échelle d'émissions des gaz à effet de serre s'étalant du niveau A, correspondant à peu d'émission de CO2, au niveau G, correspondant à des émissions très importantes. Avec une émission de 4 kg de dioxyde de carbone/m²/an, l'émission de gaz à effet de serre est de niveau A.


Date du dernier diagnostic : 10/06/2025
Montant estimé des dépenses annuelles d'énergie pour un usage standard

Les coûts sont estimés en fonction des caractéristiques du logement et pour une utilisation sur 5 usages (chauffage, eau chaude sanitaire, climatisation, éclairage, auxiliaires).


entre 780 EUR et 1 100 EUR par an


Prix moyens des énergies indexés sur l'année 2025 (abonnement compris)

Etat des risques
Consultez l'état des risques réglementés pour l'information des acquéreurs et des locataires ici
Les informations sur les risques auxquels ce bien est exposé sont disponibles sur le site Géorisques : www.georisques.gouv.fr
Localisation du bien
Vos temps de trajet moyen
  • Ajouter un point d'intérêt personnalisé
 Nature du lieuAdresseDurée du trajet en voitureDurée du trajet en transport en communDurée du trajet en véloDurée du trajet à piedActions    Actions

Ce bien a attiré votre attention ?

Ajoutez vos emplacements préférés pour calculer le temps de trajet depuis ce bien.

Connexion

Pas encore de compte ? Créez un espace utilisateur AFEDIM.

OK X
Nous contacter

Pour toute demande de renseignements complémentaires, demander à visiter le bien ou tout simplement déposer votre dossier de location...
N'hésitez pas à nous contacter !


Autres annonces à proximité