Louer Résultats de votre recherche Détail de l'annonce

Location Appartement 3 pièces de 55m² à 742 EUR/mois à LES SABLES D OLONNE

CAP OLONA - Appartement - 3 pièces
A propos de ce bien :

742EUR / mois

Charges comprises

  • Appartement
  • 41 RUE DE LA MARNE
    85100 LES SABLES D OLONNE
  • 3 pièces
  • 54,78m²
  • 1er étage
  • Disponible dès le 30/05/2026
  • DPE : C

Ce bien vous est proposé par notre filiale :

AFEDIM Gestion
Mes notes

Ce bien a attiré votre attention ?

Retrouvez vos notes personnelles en vous connectant à votre espace.

Connexion

Pas encore de compte ? Créez un espace utilisateur AFEDIM.

Description du logement

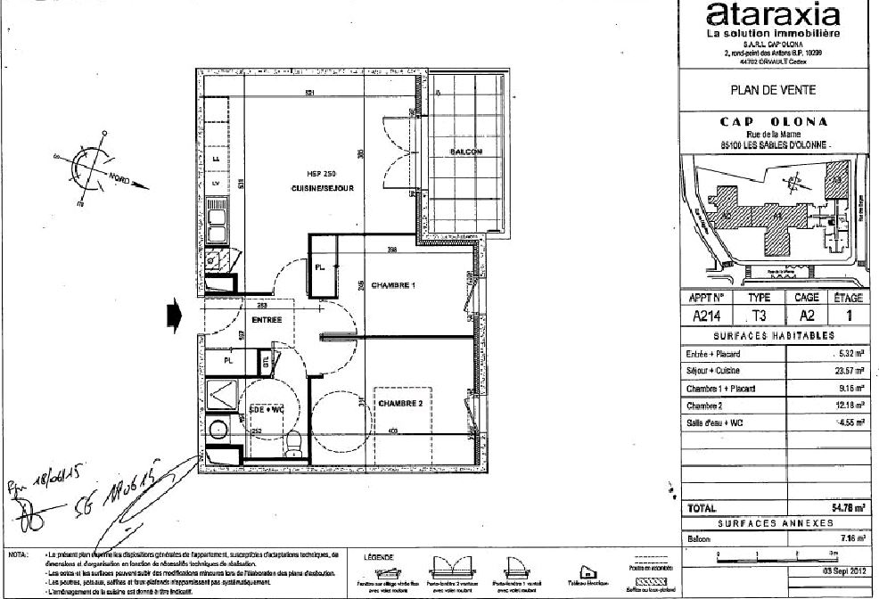
Aux Sables d'Olonne, dans un quartier résidentiel et pavillonnaire, à deux pas des commerces du centre ville et du marché, Résidence CAP OLONA, appartement T3 n°A214 de 54.78m² au 1er étage avec ascenseur, composé d'une entrée avec placard, un séjour avec coin cuisine aménagé et équipé donnant sur un balcon de 7.16m², deux chambres dont une avec placard, une salle d'eau avec WC. Au sous-sol, une place parking n° 32. Eau chaude et chauffage individuel gaz. Entretien parties communes, entretien ascenseur et espaces verts communs, compris dans les provisions sur charges mensuelles et donnant lieu à une régularisation annuelle. Les honoraires de location TTC (à la charge du locataire) incluent le montant de rédaction des états des lieux facturé pour 165 euros TTC, après réalisation lors de l'entrée dans les lieux. Logement disponible au 30/05/2026


Voir le plan du lot


Numéro commercial : A214

Référence du bien : 0045344


Caractéristique(s) de l'immeuble

  • Ascenseur


Caractéristique(s) du logement

  • Surface habitable : 54,78 m²

  • Balcon (7,16 m²)

  • 1er étage

  • Eau chaude individuelle - Chaudière à gaz

  • Chauffage individuel - Chaudière à gaz

  • Cuisine : Aménagée et équipée

  • Placard(s)


Annexes

  • Parking


Conditions financières

  • Loyer hors charges : 700 EUR

  • Montant du dépôt de garantie : 700 EUR

  • Provision sur charges : 42 EUR

  • Honoraires TTC à la charge du locataire : 552 EUR

  • Honoraires TTC états des lieux locataire : 165 EUR


Bilan énergétique


Performance du logementGaz à effet de serre

Échelle de performance énergétique s'étalant du niveau A, correspondant à un logement extrêmement performant, au niveau G, correspondant à un logement extrêmement peu performant. Les niveaux F et G sont qualifiés de passoires énergétiques. La consommation (énergie primaire) est de 75 kWh/m².an et est associée à une émission de 13 kg de dioxyde de carbone/m².an (voir détail de l'émission de gaz à effet de serre ci-après), cela correspond à une performance énergétique de niveau C.

Échelle d'émissions des gaz à effet de serre s'étalant du niveau A, correspondant à peu d'émission de CO2, au niveau G, correspondant à des émissions très importantes. Avec une émission de 13 kg de dioxyde de carbone/m²/an, l'émission de gaz à effet de serre est de niveau C.


Date du dernier diagnostic : 04/02/2025
Montant estimé des dépenses annuelles d'énergie pour un usage standard

Les coûts sont estimés en fonction des caractéristiques du logement et pour une utilisation sur 5 usages (chauffage, eau chaude sanitaire, climatisation, éclairage, auxiliaires).


entre 479 EUR et 649 EUR par an


Prix moyens des énergies indexés sur les années 2021, 2022 et 2023 (abonnements compris)

Etat des risques
Consultez l'état des risques réglementés pour l'information des acquéreurs et des locataires ici
Les informations sur les risques auxquels ce bien est exposé sont disponibles sur le site Géorisques : www.georisques.gouv.fr
Localisation du bien
Vos temps de trajet moyen
  • Ajouter un point d'intérêt personnalisé
 Nature du lieuAdresseDurée du trajet en voitureDurée du trajet en transport en communDurée du trajet en véloDurée du trajet à piedActions    Actions

Ce bien a attiré votre attention ?

Ajoutez vos emplacements préférés pour calculer le temps de trajet depuis ce bien.

Connexion

Pas encore de compte ? Créez un espace utilisateur AFEDIM.

OK X
Nous contacter

Pour toute demande de renseignements complémentaires, demander à visiter le bien ou tout simplement déposer votre dossier de location...
N'hésitez pas à nous contacter !


Autres annonces à proximité