Louer Détail de l'annonce

Location Maison 4 pièces de 89m² à 917 EUR/mois à LES SABLES D OLONNE

VIA OLONNA - Maison - 4 pièces
A propos de ce bien :

917EUR / mois

Charges comprises

  • Maison
  • 17 rue de la Petite Bardinière
    85340 LES SABLES D OLONNE
  • 4 pièces
  • 89,25m²
  • Disponible dès le 07/06/2026
  • DPE : C

Location soumise au respect d'un plafond de ressources/revenus

Calculer le plafond de ressources

Ce bien vous est proposé par notre filiale :

AFEDIM Gestion
Mes notes

Ce bien a attiré votre attention ?

Retrouvez vos notes personnelles en vous connectant à votre espace.

Connexion

Pas encore de compte ? Créez un espace utilisateur AFEDIM.

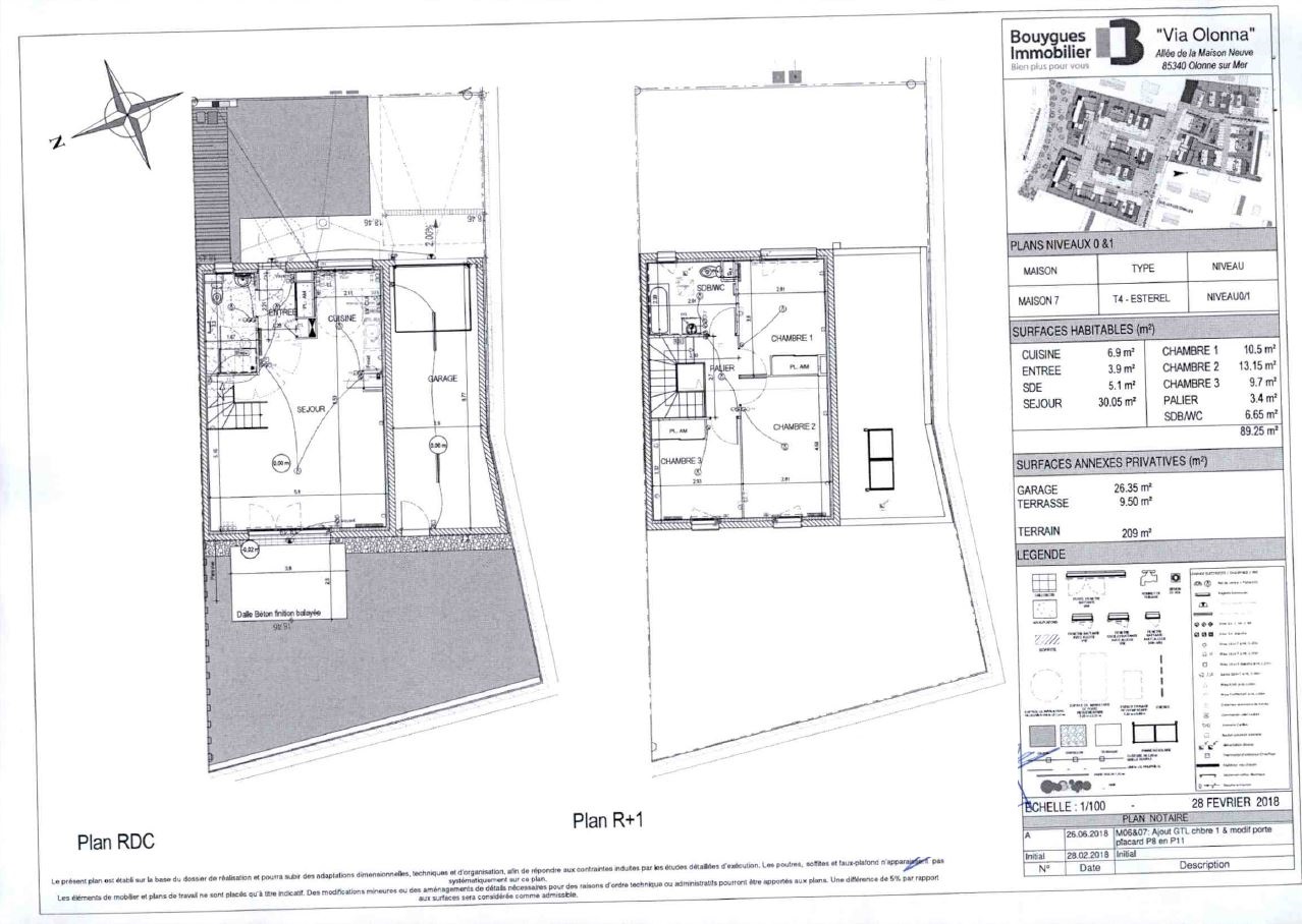
Description du logement

Dans un environnement pavillonnaire, Via Olonna propose un cadre de vie verdoyant et calme. Nous vous proposons une maison (n°7) de 89,25m² sur deux niveaux, composée d'un séjour de 30m², d'une cuisine ouverte, d'une salle d'eau avec WC au RDC, et de trois chambres et d'une salle de bain avec WC au premier étage. Le logement dispose également d'un garage, d'une terrasse, d'un stationnement de parking et d'un jardin. Chauffage et eau chaude individuels gaz. Entretien parties communes et espaces verts compris dans les provisions sur charges mensuelles et donnant lieu à une régularisation annuelle. Les horaires de location 1 170.00 euros TTC (à la charge du locataire) incluent le montant de rédaction des états des lieux facturé pour 270 euros TTC, après réalisation lors de l'entrée dans les lieux. Plus de détails sur notre site AFEDIM.


Voir le plan du lot


Numéro commercial : M007

Référence du bien : 0036864


Caractéristique(s) du logement

  • Surface habitable : 89,25 m²

  • Eau chaude individuelle - Chaudière à gaz

  • Chauffage individuel - Chaudière à gaz

  • Cuisine : Aménagée et équipée

  • Orientation : Sud

  • Placard(s)


Conditions financières

  • Loyer hors charges : 902 EUR

  • Montant du dépôt de garantie : 902 EUR

  • Provision sur charges : 15 EUR

  • Honoraires TTC à la charge du locataire : 900 EUR

  • Honoraires TTC états des lieux locataire : 270 EUR


Bilan énergétique


Performance du logementGaz à effet de serre

Échelle de performance énergétique s'étalant du niveau A, correspondant à un logement extrêmement performant, au niveau G, correspondant à un logement extrêmement peu performant. Les niveaux F et G sont qualifiés de passoires énergétiques. La consommation (énergie primaire) est de 17 kWh/m².an et est associée à une émission de 17 kg de dioxyde de carbone/m².an (voir détail de l'émission de gaz à effet de serre ci-après), cela correspond à une performance énergétique de niveau C.

Échelle d'émissions des gaz à effet de serre s'étalant du niveau A, correspondant à peu d'émission de CO2, au niveau G, correspondant à des émissions très importantes. Avec une émission de 17 kg de dioxyde de carbone/m²/an, l'émission de gaz à effet de serre est de niveau C.


Date du dernier diagnostic : 19/08/2024
Montant estimé des dépenses annuelles d'énergie pour un usage standard

Les coûts sont estimés en fonction des caractéristiques du logement et pour une utilisation sur 5 usages (chauffage, eau chaude sanitaire, climatisation, éclairage, auxiliaires).


entre 830 EUR et 1 160 EUR par an


Prix moyens des énergies indexés sur l'année 2021 (abonnement compris)

Etat des risques
Consultez l'état des risques réglementés pour l'information des acquéreurs et des locataires ici
Les informations sur les risques auxquels ce bien est exposé sont disponibles sur le site Géorisques : www.georisques.gouv.fr
Localisation du bien
Vos temps de trajet moyen
  • Ajouter un point d'intérêt personnalisé
 Nature du lieuAdresseDurée du trajet en voitureDurée du trajet en transport en communDurée du trajet en véloDurée du trajet à piedActions    Actions

Ce bien a attiré votre attention ?

Ajoutez vos emplacements préférés pour calculer le temps de trajet depuis ce bien.

Connexion

Pas encore de compte ? Créez un espace utilisateur AFEDIM.

OK X
Nous contacter

Pour toute demande de renseignements complémentaires, demander à visiter le bien ou tout simplement déposer votre dossier de location...
N'hésitez pas à nous contacter !


Autres annonces à proximité