Louer Détail de l'annonce

Location Appartement 2 pièces de 45m² à 530 EUR/mois à TRELAZE

CARRE BLEU - Appartement - 2 pièces
A propos de ce bien :

530EUR / mois

Charges comprises

  • Appartement
  • 71 RUE VALONGO
    49800 TRELAZE
  • 2 pièces
  • 45,35m²
  • 1er étage
  • Disponible dès le 01/05/2026
  • DPE : C

Location soumise au respect d'un plafond de ressources/revenus

Calculer le plafond de ressources

Ce bien vous est proposé par notre filiale :

AFEDIM Gestion
Mes notes

Ce bien a attiré votre attention ?

Retrouvez vos notes personnelles en vous connectant à votre espace.

Connexion

Pas encore de compte ? Créez un espace utilisateur AFEDIM.

Description du logement

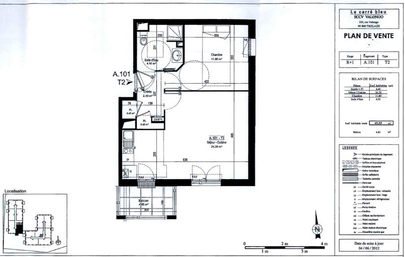
A Trélazé, dans la résidence Carré Bleu, appartement n°A101 (lot 111) de type T2 de 43.35m² situé au 1er étage/asc composé d'une entrée avec placard, un séjour-cuisine, une salle d'eau avec WC, une chambre. Un balcon de 4.85m² A l'extérieur, un parking n°35 (lot 128) Chauffage individuel au gaz. entretiens parties communes et espaces verts compris dans les provisions sur charges mensuelles et donnant lieu à une régularisation annuelle. Les honoraires de location TTC (à la charge du locataire) incluent le montant de rédaction des états des lieux facturé pour 137 euros TTC, après réalisation de l'entrée dans les lieux. Pour plus de détails sur ce logement, vous pouvez consulter la fiche descriptive de ce bien sur notre site internet AFEDIM


Voir le plan du lot


Numéro commercial : A101

Référence du bien : 0043847


Caractéristique(s) de l'immeuble

  • Antenne TV

  • Ascenseur


Caractéristique(s) du logement

  • Surface habitable : 45,35 m²

  • 1er étage

  • Eau chaude individuelle - Chaudière à gaz

  • Chauffage individuel - Chaudière à gaz


Conditions financières

  • Loyer hors charges : 482 EUR

  • Montant du dépôt de garantie : 482 EUR

  • Provision sur charges : 48 EUR

  • Honoraires TTC à la charge du locataire : 365 EUR

  • Honoraires TTC états des lieux locataire : 137 EUR


Bilan énergétique


Performance du logementGaz à effet de serre

Échelle de performance énergétique s'étalant du niveau A, correspondant à un logement extrêmement performant, au niveau G, correspondant à un logement extrêmement peu performant. Les niveaux F et G sont qualifiés de passoires énergétiques. La consommation (énergie primaire) est de 107 kWh/m².an et est associée à une émission de 21 kg de dioxyde de carbone/m².an (voir détail de l'émission de gaz à effet de serre ci-après), cela correspond à une performance énergétique de niveau C.

Échelle d'émissions des gaz à effet de serre s'étalant du niveau A, correspondant à peu d'émission de CO2, au niveau G, correspondant à des émissions très importantes. Avec une émission de 21 kg de dioxyde de carbone/m²/an, l'émission de gaz à effet de serre est de niveau C.


Date du dernier diagnostic : 13/04/2026
Etat des risques
Consultez l'état des risques réglementés pour l'information des acquéreurs et des locataires ici
Les informations sur les risques auxquels ce bien est exposé sont disponibles sur le site Géorisques : www.georisques.gouv.fr
Localisation du bien
Vos temps de trajet moyen
  • Ajouter un point d'intérêt personnalisé
 Nature du lieuAdresseDurée du trajet en voitureDurée du trajet en transport en communDurée du trajet en véloDurée du trajet à piedActions    Actions

Ce bien a attiré votre attention ?

Ajoutez vos emplacements préférés pour calculer le temps de trajet depuis ce bien.

Connexion

Pas encore de compte ? Créez un espace utilisateur AFEDIM.

OK X
Nous contacter

Pour toute demande de renseignements complémentaires, demander à visiter le bien ou tout simplement déposer votre dossier de location...
N'hésitez pas à nous contacter !


Autres annonces à proximité