Louer Détail de l'annonce

Location Appartement 2 pièces de 53m² à 686 EUR/mois à TOURCOING

FILATURES - Appartement - 2 pièces
A propos de ce bien :

686EUR / mois

Charges comprises

  • Appartement
  • 5 AVENUE GEORGES POMPIDOU
    59200 TOURCOING
  • 2 pièces
  • 53,28m²
  • 2ème étage
  • Disponibilité immédiate
  • DPE : C

Location soumise au respect d'un plafond de ressources/revenus

Calculer le plafond de ressources

Ce bien vous est proposé par notre filiale :

AFEDIM Gestion
Mes notes

Ce bien a attiré votre attention ?

Retrouvez vos notes personnelles en vous connectant à votre espace.

Connexion

Pas encore de compte ? Créez un espace utilisateur AFEDIM.

Description du logement

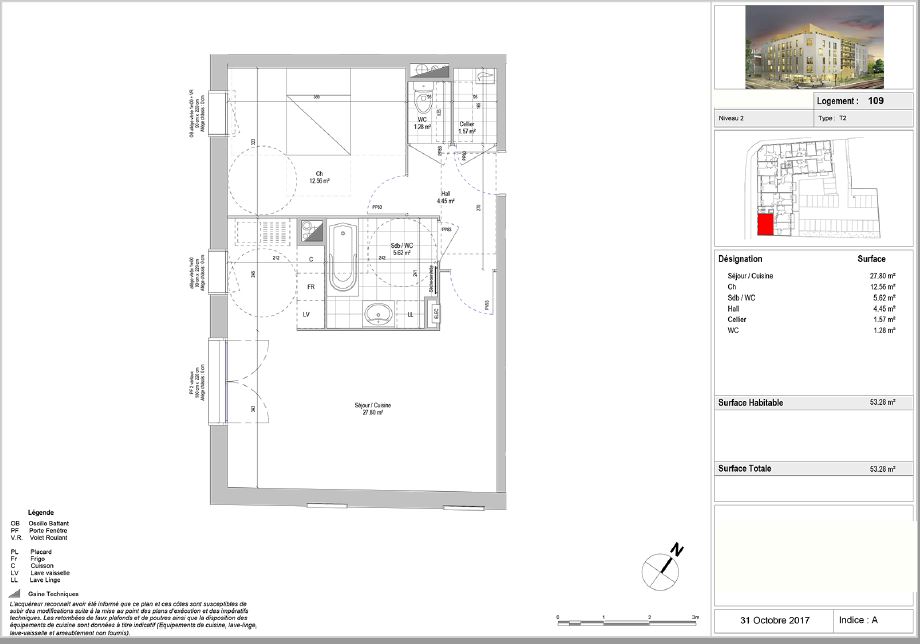
TOURCOING, A proximité du tram, des stations V'Lille, déplacez-vous sans difficulté au coeur de la métropole lilloise, des magasins, et services, c'est ici que nous vous proposons dans la résidence "FILATURES", un appartement de type 2 (n°B109) au 1er étage, d'une surface de 53.28 m², composé d'une entrée, un wc, un cellier, une chambre de 12.56 m², un séjour avec cuisine ouverte de 27.80 m². En extérieur, un parking n°159. Chauffage et eau chaude individuels gaz. Disponible immédiatement. Eau froide, entretien des parties communes, ascenseur et espaces verts communs, compris dans les provisions sur charges mensuelles et donnant lieu à une régularisation annuelle. Les honoraires de location TTC (à la charge du locataire) incluent le montant de rédaction des états des lieux facturé pour 159 euros TTC, après réalisation lors de l'entrée dans les lieux.


Voir le plan du lot


Numéro commercial : B109

Référence du bien : 0025558


Caractéristique(s) du logement

  • Surface habitable : 53,28 m²

  • 2ème étage

  • Eau chaude individuelle - Chaudière à gaz

  • Chauffage individuel - Chaudière à gaz

  • Cuisine : Non aménagée et non équipée

  • Placard(s)


Annexes

  • Parking


Conditions financières

  • Loyer hors charges : 608 EUR

  • Montant du dépôt de garantie : 608 EUR

  • Provision sur charges : 78 EUR

  • Honoraires TTC à la charge du locataire : 532 EUR

  • Honoraires TTC états des lieux locataire : 159 EUR


Bilan énergétique


Performance du logementGaz à effet de serre

Échelle de performance énergétique s'étalant du niveau A, correspondant à un logement extrêmement performant, au niveau G, correspondant à un logement extrêmement peu performant. Les niveaux F et G sont qualifiés de passoires énergétiques. La consommation (énergie primaire) est de 108 kWh/m².an et est associée à une émission de 21 kg de dioxyde de carbone/m².an (voir détail de l'émission de gaz à effet de serre ci-après), cela correspond à une performance énergétique de niveau C.

Échelle d'émissions des gaz à effet de serre s'étalant du niveau A, correspondant à peu d'émission de CO2, au niveau G, correspondant à des émissions très importantes. Avec une émission de 21 kg de dioxyde de carbone/m²/an, l'émission de gaz à effet de serre est de niveau C.


Date du dernier diagnostic : 23/12/2025
Montant estimé des dépenses annuelles d'énergie pour un usage standard

Les coûts sont estimés en fonction des caractéristiques du logement et pour une utilisation sur 5 usages (chauffage, eau chaude sanitaire, climatisation, éclairage, auxiliaires).


entre 640 EUR et 910 EUR par an


Prix moyens des énergies indexés sur les années 2021, 2022 et 2023 (abonnements compris)

Etat des risques
Consultez l'état des risques réglementés pour l'information des acquéreurs et des locataires ici
Les informations sur les risques auxquels ce bien est exposé sont disponibles sur le site Géorisques : www.georisques.gouv.fr
Localisation du bien
Vos temps de trajet moyen
  • Ajouter un point d'intérêt personnalisé
 Nature du lieuAdresseDurée du trajet en voitureDurée du trajet en transport en communDurée du trajet en véloDurée du trajet à piedActions    Actions

Ce bien a attiré votre attention ?

Ajoutez vos emplacements préférés pour calculer le temps de trajet depuis ce bien.

Connexion

Pas encore de compte ? Créez un espace utilisateur AFEDIM.

OK X
Nous contacter

Pour toute demande de renseignements complémentaires, demander à visiter le bien ou tout simplement déposer votre dossier de location...
N'hésitez pas à nous contacter !


Autres annonces à proximité