Louer Détail de l'annonce

Location Appartement 2 pièces de 40m² à 470 EUR/mois à ST BENOIT

ALLEES CALYPSO - Appartement - 2 pièces
A propos de ce bien :

469,54EUR / mois

Charges comprises

  • Appartement
  • 16 ALLEE DE LA CALYPSO
    86280 ST BENOIT
  • 2 pièces
  • 40,45m²
  • 2ème étage
  • Disponible dès le 31/05/2026
  • DPE : B

Location soumise au respect d'un plafond de ressources/revenus

Calculer le plafond de ressources

Ce bien vous est proposé par notre filiale :

AFEDIM Gestion
Mes notes

Ce bien a attiré votre attention ?

Retrouvez vos notes personnelles en vous connectant à votre espace.

Connexion

Pas encore de compte ? Créez un espace utilisateur AFEDIM.

Description du logement

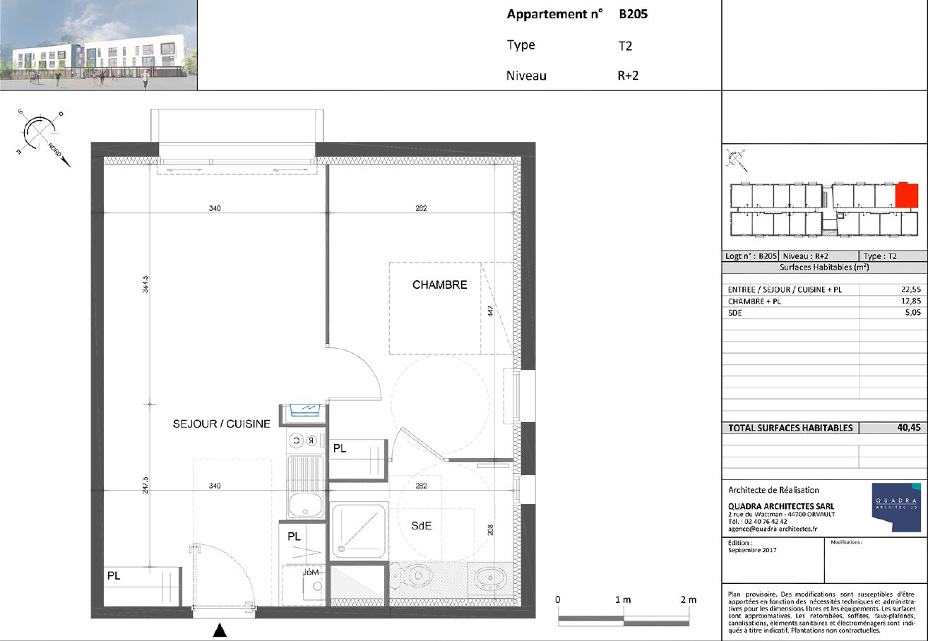
SAINT-BENOIT, proche Poitiers, services et FAC de médecine, appartement T2 n°B205 de 40,45 m² situé au 2ème étage avec ascenseur du bâtiment B, résidence LES ALLEES CALYPSO. Il se compose d'un séjour-cuisine de 22,55 m² avec cuisine aménagée-équipée (plaque/hotte), d'une salle d'eau avec WC et d'une chambre. Eau chaude et chauffage individuel au gaz. Eau froide individuelle. Entretien ascenseur, entretien parties communes et espaces verts communs, compris dans les provisions sur charges mensuelles et donnant lieu à une régularisation annuelle. Les honoraires de location TTC (à la charge du locataire) incluent le montant de rédaction des états des lieux facturé pour 121,00 euros TTC, après réalisation lors de l'entrée dans les lieux. Disponibilité au 30/05/2026. Pour plus d'informations consulter notre site internet AFEDIM.


Voir le plan du lot


Numéro commercial : B205

Référence du bien : 0038974


Caractéristique(s) de l'immeuble

  • Ascenseur

  • Espaces verts

  • Local à vélo


Caractéristique(s) du logement

  • Surface habitable : 40,45 m²

  • 2ème étage

  • Eau chaude individuelle - Chaudière à gaz

  • Chauffage individuel - Chaudière à gaz

  • Cuisine : Aménagée et équipée

  • Orientation : Sud-Ouest

  • Placard(s)


Conditions financières

  • Loyer hors charges : 441,54 EUR

  • Montant du dépôt de garantie : 441,54 EUR

  • Provision sur charges : 28 EUR

  • Honoraires TTC à la charge du locataire : 326 EUR

  • Honoraires TTC états des lieux locataire : 122 EUR


Bilan énergétique


Classe énergieIndice d'émission de gaz à effet de serre

Classe énergie

Logement économe
0 à 50
51 à 90
72 kWh/m².an
91 à 150
151 à 230
231 à 330
331 à 450
451 et +
Logement énergivore

Indice d'émission de gaz à effet de serre (GES)

Faible émission de GES
0 à 5
6 à 10
11 à 20
17 kg/m².an
21 à 35
36 à 55
56 à 80
81 et +
Forte émission de GES

Date du dernier diagnostic (DPE Ancienne Version): 03/12/2019
Montant estimé des dépenses annuelles d'énergie pour un usage standard

339 EUR par an
Prix moyens des énergies indexés sur l'année 2021 (abonnement compris)

Etat des risques
Consultez l'état des risques réglementés pour l'information des acquéreurs et des locataires ici
Les informations sur les risques auxquels ce bien est exposé sont disponibles sur le site Géorisques : www.georisques.gouv.fr
Localisation du bien
Vos temps de trajet moyen
  • Ajouter un point d'intérêt personnalisé
 Nature du lieuAdresseDurée du trajet en voitureDurée du trajet en transport en communDurée du trajet en véloDurée du trajet à piedActions    Actions

Ce bien a attiré votre attention ?

Ajoutez vos emplacements préférés pour calculer le temps de trajet depuis ce bien.

Connexion

Pas encore de compte ? Créez un espace utilisateur AFEDIM.

OK X
Nous contacter

Pour toute demande de renseignements complémentaires, demander à visiter le bien ou tout simplement déposer votre dossier de location...
N'hésitez pas à nous contacter !


Autres annonces à proximité