Louer Détail de l'annonce

Location Appartement 1 pièce de 30m² à 382 EUR/mois à ST BENOIT

ALLEES CALYPSO - Appartement - 1 pièce
A propos de ce bien :

381,68EUR / mois

Charges comprises

  • Appartement
  • 16 ALLEE DE LA CALYPSO
    86280 ST BENOIT
  • 1 pièce
  • 30,45m²
  • Rez-de-chaussée
  • Disponible dès le 03/05/2026

Location soumise au respect d'un plafond de ressources/revenus

Calculer le plafond de ressources

Ce bien vous est proposé par notre filiale :

AFEDIM Gestion
Mes notes

Ce bien a attiré votre attention ?

Retrouvez vos notes personnelles en vous connectant à votre espace.

Connexion

Pas encore de compte ? Créez un espace utilisateur AFEDIM.

Description du logement

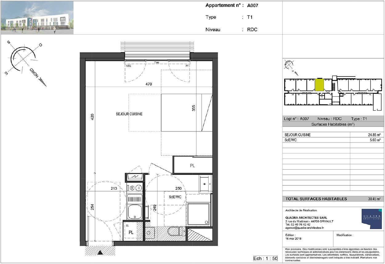
SAINT-BENOIT, proche Poitiers, services et FAC de médecine, appartement T1 n°A007 d'une de 30,45 m² situé au rez-de-chaussée du bâtiment A, résidence neuve LES ALLEES CALYPSO. Il se compose d'une pièce de vie spacieuse de 24,85 m² avec cuisine aménagée équipée(plaque/hotte) et d'une salle d'eau avec WC. Eau chaude et chauffage individuel au gaz. Entretien parties communes et espaces verts communs, compris dans les provisions sur charges mensuelles et donnant lieu à une régularisation annuelle. Les honoraires de location TTC (à la charge du locataire) incluent le montant de rédaction des états des lieux facturé pour 91,00 euros TTC, après réalisation lors de l'entrée dans les lieux. Disponibilité au 02/05/2026. Pour plus de détails sur ce logement, vous pouvez consulter la fiche descriptive de ce bien, sur votre site internet AFEDIM.


Voir le plan du lot


Numéro commercial : A007

Référence du bien : 0038964


Caractéristique(s) de l'immeuble

  • Ascenseur

  • Espaces verts

  • Local à vélo


Caractéristique(s) du logement

  • Surface habitable : 30,45 m²

  • Rez-de-chaussée

  • Eau chaude individuelle - Chaudière à gaz

  • Chauffage individuel - Chaudière à gaz

  • Cuisine : Aménagée et équipée

  • Orientation : Sud-Ouest

  • Placard(s)


Conditions financières

  • Loyer hors charges : 363,68 EUR

  • Montant du dépôt de garantie : 363,68 EUR

  • Provision sur charges : 18 EUR

  • Honoraires TTC à la charge du locataire : 245 EUR

  • Honoraires TTC états des lieux locataire : 92 EUR


Etat des risques
Les informations sur les risques auxquels ce bien est exposé sont disponibles sur le site Géorisques : www.georisques.gouv.fr
Localisation du bien
Vos temps de trajet moyen
  • Ajouter un point d'intérêt personnalisé
 Nature du lieuAdresseDurée du trajet en voitureDurée du trajet en transport en communDurée du trajet en véloDurée du trajet à piedActions    Actions

Ce bien a attiré votre attention ?

Ajoutez vos emplacements préférés pour calculer le temps de trajet depuis ce bien.

Connexion

Pas encore de compte ? Créez un espace utilisateur AFEDIM.

OK X
Nous contacter

Pour toute demande de renseignements complémentaires, demander à visiter le bien ou tout simplement déposer votre dossier de location...
N'hésitez pas à nous contacter !


Autres annonces à proximité