Louer Résultats de votre recherche Détail de l'annonce

Location Parking de 13m² à 77 EUR/mois à PARIS 12

NEUF - Parking
Visuel du bien
Visuel du bien
A propos de ce bien :

76,79EUR / mois

Charges comprises

  • Parking
  • 9 A RUE ELISA LEMONNIER
    75012 PARIS 12
  • 13m²
  • Disponibilité immédiate

Location soumise au respect d'un plafond de ressources/revenus

Calculer le plafond de ressources

Ce bien vous est proposé par notre filiale :

AFEDIM Gestion
Mes notes

Ce bien a attiré votre attention ?

Retrouvez vos notes personnelles en vous connectant à votre espace.

Connexion

Pas encore de compte ? Créez un espace utilisateur AFEDIM.

Description du logement

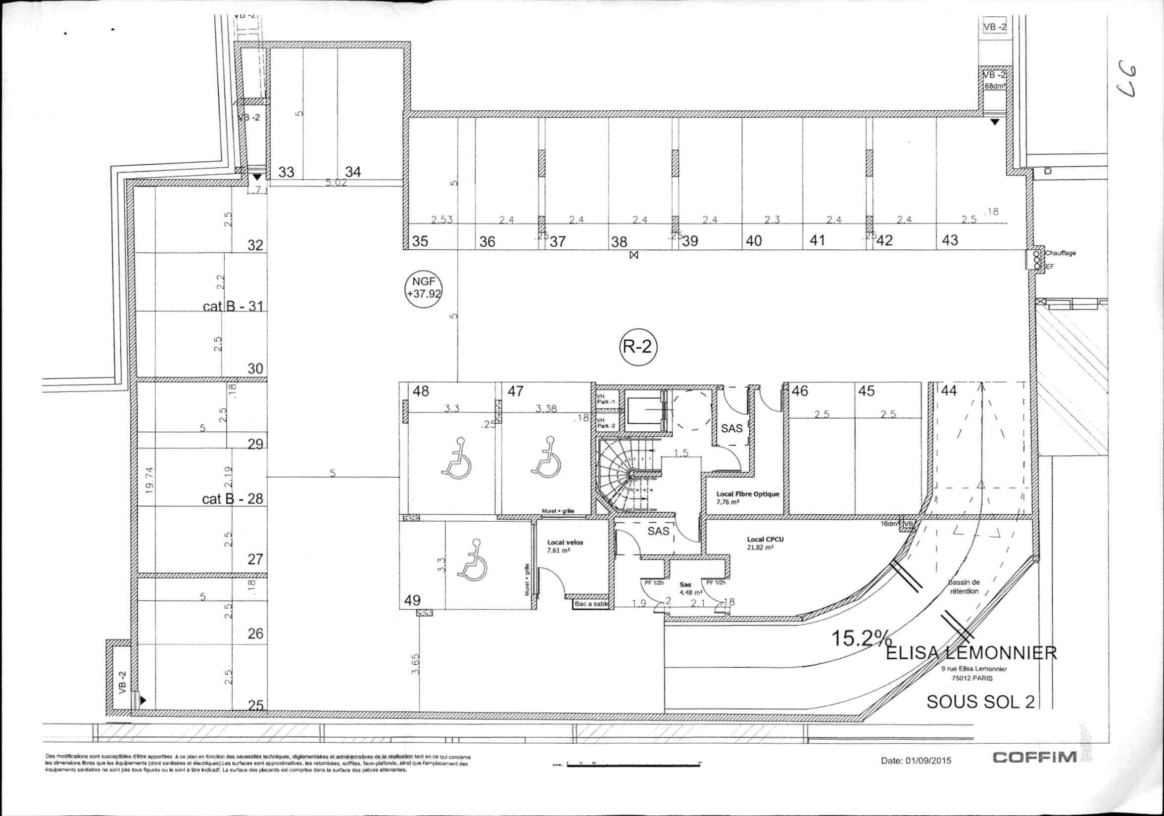
Au cour du 12ème,tout le charme d'un authentique quartier parisien où il fait bon vivre. En retrait de l'avenue Daumesnil, au calme de la rue Elisa Lemonnier et nichée au cour d'un îlot adossé aux jardins de la mairie du 12ème, la résidence Le Neuf est un véritable havre de tranquillité. Pour une vraie qualité de vie au quotidien, vous apprécierez les nombreux atouts d'un quartier accessible, bien équipé et verdoyant . A 150 mètres du métro Dugommier et à toute proximité du métro Daumesnil. Un parking au deuxième sous-sol n° 45 Les honoraires de location incluent le montant de rédaction des états des lieux (part locataire) pour 120 euros TTC.


Voir le plan du lot


Numéro commercial : 45

Référence du bien : 0030405


Caractéristique(s) du logement

  • Surface habitable : 13 m²

  • Eau chaude collective

  • Chauffage collectif - Urbain


Zone soumise à encadrement des loyers

  • Loyer de référence majoré : 76,79 EUR
    (Loyer de base à ne pas dépasser)

  • Loyer de base : 76,79 EUR
    (Loyer de référence)


Conditions financières

  • Loyer hors charges : 76,79 EUR

  • Montant du dépôt de garantie : 76,79 EUR

  • Honoraires TTC à la charge du locataire : 153 EUR

  • Honoraires TTC états des lieux locataire : 120 EUR


Bilan énergétique


Performance du logementGaz à effet de serre

Échelle de performance énergétique s'étalant du niveau A, correspondant à un logement extrêmement performant, au niveau G, correspondant à un logement extrêmement peu performant. Les niveaux F et G sont qualifiés de passoires énergétiques. La consommation (énergie primaire) est de 92 kWh/m².an et est associée à une émission de 14 kg de dioxyde de carbone/m².an (voir détail de l'émission de gaz à effet de serre ci-après), cela correspond à une performance énergétique de niveau B.

Échelle d'émissions des gaz à effet de serre s'étalant du niveau A, correspondant à peu d'émission de CO2, au niveau G, correspondant à des émissions très importantes. Avec une émission de 14 kg de dioxyde de carbone/m²/an, l'émission de gaz à effet de serre est de niveau C.


Date du dernier diagnostic : 25/04/2024
Montant estimé des dépenses annuelles d'énergie pour un usage standard

Les coûts sont estimés en fonction des caractéristiques du logement et pour une utilisation sur 5 usages (chauffage, eau chaude sanitaire, climatisation, éclairage, auxiliaires).


entre 320 EUR et 460 EUR par an


Prix moyens des énergies indexés sur l'année 2021 (abonnement compris)

Etat des risques
Consultez l'état des risques réglementés pour l'information des acquéreurs et des locataires ici
Les informations sur les risques auxquels ce bien est exposé sont disponibles sur le site Géorisques : www.georisques.gouv.fr
Localisation du bien
Vos temps de trajet moyen
  • Ajouter un point d'intérêt personnalisé
 Nature du lieuAdresseDurée du trajet en voitureDurée du trajet en transport en communDurée du trajet en véloDurée du trajet à piedActions    Actions

Ce bien a attiré votre attention ?

Ajoutez vos emplacements préférés pour calculer le temps de trajet depuis ce bien.

Connexion

Pas encore de compte ? Créez un espace utilisateur AFEDIM.

OK X
Nous contacter

Pour toute demande de renseignements complémentaires, demander à visiter le bien ou tout simplement déposer votre dossier de location...
N'hésitez pas à nous contacter !