Louer Résultats de votre recherche Détail de l'annonce

Location Appartement 3 pièces de 57m² à 683 EUR/mois à TOURS

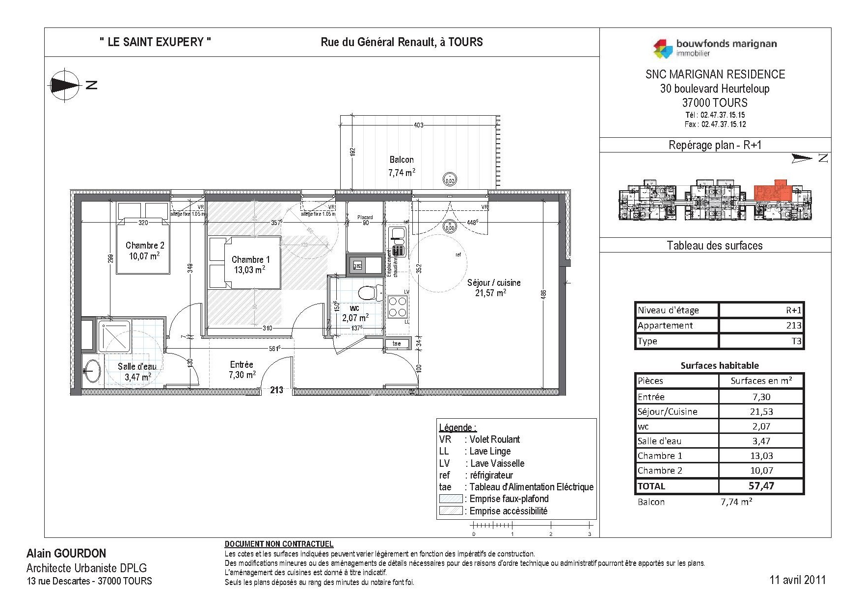
SAINT EXUPERY - Appartement - 3 pièces
A propos de ce bien :

682,57EUR / mois

Charges comprises

  • Appartement
  • 273 rue du General Renault
    37000 TOURS
  • 3 pièces
  • 57,47m²
  • 1er étage
  • Disponible dès le 17/06/2026
  • DPE : C

Location soumise au respect d'un plafond de ressources/revenus

Calculer le plafond de ressources

Ce bien vous est proposé par notre filiale :

AFEDIM Gestion
Mes notes

Ce bien a attiré votre attention ?

Retrouvez vos notes personnelles en vous connectant à votre espace.

Connexion

Pas encore de compte ? Créez un espace utilisateur AFEDIM.

Description du logement

A Tours, dans la Résidence Saint Exupery au 1er étage avec ascenceur, nous vous y proposons un appartement T3 n°213 de 57.47m² comprenant une entrée, une cuisine ouverte sur séjour avec balcon de 7.74m², deux chambres dont une avec placard, une salle d'eau et WC séparés. A l'extérieur, un parking n°26. Eau chaude et chauffage individuel. Entretien parties communes, entretien ascenseur et espaces verts communs, compris dans les provisions sur charges mensuelles et donnant lieu à une régularisation annuelle. Les honoraires de location 637 euros TTC (à la charge du locataire) incluent le montant de rédaction des états des lieux facturé pour 174 euros TTC, après réalisation lors de l'entrée dans les lieux. Disponible le 17/06/2026. Pour plus de détails sur ce logement, vous pouvez consulter la fiche descriptive de ce bien, sur votre site internet AFEDIM.


Voir le plan du lot


Numéro commercial : 213

Référence du bien : 0042882


Caractéristique(s) de l'immeuble

  • Résidence sécurisée

  • Ascenseur


Caractéristique(s) du logement

  • Surface habitable : 57,47 m²

  • Balcon (7,74 m²)

  • 1er étage

  • Eau chaude individuelle - Chaudière à gaz

  • Chauffage individuel - Chaudière à gaz

  • Orientation : Ouest

  • Placard(s)


Annexes

  • Parking


Conditions financières

  • Loyer hors charges : 584,57 EUR

  • Montant du dépôt de garantie : 584,57 EUR

  • Provision sur charges : 98 EUR

  • Honoraires TTC à la charge du locataire : 463 EUR

  • Honoraires TTC états des lieux locataire : 174 EUR


Bilan énergétique


Performance du logementGaz à effet de serre

Échelle de performance énergétique s'étalant du niveau A, correspondant à un logement extrêmement performant, au niveau G, correspondant à un logement extrêmement peu performant. Les niveaux F et G sont qualifiés de passoires énergétiques. La consommation (énergie primaire) est de 121 kWh/m².an et est associée à une émission de 24 kg de dioxyde de carbone/m².an (voir détail de l'émission de gaz à effet de serre ci-après), cela correspond à une performance énergétique de niveau C.

Échelle d'émissions des gaz à effet de serre s'étalant du niveau A, correspondant à peu d'émission de CO2, au niveau G, correspondant à des émissions très importantes. Avec une émission de 24 kg de dioxyde de carbone/m²/an, l'émission de gaz à effet de serre est de niveau C.


Date du dernier diagnostic : 14/06/2024
Montant estimé des dépenses annuelles d'énergie pour un usage standard

Les coûts sont estimés en fonction des caractéristiques du logement et pour une utilisation sur 5 usages (chauffage, eau chaude sanitaire, climatisation, éclairage, auxiliaires).


entre 636 EUR et 860 EUR par an


Prix moyens des énergies indexés sur l'année 2021 (abonnement compris)

Etat des risques
Consultez l'état des risques réglementés pour l'information des acquéreurs et des locataires ici
Les informations sur les risques auxquels ce bien est exposé sont disponibles sur le site Géorisques : www.georisques.gouv.fr
Localisation du bien
Vos temps de trajet moyen
  • Ajouter un point d'intérêt personnalisé
 Nature du lieuAdresseDurée du trajet en voitureDurée du trajet en transport en communDurée du trajet en véloDurée du trajet à piedActions    Actions

Ce bien a attiré votre attention ?

Ajoutez vos emplacements préférés pour calculer le temps de trajet depuis ce bien.

Connexion

Pas encore de compte ? Créez un espace utilisateur AFEDIM.

OK X
Nous contacter

Pour toute demande de renseignements complémentaires, demander à visiter le bien ou tout simplement déposer votre dossier de location...
N'hésitez pas à nous contacter !


Autres annonces à proximité