Louer Résultats de votre recherche Détail de l'annonce

Location Appartement 2 pièces de 46m² à 703 EUR/mois à STRASBOURG

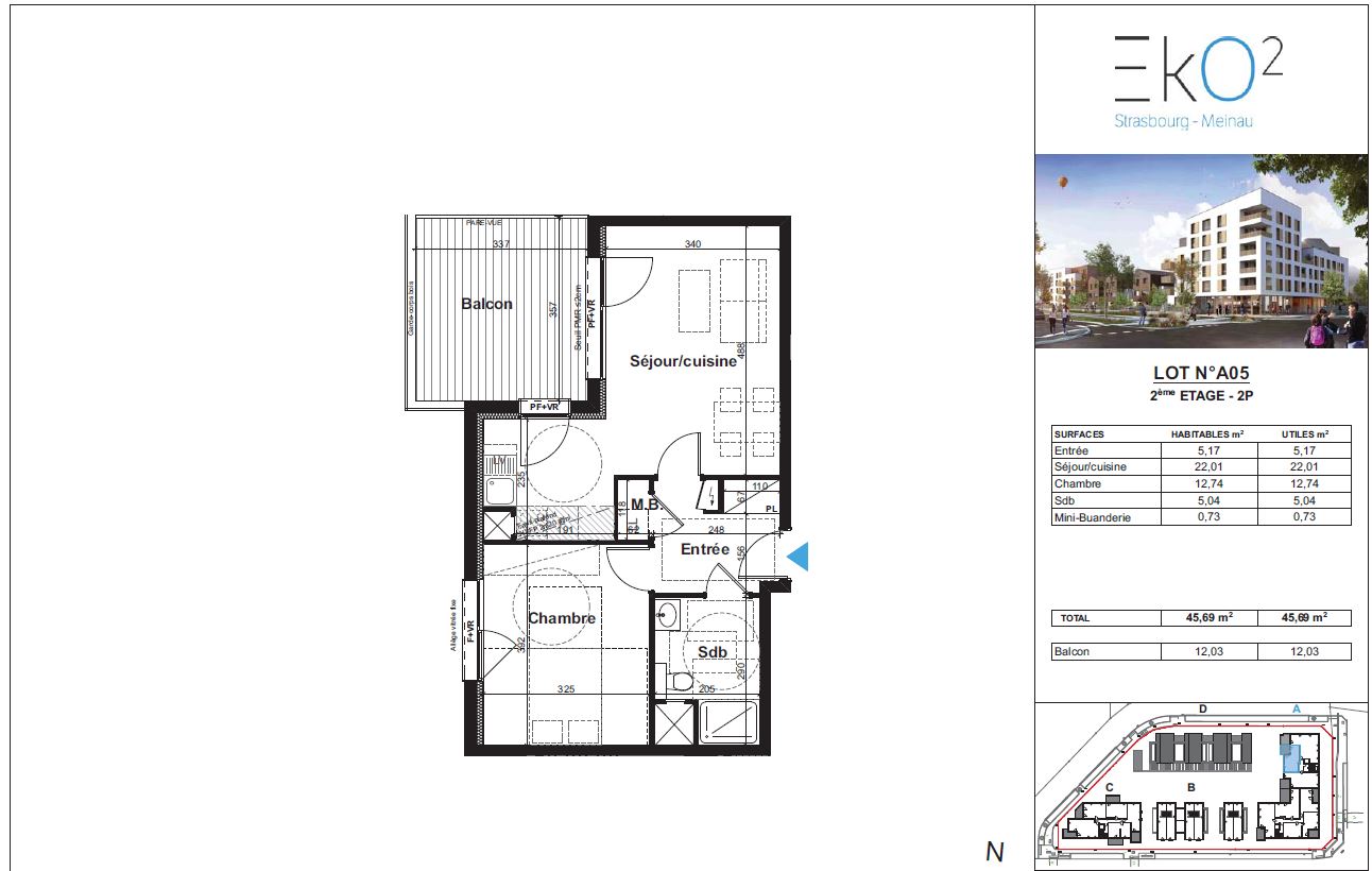
EKO 2 - Appartement - 2 pièces
A propos de ce bien :

702,92EUR / mois

Charges comprises

  • Appartement
  • 62 rue du Rhin Tortu
    67100 STRASBOURG
  • 2 pièces
  • 45,69m²
  • 2ème étage
  • Disponibilité immédiate

Location soumise au respect d'un plafond de ressources/revenus

Calculer le plafond de ressources

Ce bien vous est proposé par notre filiale :

AFEDIM Gestion
Mes notes

Ce bien a attiré votre attention ?

Retrouvez vos notes personnelles en vous connectant à votre espace.

Connexion

Pas encore de compte ? Créez un espace utilisateur AFEDIM.

Description du logement

Dans la résidence EKO², développée dans une optique Bâtiment Bas Carbone (BBCA), nous vous proposons un appartement T2 n°A05 de 45.69 m² situé au 2ème étage, composé d'une entrée avec placard, un séjour avec coin cuisine de 22.01 m², une salle de bains avec WC de 5.04 m2, une chambre de 12.74 m², un balcon de 12.03 m². Au sous sol un garage n°555. Eau chaude et chauffage (collectif). Entretien parties communes, entretien ascenseur et espaces verts communs, compris dans les provisions sur charges mensuelles et donnant lieu à une régularisation annuelle. Les honoraires de location 599euros TTC (à la charge du locataire) incluent le montant de rédaction des états des lieux facturé pour 138euros TTC, après réalisation lors de l'entrée dans les lieux. DPE expiré, en cours de réalisation. Disponible le 12/04/2026. Pour plus de détails sur ce logement, vous pouvez consulter la fiche descriptive de ce bien, sur votre site internet AFEDIM.


Voir le plan du lot


Numéro commercial : A05

Référence du bien : 0038794


Caractéristique(s) de l'immeuble

  • Antenne TV


Caractéristique(s) du logement

  • Surface habitable : 45,69 m²

  • Balcon (12,00 m²)

  • 2ème étage

  • Eau chaude collective

  • Chauffage collectif - Géothermie

  • Cuisine : Non aménagée et non équipée

  • Placard(s)


Annexes

  • Garage


Conditions financières

  • Loyer hors charges : 599,92 EUR

  • Montant du dépôt de garantie : 599,92 EUR

  • Provision sur charges : 103 EUR

  • Honoraires TTC à la charge du locataire : 461 EUR

  • Honoraires TTC états des lieux locataire : 138 EUR


Etat des risques
Consultez l'état des risques réglementés pour l'information des acquéreurs et des locataires ici
Les informations sur les risques auxquels ce bien est exposé sont disponibles sur le site Géorisques : www.georisques.gouv.fr
Localisation du bien
Vos temps de trajet moyen
  • Ajouter un point d'intérêt personnalisé
 Nature du lieuAdresseDurée du trajet en voitureDurée du trajet en transport en communDurée du trajet en véloDurée du trajet à piedActions    Actions

Ce bien a attiré votre attention ?

Ajoutez vos emplacements préférés pour calculer le temps de trajet depuis ce bien.

Connexion

Pas encore de compte ? Créez un espace utilisateur AFEDIM.

OK X
Nous contacter

Pour toute demande de renseignements complémentaires, demander à visiter le bien ou tout simplement déposer votre dossier de location...
N'hésitez pas à nous contacter !