Louer Résultats de votre recherche Détail de l'annonce

Location Appartement 3 pièces de 59m² à 878 EUR/mois à ST JEAN DE VEDAS

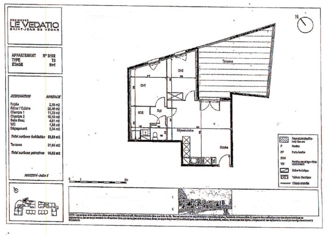
VEDATIO - Appartement - 3 pièces
A propos de ce bien :

877,98EUR / mois

Charges comprises

  • Appartement
  • 16 PASSAGE DES ANGROLAS
    34430 ST JEAN DE VEDAS
  • 3 pièces
  • 58,88m²
  • 1er étage
  • Disponibilité immédiate
  • DPE : B

Location soumise au respect d'un plafond de ressources/revenus

Calculer le plafond de ressources

Ce bien vous est proposé par notre filiale :

AFEDIM Gestion
Mes notes

Ce bien a attiré votre attention ?

Retrouvez vos notes personnelles en vous connectant à votre espace.

Connexion

Pas encore de compte ? Créez un espace utilisateur AFEDIM.

Description du logement

A Saint-Jean-De-Védas, dans la résidence sécurisée "VEDATIO", nous vous proposons un appartement T3 n°B102 de 58,88 m² avec terrasse de 31,94 m², situé au 1er étage, avec ascenseur. Il comprend une entrée, une pièce de vie avec cuisine ouverte aménagée-équipée (meubles hauts et bas, hotte, plaque de cuisson et four) donnant sur terrasse, deux chambres dont une avec placard, une salle d'eau et un WC indépendant. Au sous-sol R-2, un garage n° 254. Eau froide et eau chaude solaire collectives, chauffage électrique individuel. Entretien parties communes, entretien ascenseur et espaces verts communs, compris dans les provisions sur charges mensuelles et donnant lieu à une régularisation annuelle. Les honoraires de location TTC (à la charge du locataire) incluent le montant de rédaction des états des lieux facturé pour 178 euros TTC, après réalisation lors de l'entrée dans les lieux.


Voir le plan du lot


Numéro commercial : B102

Référence du bien : 0028852


Caractéristique(s) de l'immeuble

  • Résidence sécurisée

  • Antenne TV

  • Ascenseur

  • Espaces verts


Caractéristique(s) du logement

  • Surface habitable : 58,88 m²

  • Terrasse (31,94 m²)

  • 1er étage

  • Eau chaude collective - électrique

  • Chauffage individuel - Electrique

  • Cuisine : Aménagée et équipée

  • Orientation : Est

  • Placard(s)


Annexes

  • Garage


Conditions financières

  • Loyer hors charges : 663,98 EUR

  • Montant du dépôt de garantie : 663,98 EUR

  • Provision sur charges : 214 EUR

  • Honoraires TTC à la charge du locataire : 594 EUR

  • Honoraires TTC états des lieux locataire : 178 EUR


Bilan énergétique


Performance du logementGaz à effet de serre

Échelle de performance énergétique s'étalant du niveau A, correspondant à un logement extrêmement performant, au niveau G, correspondant à un logement extrêmement peu performant. Les niveaux F et G sont qualifiés de passoires énergétiques. La consommation (énergie primaire) est de 75 kWh/m².an et est associée à une émission de 9 kg de dioxyde de carbone/m².an (voir détail de l'émission de gaz à effet de serre ci-après), cela correspond à une performance énergétique de niveau B.

Échelle d'émissions des gaz à effet de serre s'étalant du niveau A, correspondant à peu d'émission de CO2, au niveau G, correspondant à des émissions très importantes. Avec une émission de 9 kg de dioxyde de carbone/m²/an, l'émission de gaz à effet de serre est de niveau B.


Date du dernier diagnostic : 01/04/2026
Montant estimé des dépenses annuelles d'énergie pour un usage standard

Les coûts sont estimés en fonction des caractéristiques du logement et pour une utilisation sur 5 usages (chauffage, eau chaude sanitaire, climatisation, éclairage, auxiliaires).


entre 500 EUR et 676 EUR par an


Prix moyens des énergies indexés sur l'année 2026 (abonnement compris)

Etat des risques
Consultez l'état des risques réglementés pour l'information des acquéreurs et des locataires ici
Les informations sur les risques auxquels ce bien est exposé sont disponibles sur le site Géorisques : www.georisques.gouv.fr
Localisation du bien
Vos temps de trajet moyen
  • Ajouter un point d'intérêt personnalisé
 Nature du lieuAdresseDurée du trajet en voitureDurée du trajet en transport en communDurée du trajet en véloDurée du trajet à piedActions    Actions

Ce bien a attiré votre attention ?

Ajoutez vos emplacements préférés pour calculer le temps de trajet depuis ce bien.

Connexion

Pas encore de compte ? Créez un espace utilisateur AFEDIM.

OK X
Nous contacter

Pour toute demande de renseignements complémentaires, demander à visiter le bien ou tout simplement déposer votre dossier de location...
N'hésitez pas à nous contacter !