Louer Résultats de votre recherche Détail de l'annonce

Location Appartement 3 pièces de 71m² à 764 EUR/mois à ST HERBLAIN

KER HERMELAND - Appartement - 3 pièces
A propos de ce bien :

764EUR / mois

Charges comprises

  • Appartement
  • 9 RUE SUZANNE LENGLEN
    44800 ST HERBLAIN
  • 3 pièces
  • 70,76m²
  • Rez-de-chaussée
  • Disponibilité immédiate
  • DPE : D

Location soumise au respect d'un plafond de ressources/revenus

Ce bien vous est proposé par notre filiale :

AFEDIM Gestion
Mes notes

Ce bien a attiré votre attention ?

Retrouvez vos notes personnelles en vous connectant à votre espace.

Connexion

Pas encore de compte ? Créez un espace utilisateur AFEDIM.

Description du logement

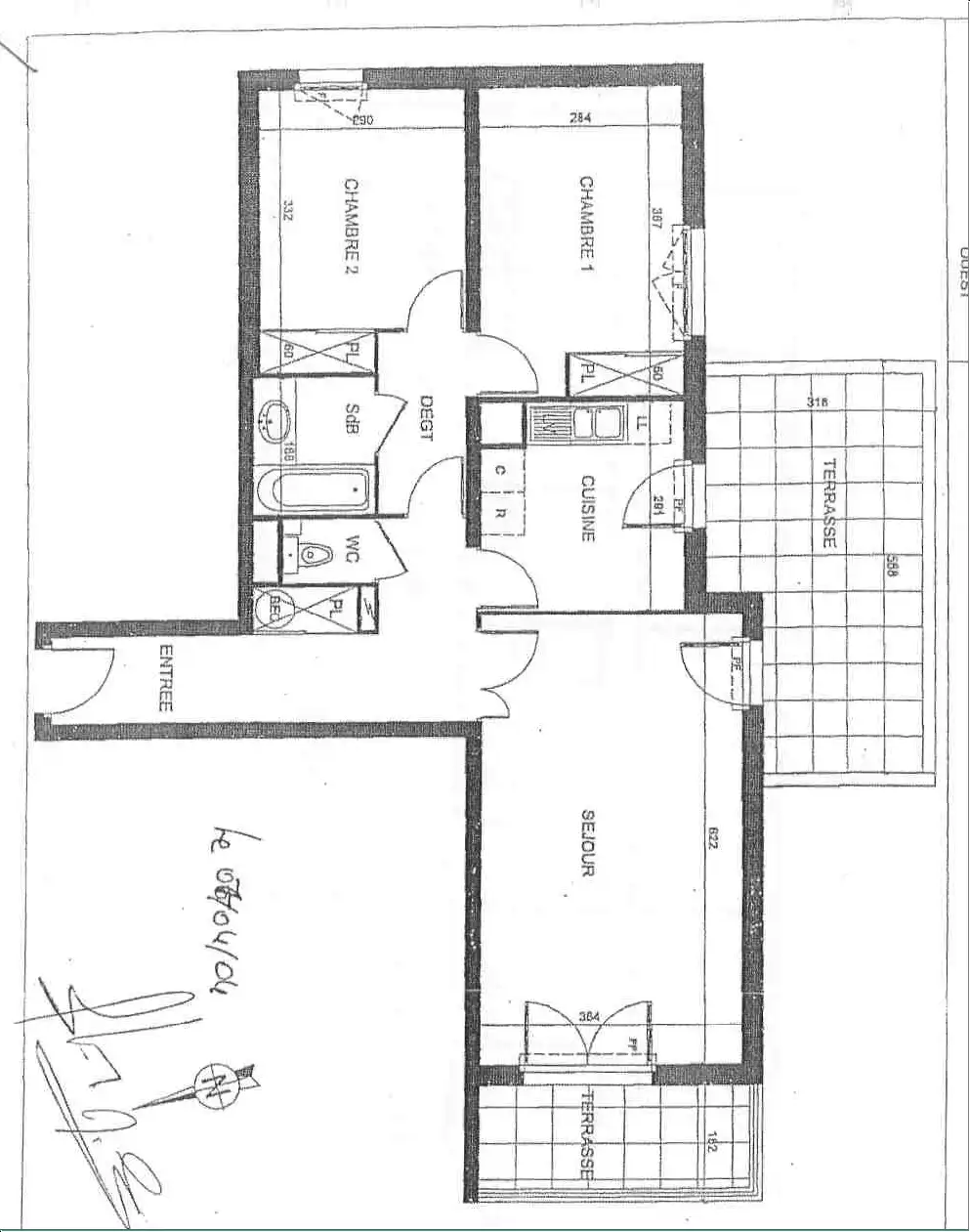
A Saint Herblain, Résidence Ker Hermeland, un appartement T3 n° 07 (lot 7), situé au RDC avec ascenseur, d'une surface de 70 m² environ, comprenant : entrée avec placard, séjour, cuisine, dégagement, salle de bains, WC, deux chambres avec placard. 2 terrasses de 19 m2 et 4.60m2 environ. Chauffage individuel électrique (Changement des radiateurs en 2024). Box (lot 48) au sous-sol. Entretien parties communes, ascenseur et espaces verts communs, compris dans les provisions sur charges mensuelles et donnant lieu à une régularisation annuelle. Les honoraires de location TTC (à la charge du locataire) incluent le montant de rédaction des états des lieux facturés pour 212 EUR TTC, après réalisation de l'état des lieux d'entrée. Plus de détails sur notre site AFEDIM.



Numéro commercial : 07

Référence du bien : 0039957


Caractéristique(s) de l'immeuble

  • Ascenseur


Caractéristique(s) du logement

  • Surface habitable : 70,76 m²

  • Rez-de-chaussée

  • Eau chaude individuelle - électrique

  • Chauffage individuel - Electrique

  • Cuisine : Non aménagée et non équipée


Conditions financières

  • Loyer hors charges : 707 EUR

  • Montant du dépôt de garantie : 707 EUR

  • Provision sur charges : 57 EUR

  • Honoraires TTC à la charge du locataire : 713 EUR

  • Honoraires TTC états des lieux locataire : 214 EUR


Bilan énergétique


Performance du logementGaz à effet de serre

Échelle de performance énergétique s'étalant du niveau A, correspondant à un logement extrêmement performant, au niveau G, correspondant à un logement extrêmement peu performant. Les niveaux F et G sont qualifiés de passoires énergétiques. La consommation (énergie primaire) est de 183 kWh/m².an et est associée à une émission de 5 kg de dioxyde de carbone/m².an (voir détail de l'émission de gaz à effet de serre ci-après), cela correspond à une performance énergétique de niveau D.

Échelle d'émissions des gaz à effet de serre s'étalant du niveau A, correspondant à peu d'émission de CO2, au niveau G, correspondant à des émissions très importantes. Avec une émission de 5 kg de dioxyde de carbone/m²/an, l'émission de gaz à effet de serre est de niveau A.


Date du dernier diagnostic : 12/07/2023
Montant estimé des dépenses annuelles d'énergie pour un usage standard

Les coûts sont estimés en fonction des caractéristiques du logement et pour une utilisation sur 5 usages (chauffage, eau chaude sanitaire, climatisation, éclairage, auxiliaires).


entre 820 EUR et 1 130 EUR par an


Prix moyens des énergies indexés sur l'année 2021 (abonnement compris)

Etat des risques
Consultez l'état des risques réglementés pour l'information des acquéreurs et des locataires ici
Les informations sur les risques auxquels ce bien est exposé sont disponibles sur le site Géorisques : www.georisques.gouv.fr
Localisation du bien
Vos temps de trajet moyen
  • Ajouter un point d'intérêt personnalisé
 Nature du lieuAdresseDurée du trajet en voitureDurée du trajet en transport en communDurée du trajet en véloDurée du trajet à piedActions    Actions

Ce bien a attiré votre attention ?

Ajoutez vos emplacements préférés pour calculer le temps de trajet depuis ce bien.

Connexion

Pas encore de compte ? Créez un espace utilisateur AFEDIM.

OK X
Nous contacter

Pour toute demande de renseignements complémentaires, demander à visiter le bien ou tout simplement déposer votre dossier de location...
N'hésitez pas à nous contacter !


Autres annonces à proximité