Louer Résultats de votre recherche Détail de l'annonce

Location Appartement 3 pièces de 67m² à 819 EUR/mois à ST HERBLAIN

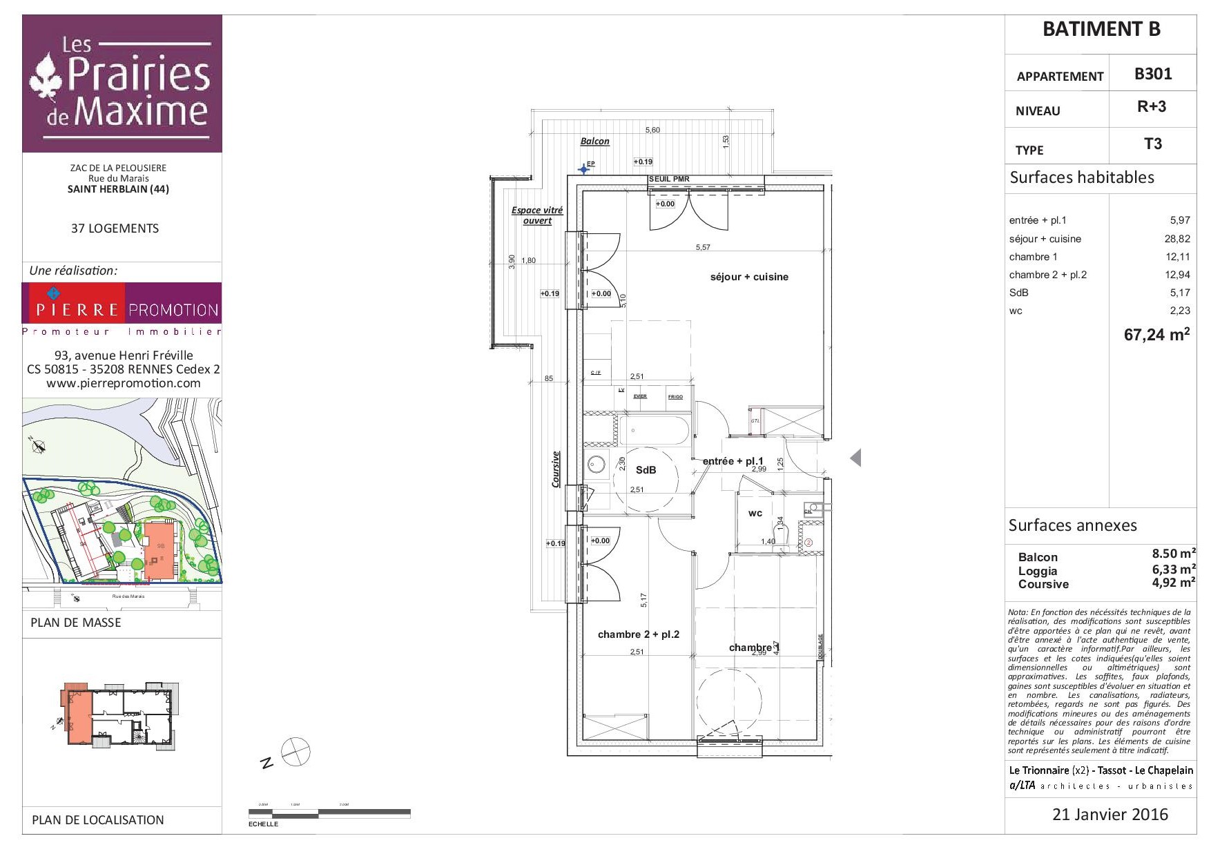
PRAIRIES DE MAXIME - Appartement - 3 pièces
A propos de ce bien :

818,57EUR / mois

Charges comprises

  • Appartement
  • 16 RUE DES MARAIS
    44800 ST HERBLAIN
  • 3 pièces
  • 67,24m²
  • 3ème étage
  • Disponible dès le 06/04/2026
  • DPE : C

Location soumise au respect d'un plafond de ressources/revenus

Calculer le plafond de ressources

Ce bien vous est proposé par notre filiale :

AFEDIM Gestion
Mes notes

Ce bien a attiré votre attention ?

Retrouvez vos notes personnelles en vous connectant à votre espace.

Connexion

Pas encore de compte ? Créez un espace utilisateur AFEDIM.

Description du logement

A SAINT HERBLAIN, proche de toutes les commodités et des transports. Dans la résidence "LES PRAIRIES DE MAXIME", nous vous proposons un appartement de type T3 n°B301 de 67.24 m² environ avec un balcon de 8 m², situé au 3ème étage avec ascenseur. Il se compose d'une entrée avec placard d'une belle pièce de vie de 29m² environ avec coin cuisine aménagé ouverte sur balcon, de deux chambres (dont une avec placard), d'une salle de bains et d'un wc séparé. Au sous-sol, un parking n°36. Chauffage et eau chaude individuels, eau froide individuelle. Entretien des parties communes et espaces verts compris dans les provisions sur charges mensuelles et donnant lieu à une régularisation annuelle. Les honoraires de location TTC (à la charge du locataire) incluent le montant de rédaction des états des lieux facturé pour 203,00 euros TTC, après réalisation lors de l'entrée dans les lieux. Pour plus de détails sur ce logement, vous pouvez consulter la fiche descriptive de ce bien, sur notre site internet AFEDIM.


Voir le plan du lot


Numéro commercial : B301

Référence du bien : 0034721


Caractéristique(s) de l'immeuble

  • Antenne TV

  • Ascenseur


Caractéristique(s) du logement

  • Surface habitable : 67,24 m²

  • Balcon (8,00 m²)

  • Loggia (6,00 m²)

  • 3ème étage

  • Eau chaude individuelle - Chaudière à gaz

  • Chauffage individuel - Chaudière à gaz

  • Cuisine : Aménagée


Annexes

  • Parking


Conditions financières

  • Loyer hors charges : 726,57 EUR

  • Montant du dépôt de garantie : 726,57 EUR

  • Provision sur charges : 92 EUR

  • Honoraires TTC à la charge du locataire : 678 EUR

  • Honoraires TTC états des lieux locataire : 203 EUR


Bilan énergétique


Performance du logementGaz à effet de serre

Échelle de performance énergétique s'étalant du niveau A, correspondant à un logement extrêmement performant, au niveau G, correspondant à un logement extrêmement peu performant. Les niveaux F et G sont qualifiés de passoires énergétiques. La consommation (énergie primaire) est de 97 kWh/m².an et est associée à une émission de 18 kg de dioxyde de carbone/m².an (voir détail de l'émission de gaz à effet de serre ci-après), cela correspond à une performance énergétique de niveau C.

Échelle d'émissions des gaz à effet de serre s'étalant du niveau A, correspondant à peu d'émission de CO2, au niveau G, correspondant à des émissions très importantes. Avec une émission de 18 kg de dioxyde de carbone/m²/an, l'émission de gaz à effet de serre est de niveau C.


Date du dernier diagnostic : 31/03/2026
Montant estimé des dépenses annuelles d'énergie pour un usage standard

Les coûts sont estimés en fonction des caractéristiques du logement et pour une utilisation sur 5 usages (chauffage, eau chaude sanitaire, climatisation, éclairage, auxiliaires).


entre 770 EUR et 1 090 EUR par an


Prix moyens des énergies indexés sur l'année 2021 (abonnement compris)

Etat des risques
Consultez l'état des risques réglementés pour l'information des acquéreurs et des locataires ici
Les informations sur les risques auxquels ce bien est exposé sont disponibles sur le site Géorisques : www.georisques.gouv.fr
Localisation du bien
Vos temps de trajet moyen
  • Ajouter un point d'intérêt personnalisé
 Nature du lieuAdresseDurée du trajet en voitureDurée du trajet en transport en communDurée du trajet en véloDurée du trajet à piedActions    Actions

Ce bien a attiré votre attention ?

Ajoutez vos emplacements préférés pour calculer le temps de trajet depuis ce bien.

Connexion

Pas encore de compte ? Créez un espace utilisateur AFEDIM.

OK X
Nous contacter

Pour toute demande de renseignements complémentaires, demander à visiter le bien ou tout simplement déposer votre dossier de location...
N'hésitez pas à nous contacter !


Autres annonces à proximité