Louer Résultats de votre recherche Détail de l'annonce

Location Appartement 3 pièces de 65m² à 879 EUR/mois à OULLINS PIERRE BENITE

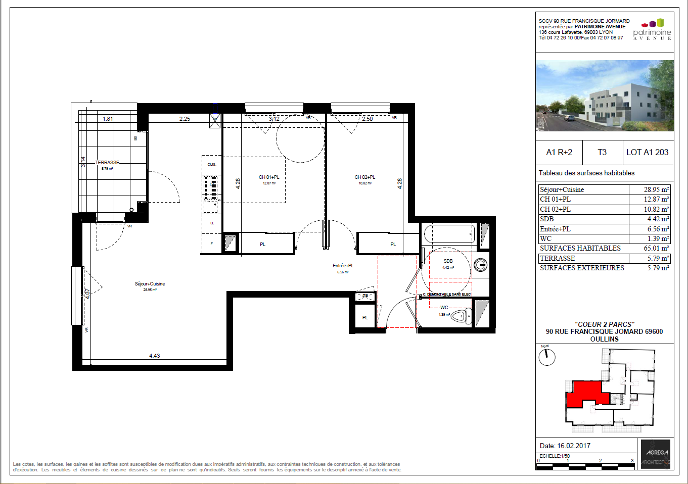
COEUR 2 PARCS - Appartement - 3 pièces
A propos de ce bien :

879EUR / mois

Charges comprises

  • Appartement
  • 90 RUE FRANCISQUE JOMARD
    69600 OULLINS PIERRE BENITE
  • 3 pièces
  • 64,55m²
  • 2ème étage
  • Disponibilité immédiate
  • DPE : C

Location soumise au respect d'un plafond de ressources/revenus

Calculer le plafond de ressources

Ce bien vous est proposé par notre filiale :

AFEDIM Gestion
Mes notes

Ce bien a attiré votre attention ?

Retrouvez vos notes personnelles en vous connectant à votre espace.

Connexion

Pas encore de compte ? Créez un espace utilisateur AFEDIM.

Description du logement

A OULLINS est un lien entre la bouillonnante ville de Lyon et les paisibles Monts du Lyonnais. Cette ville à taille humaine, de 26 000 habitants, a toujours affiché un beau dynamisme, elle est notamment réputée pour sa Grande rue, qui la traverse du nord au sud. La résidence COEUR 2 PARCS se trouve à proximité du Parc du Vallon de l'Yzeron et du Parc de Sanzy. C'est ici que vous nous proposons un appartement T3 (n°A1-203) de 64.55 m² situé au 2ème étge du bâtiment A1. Il se compose d'une entrée, une pièce de vie de 28.68m2 avec kitchenette équipée (meuble de rangement, plaque de cuisson) avec terrasse de 5.63 m². Deux chambres avec placards, une salle de bain et un WC séparé. Au sous-sol, un garage portant le numéro 18. Chauffage et eau chaude individuels au gaz. Eau froide collective. Eau froide, entretien parties communes, entretien ascenseur et espaces verts communs, compris dans les provisions sur charges mensuelles et donnant lieu à une régularisation annuelle. Les honoraires de location TTC (à la charge du locataire) incluent le montant de rédaction des états des lieux facturé pour 195 euros TTC, après réalisation lors de l'entrée dans les lieux. Plus de détails sur notre site AFEDIM.


Voir le plan du lot


Numéro commercial : A1-203

Référence du bien : 0034205


Caractéristique(s) de l'immeuble

  • Ascenseur


Caractéristique(s) du logement

  • Surface habitable : 64,55 m²

  • 2ème étage

  • Eau chaude individuelle - Chaudière à gaz

  • Chauffage individuel - Chaudière à gaz

  • Cuisine : Aménagée

  • Orientation : Ouest


Conditions financières

  • Loyer hors charges : 749 EUR

  • Montant du dépôt de garantie : 749 EUR

  • Provision sur charges : 130 EUR

  • Honoraires TTC à la charge du locataire : 651 EUR

  • Honoraires TTC états des lieux locataire : 195 EUR


Bilan énergétique


Performance du logementGaz à effet de serre

Échelle de performance énergétique s'étalant du niveau A, correspondant à un logement extrêmement performant, au niveau G, correspondant à un logement extrêmement peu performant. Les niveaux F et G sont qualifiés de passoires énergétiques. La consommation (énergie primaire) est de 98 kWh/m².an et est associée à une émission de 19 kg de dioxyde de carbone/m².an (voir détail de l'émission de gaz à effet de serre ci-après), cela correspond à une performance énergétique de niveau C.

Échelle d'émissions des gaz à effet de serre s'étalant du niveau A, correspondant à peu d'émission de CO2, au niveau G, correspondant à des émissions très importantes. Avec une émission de 19 kg de dioxyde de carbone/m²/an, l'émission de gaz à effet de serre est de niveau C.


Date du dernier diagnostic : 15/04/2026
Montant estimé des dépenses annuelles d'énergie pour un usage standard

Les coûts sont estimés en fonction des caractéristiques du logement et pour une utilisation sur 5 usages (chauffage, eau chaude sanitaire, climatisation, éclairage, auxiliaires).


entre 700 EUR et 990 EUR par an


Prix moyens des énergies indexés sur les années 2021, 2022 et 2023 (abonnements compris)

Etat des risques
Consultez l'état des risques réglementés pour l'information des acquéreurs et des locataires ici
Les informations sur les risques auxquels ce bien est exposé sont disponibles sur le site Géorisques : www.georisques.gouv.fr
Localisation du bien
Vos temps de trajet moyen
  • Ajouter un point d'intérêt personnalisé
 Nature du lieuAdresseDurée du trajet en voitureDurée du trajet en transport en communDurée du trajet en véloDurée du trajet à piedActions    Actions

Ce bien a attiré votre attention ?

Ajoutez vos emplacements préférés pour calculer le temps de trajet depuis ce bien.

Connexion

Pas encore de compte ? Créez un espace utilisateur AFEDIM.

OK X
Nous contacter

Pour toute demande de renseignements complémentaires, demander à visiter le bien ou tout simplement déposer votre dossier de location...
N'hésitez pas à nous contacter !