Louer Résultats de votre recherche Détail de l'annonce

Location Appartement 2 pièces de 43m² à 658 EUR/mois à OULLINS PIERRE BENITE

AMBIANCE CITY 2 - Appartement - 2 pièces
A propos de ce bien :

658EUR / mois

Charges comprises

  • Appartement
  • 4 PASSAGE DES VIGNES
    69600 OULLINS PIERRE BENITE
  • 2 pièces
  • 43,48m²
  • 1er étage
  • Disponible dès le 01/05/2026
  • DPE : C

Location soumise au respect d'un plafond de ressources/revenus

Calculer le plafond de ressources

Ce bien vous est proposé par notre filiale :

AFEDIM Gestion
Mes notes

Ce bien a attiré votre attention ?

Retrouvez vos notes personnelles en vous connectant à votre espace.

Connexion

Pas encore de compte ? Créez un espace utilisateur AFEDIM.

Description du logement

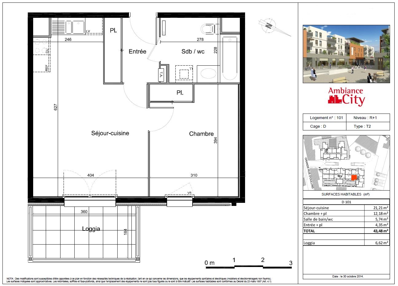
A Oullins, à 20 minutes du centre de Lyon, proche de toutes les commodités dans la résidence récente "Ambiance City 2", un appartement T2 n°D101 (lot n°31) de 43,48m² avec loggia de 6.62m², situé au 1er étage de l'allée D, avec ascenseur. Il comprend une entrée avec placard, un séjour avec cuisine ouverte, une chambre avec placard et une salle de bain avec WC. Au sous-sol -1, un garage n°100 (lot n°62). Eau chaude et chauffage collectif au gaz. Eau chaude, chauffage, entretien parties communes, ascenseur et espaces verts communs, compris dans les provisions sur charges mensuelles et donnant lieu à une régularisation annuelle. Les honoraires de location sont facturés directement au locataire par le partenaire pour 438 EUR TTC. Quant aux honoraires de rédaction des états des lieux, ils sont facturés par AFEDIM Gestion pour 131 EUR TTC, après réalisation, lors de l'entrée dans les lieux. Plus de détails sur notre site internet AFEDIM. Disponible au 23/04/2026


Voir le plan du lot


Numéro commercial : D101

Référence du bien : 0027410


Caractéristique(s) de l'immeuble

  • Résidence sécurisée

  • Antenne TV

  • Ascenseur


Caractéristique(s) du logement

  • Surface habitable : 43,48 m²

  • Loggia (6,00 m²)

  • 1er étage

  • Eau chaude collective - électrique

  • Chauffage collectif - Chaudière à gaz

  • Cuisine : Non aménagée et non équipée

  • Placard(s)


Annexes

  • Garage


Conditions financières

  • Loyer hors charges : 588 EUR

  • Montant du dépôt de garantie : 588 EUR

  • Provision sur charges : 70 EUR

  • Honoraires TTC à la charge du locataire : 438 EUR

  • Honoraires TTC états des lieux locataire : 131 EUR


Bilan énergétique


Performance du logementGaz à effet de serre

Échelle de performance énergétique s'étalant du niveau A, correspondant à un logement extrêmement performant, au niveau G, correspondant à un logement extrêmement peu performant. Les niveaux F et G sont qualifiés de passoires énergétiques. La consommation (énergie primaire) est de 69 kWh/m².an et est associée à une émission de 12 kg de dioxyde de carbone/m².an (voir détail de l'émission de gaz à effet de serre ci-après), cela correspond à une performance énergétique de niveau C.

Échelle d'émissions des gaz à effet de serre s'étalant du niveau A, correspondant à peu d'émission de CO2, au niveau G, correspondant à des émissions très importantes. Avec une émission de 12 kg de dioxyde de carbone/m²/an, l'émission de gaz à effet de serre est de niveau C.


Date du dernier diagnostic : 26/11/2024
Montant estimé des dépenses annuelles d'énergie pour un usage standard

Les coûts sont estimés en fonction des caractéristiques du logement et pour une utilisation sur 5 usages (chauffage, eau chaude sanitaire, climatisation, éclairage, auxiliaires).


entre 277 EUR et 375 EUR par an


Prix moyens des énergies indexés sur l'année 2021 (abonnement compris)

Etat des risques
Consultez l'état des risques réglementés pour l'information des acquéreurs et des locataires ici
Les informations sur les risques auxquels ce bien est exposé sont disponibles sur le site Géorisques : www.georisques.gouv.fr
Localisation du bien
Vos temps de trajet moyen
  • Ajouter un point d'intérêt personnalisé
 Nature du lieuAdresseDurée du trajet en voitureDurée du trajet en transport en communDurée du trajet en véloDurée du trajet à piedActions    Actions

Ce bien a attiré votre attention ?

Ajoutez vos emplacements préférés pour calculer le temps de trajet depuis ce bien.

Connexion

Pas encore de compte ? Créez un espace utilisateur AFEDIM.

OK X
Nous contacter

Pour toute demande de renseignements complémentaires, demander à visiter le bien ou tout simplement déposer votre dossier de location...
N'hésitez pas à nous contacter !