Louer Résultats de votre recherche Détail de l'annonce

Location Appartement 3 pièces de 68m² à 695 EUR/mois à NOYAL SUR VILAINE

EMPREINTE - Appartement - 3 pièces
A propos de ce bien :

694,7EUR / mois

Charges comprises

  • Appartement
  • 19 rue Alexis Geffrault
    35530 NOYAL SUR VILAINE
  • 3 pièces
  • 68,42m²
  • 1er étage
  • Disponible dès le 13/04/2026
  • DPE : C

Location soumise au respect d'un plafond de ressources/revenus

Calculer le plafond de ressources

Ce bien vous est proposé par notre filiale :

AFEDIM Gestion
Mes notes

Ce bien a attiré votre attention ?

Retrouvez vos notes personnelles en vous connectant à votre espace.

Connexion

Pas encore de compte ? Créez un espace utilisateur AFEDIM.

Description du logement

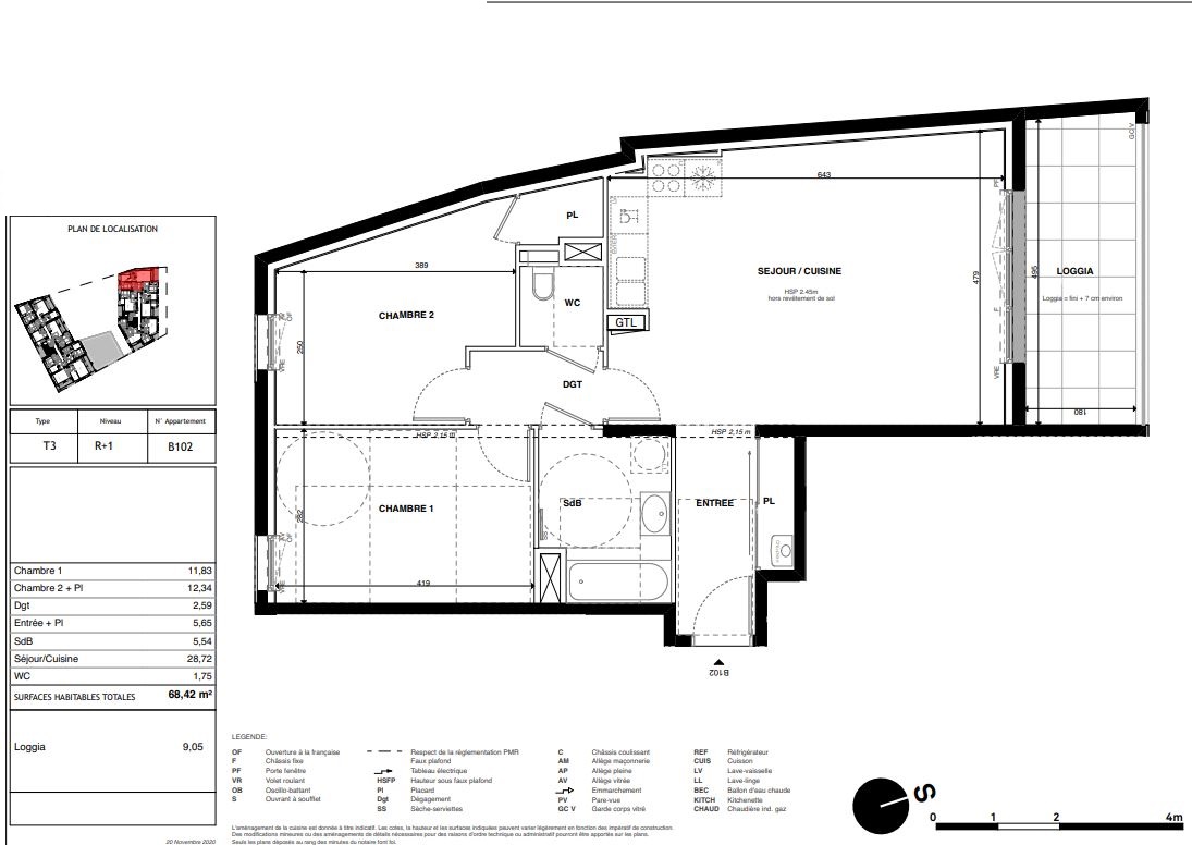
NOYAL-SUR-VILAINE dans la résidence EMPREINTE, nous vous proposons un appartement T3 (n°B102), d'une superficie de 68.42 m² situé au 1er étage. Il se compose d'une entrée avec placard, d'un dégagement, d'un séjour-cuisine de 28.72 m² donnant sur une loggia de 9.05 m² exposée sud, d'une chambre de 11.83 m², d'une deuxième chambre de 12.34 m² avec placard, et d'une salle de bain avec WC séparé. Emplacements parking n°PS10 et PS09. Chauffage et eau chaude individuels gaz. Eau froide, ascenseur, espaces verts communs et entretien parties communes, compris dans les provisions sur charges mensuelles et donnant lieu à une régularisation annuelle. Les honoraires de location sont de 552 EUR TTC (à la charge du locataire) et le montant de rédaction des états des lieux facturé 207 EUR TTC, après réalisation lors de l'entrée dans les lieux. Plus de détails sur ce logement sur notre site internet AFEDIM.


Voir le plan du lot


Numéro commercial : B102

Référence du bien : 0059435


Caractéristique(s) de l'immeuble

  • Résidence sécurisée

  • Antenne TV

  • Ascenseur

  • Espaces verts

  • Local à vélo


Caractéristique(s) du logement

  • Surface habitable : 68,42 m²

  • Loggia (9,05 m²)

  • 1er étage

  • Eau chaude individuelle - Chaudière à gaz

  • Chauffage individuel - Chaudière à gaz

  • Cuisine : Equipée

  • Orientation : Sud

  • Placard(s)


Annexes

  • Parking


Conditions financières

  • Loyer hors charges : 629,7 EUR

  • Montant du dépôt de garantie : 629,7 EUR

  • Provision sur charges : 65 EUR

  • Honoraires TTC à la charge du locataire : 552 EUR

  • Honoraires TTC états des lieux locataire : 207 EUR


Bilan énergétique


Performance du logementGaz à effet de serre

Échelle de performance énergétique s'étalant du niveau A, correspondant à un logement extrêmement performant, au niveau G, correspondant à un logement extrêmement peu performant. Les niveaux F et G sont qualifiés de passoires énergétiques. La consommation (énergie primaire) est de 67 kWh/m².an et est associée à une émission de 14 kg de dioxyde de carbone/m².an (voir détail de l'émission de gaz à effet de serre ci-après), cela correspond à une performance énergétique de niveau C.

Échelle d'émissions des gaz à effet de serre s'étalant du niveau A, correspondant à peu d'émission de CO2, au niveau G, correspondant à des émissions très importantes. Avec une émission de 14 kg de dioxyde de carbone/m²/an, l'émission de gaz à effet de serre est de niveau C.


Date du dernier diagnostic : 08/12/2023
Montant estimé des dépenses annuelles d'énergie pour un usage standard

Les coûts sont estimés en fonction des caractéristiques du logement et pour une utilisation sur 5 usages (chauffage, eau chaude sanitaire, climatisation, éclairage, auxiliaires).


entre 443 EUR et 599 EUR par an


Prix moyens des énergies indexés sur l'année 2023 (abonnement compris)

Etat des risques
Consultez l'état des risques réglementés pour l'information des acquéreurs et des locataires ici
Les informations sur les risques auxquels ce bien est exposé sont disponibles sur le site Géorisques : www.georisques.gouv.fr
Localisation du bien
Vos temps de trajet moyen
  • Ajouter un point d'intérêt personnalisé
 Nature du lieuAdresseDurée du trajet en voitureDurée du trajet en transport en communDurée du trajet en véloDurée du trajet à piedActions    Actions

Ce bien a attiré votre attention ?

Ajoutez vos emplacements préférés pour calculer le temps de trajet depuis ce bien.

Connexion

Pas encore de compte ? Créez un espace utilisateur AFEDIM.

OK X
Nous contacter

Pour toute demande de renseignements complémentaires, demander à visiter le bien ou tout simplement déposer votre dossier de location...
N'hésitez pas à nous contacter !


Autres annonces à proximité