Louer Résultats de votre recherche Détail de l'annonce

Location Appartement 4 pièces de 83m² à 993 EUR/mois à DUPPIGHEIM

ODEA - Appartement - 4 pièces
A propos de ce bien :

993EUR / mois

Charges comprises

  • Appartement
  • 2 RUE DES ERABLES
    67120 DUPPIGHEIM
  • 4 pièces
  • 83,01m²
  • 3ème étage
  • Disponibilité immédiate
  • DPE : C

Location soumise au respect d'un plafond de ressources/revenus

Calculer le plafond de ressources

Ce bien vous est proposé par notre filiale :

AFEDIM Gestion
Mes notes

Ce bien a attiré votre attention ?

Retrouvez vos notes personnelles en vous connectant à votre espace.

Connexion

Pas encore de compte ? Créez un espace utilisateur AFEDIM.

Description du logement

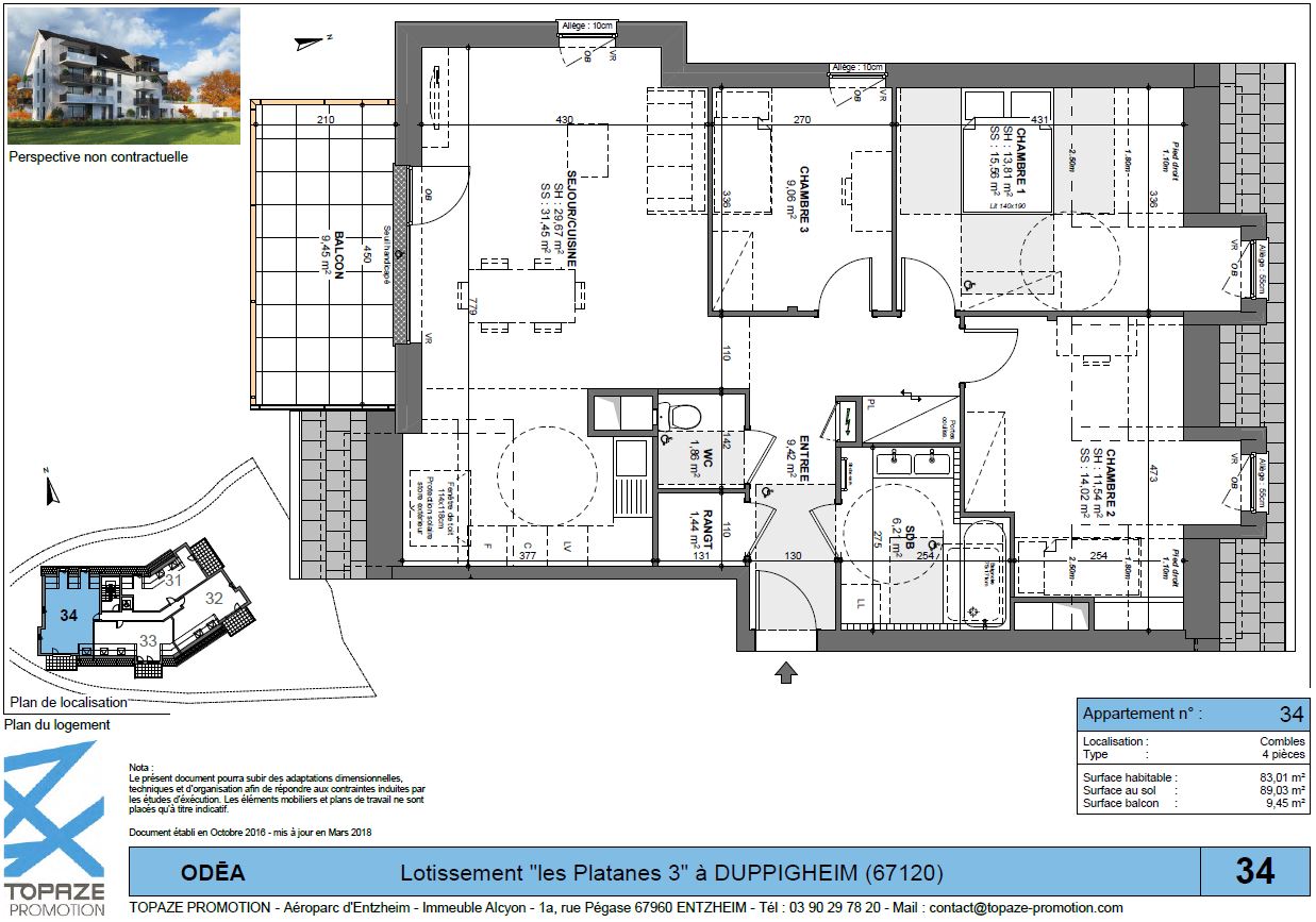
DUPPIGHEIM, un appartement T4 n°34 de 83.01m² avec un balcon de 9.45m² exposé SUD situé au 3ème étage avec ascenseur. Il comprend une entrée avec placard, un séjour de 29.67m² avec cuisine ouverte donnant sur le balcon. Dégagement avec placard desservant 3 chambres de 9.06m², 13.81m² et 11.54m², un WC séparé et une salle de bain avec double meuble vasque. Un parking extérieur n° 41 et un garage n°32. Chauffage et eau chaude collectif. Eau froide, entretien parties communes, entretien ascenseur et espaces verts communs, compris dans les provisions sur charges mensuelles et donnant lieu à une régularisation annuelle. Les honoraires de location TTC (à la charge du locataire) incluent le montant de rédaction des états des lieux facturés pour 251,00 euros TTC, après réalisation lors de l'entrée dans les lieux. Disponible le 14 avril 2026. Pour plus de détails sur ce logement, vous pouvez consulter la fiche descriptive de ce bien, sur notre site internet AFEDIM.


Voir le plan du lot


Numéro commercial : 34

Référence du bien : 0038921


Caractéristique(s) du logement

  • Surface habitable : 83,01 m²

  • 3ème étage

  • Chauffage collectif - Chaudière à gaz


Conditions financières

  • Loyer hors charges : 792 EUR

  • Montant du dépôt de garantie : 792 EUR

  • Provision sur charges : 201 EUR

  • Honoraires TTC à la charge du locataire : 669 EUR

  • Honoraires TTC états des lieux locataire : 251 EUR


Bilan énergétique


Performance du logementGaz à effet de serre

Échelle de performance énergétique s'étalant du niveau A, correspondant à un logement extrêmement performant, au niveau G, correspondant à un logement extrêmement peu performant. Les niveaux F et G sont qualifiés de passoires énergétiques. La consommation (énergie primaire) est de 82 kWh/m².an et est associée à une émission de 16 kg de dioxyde de carbone/m².an (voir détail de l'émission de gaz à effet de serre ci-après), cela correspond à une performance énergétique de niveau C.

Échelle d'émissions des gaz à effet de serre s'étalant du niveau A, correspondant à peu d'émission de CO2, au niveau G, correspondant à des émissions très importantes. Avec une émission de 16 kg de dioxyde de carbone/m²/an, l'émission de gaz à effet de serre est de niveau C.


Date du dernier diagnostic : 10/04/2026
Montant estimé des dépenses annuelles d'énergie pour un usage standard

Les coûts sont estimés en fonction des caractéristiques du logement et pour une utilisation sur 5 usages (chauffage, eau chaude sanitaire, climatisation, éclairage, auxiliaires).


entre 641 EUR et 867 EUR par an


Prix moyens des énergies indexés sur l'année 2021 (abonnement compris)

Etat des risques
Consultez l'état des risques réglementés pour l'information des acquéreurs et des locataires ici
Les informations sur les risques auxquels ce bien est exposé sont disponibles sur le site Géorisques : www.georisques.gouv.fr
Localisation du bien
Vos temps de trajet moyen
  • Ajouter un point d'intérêt personnalisé
 Nature du lieuAdresseDurée du trajet en voitureDurée du trajet en transport en communDurée du trajet en véloDurée du trajet à piedActions    Actions

Ce bien a attiré votre attention ?

Ajoutez vos emplacements préférés pour calculer le temps de trajet depuis ce bien.

Connexion

Pas encore de compte ? Créez un espace utilisateur AFEDIM.

OK X
Nous contacter

Pour toute demande de renseignements complémentaires, demander à visiter le bien ou tout simplement déposer votre dossier de location...
N'hésitez pas à nous contacter !