Location Appartement 2 pièces de 43m² à 589 EUR/mois à COUERON

VALLON D'YS - Appartement - 2 pièces
A propos de ce bien :

589,4EUR / mois

Charges comprises

  • Appartement
  • 8 RUE FERNAND DOCEUL
    44220 COUERON
  • 2 pièces
  • 42,6m²
  • 2ème étage
  • Disponibilité immédiate
  • DPE : C

Location soumise au respect d'un plafond de ressources/revenus

Calculer le plafond de ressources

Ce bien vous est proposé par notre filiale :

AFEDIM Gestion
Mes notes

Ce bien a attiré votre attention ?

Retrouvez vos notes personnelles en vous connectant à votre espace.

Connexion

Pas encore de compte ? Créez un espace utilisateur AFEDIM.

Description du logement

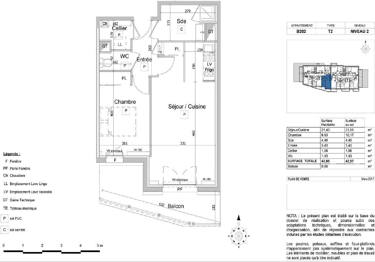
COUËRON, à 200m de la gare, un appartement T2 (n°B202) de 42,60 m² situé au 2ème étage du bâtiment B de la résidence VALLON D'YS. Il se compose d'un séjour-cuisine de 21,43 m² avec cuisine équipée d'une plaque de cuisson, hotte et réfrigérateur, donnant sur un balcon de 9,80 m² orienté sud, d'un cellier, d'une salle d'eau, de WC et d'une chambre de 9,93 m². Un parking extérieur P046 complète le bien. Eau chaude et chauffage individuels au gaz. Eau froide, entretien chaudière, entretien parties communes et espaces verts communs, compris dans les provisions sur charges mensuelles et donnant lieu à une régularisation annuelle. Les honoraires de location, (à la charge du locataire) incluent le montant de rédaction du bail et des états des lieux facturé pour 129.00 euros TTC, après réalisation lors de l'entrée dans les lieux. Pour plus de détails sur ce logement, vous pouvez consulter la fiche descriptive de ce bien, sur notre site internet Afedim.


Voir le plan du lot


Numéro commercial : B202

Référence du bien : 0037426


Caractéristique(s) de l'immeuble

  • Résidence sécurisée

  • Espaces verts

  • Local à vélo


Caractéristique(s) du logement

  • Surface habitable : 42,6 m²

  • Balcon (9,80 m²)

  • 2ème étage

  • Eau chaude individuelle - Chaudière à gaz

  • Chauffage individuel - Chaudière à gaz

  • Cuisine : Aménagée et équipée

  • Orientation : Sud

  • Placard(s)


Annexes

  • Parking


Conditions financières

  • Loyer hors charges : 541,4 EUR

  • Montant du dépôt de garantie : 541,4 EUR

  • Provision sur charges : 48 EUR

  • Honoraires TTC à la charge du locataire : 429 EUR

  • Honoraires TTC états des lieux locataire : 129 EUR


Bilan énergétique


Performance du logementGaz à effet de serre

Échelle de performance énergétique s'étalant du niveau A, correspondant à un logement extrêmement performant, au niveau G, correspondant à un logement extrêmement peu performant. Les niveaux F et G sont qualifiés de passoires énergétiques. La consommation (énergie primaire) est de 74 kWh/m².an et est associée à une émission de 13 kg de dioxyde de carbone/m².an (voir détail de l'émission de gaz à effet de serre ci-après), cela correspond à une performance énergétique de niveau C.

Échelle d'émissions des gaz à effet de serre s'étalant du niveau A, correspondant à peu d'émission de CO2, au niveau G, correspondant à des émissions très importantes. Avec une émission de 13 kg de dioxyde de carbone/m²/an, l'émission de gaz à effet de serre est de niveau C.


Date du dernier diagnostic : 12/05/2026
Montant estimé des dépenses annuelles d'énergie pour un usage standard

Les coûts sont estimés en fonction des caractéristiques du logement et pour une utilisation sur 5 usages (chauffage, eau chaude sanitaire, climatisation, éclairage, auxiliaires).


entre 370 EUR et 550 EUR par an


Prix moyens des énergies indexés sur les années 2021, 2022 et 2023 (abonnements compris)

Etat des risques
Consultez l'état des risques réglementés pour l'information des acquéreurs et des locataires ici
Les informations sur les risques auxquels ce bien est exposé sont disponibles sur le site Géorisques : www.georisques.gouv.fr
Localisation du bien
Vos temps de trajet moyen
  • Ajouter un point d'intérêt personnalisé
 Nature du lieuAdresseDurée du trajet en voitureDurée du trajet en transport en communDurée du trajet en véloDurée du trajet à piedActions    Actions

Ce bien a attiré votre attention ?

Ajoutez vos emplacements préférés pour calculer le temps de trajet depuis ce bien.

Connexion

Pas encore de compte ? Créez un espace utilisateur AFEDIM.

OK X
Nous contacter

Pour toute demande de renseignements complémentaires, demander à visiter le bien ou tout simplement déposer votre dossier de location...
N'hésitez pas à nous contacter !


Autres annonces à proximité