Louer Résultats de votre recherche Détail de l'annonce

Location Appartement 2 pièces de 42m² à 583 EUR/mois à CALAIS

PASSEMENTERIE - Appartement - 2 pièces
A propos de ce bien :

583EUR / mois

Charges comprises

  • Appartement
  • 32 RUE SULLY PRUDHOMME
    62100 CALAIS
  • 2 pièces
  • 41,7m²
  • 1er étage
  • Disponible dès le 28/07/2026
  • DPE : B

Location soumise au respect d'un plafond de ressources/revenus

Calculer le plafond de ressources

Ce bien vous est proposé par notre filiale :

AFEDIM Gestion
Mes notes

Ce bien a attiré votre attention ?

Retrouvez vos notes personnelles en vous connectant à votre espace.

Connexion

Pas encore de compte ? Créez un espace utilisateur AFEDIM.

Description du logement

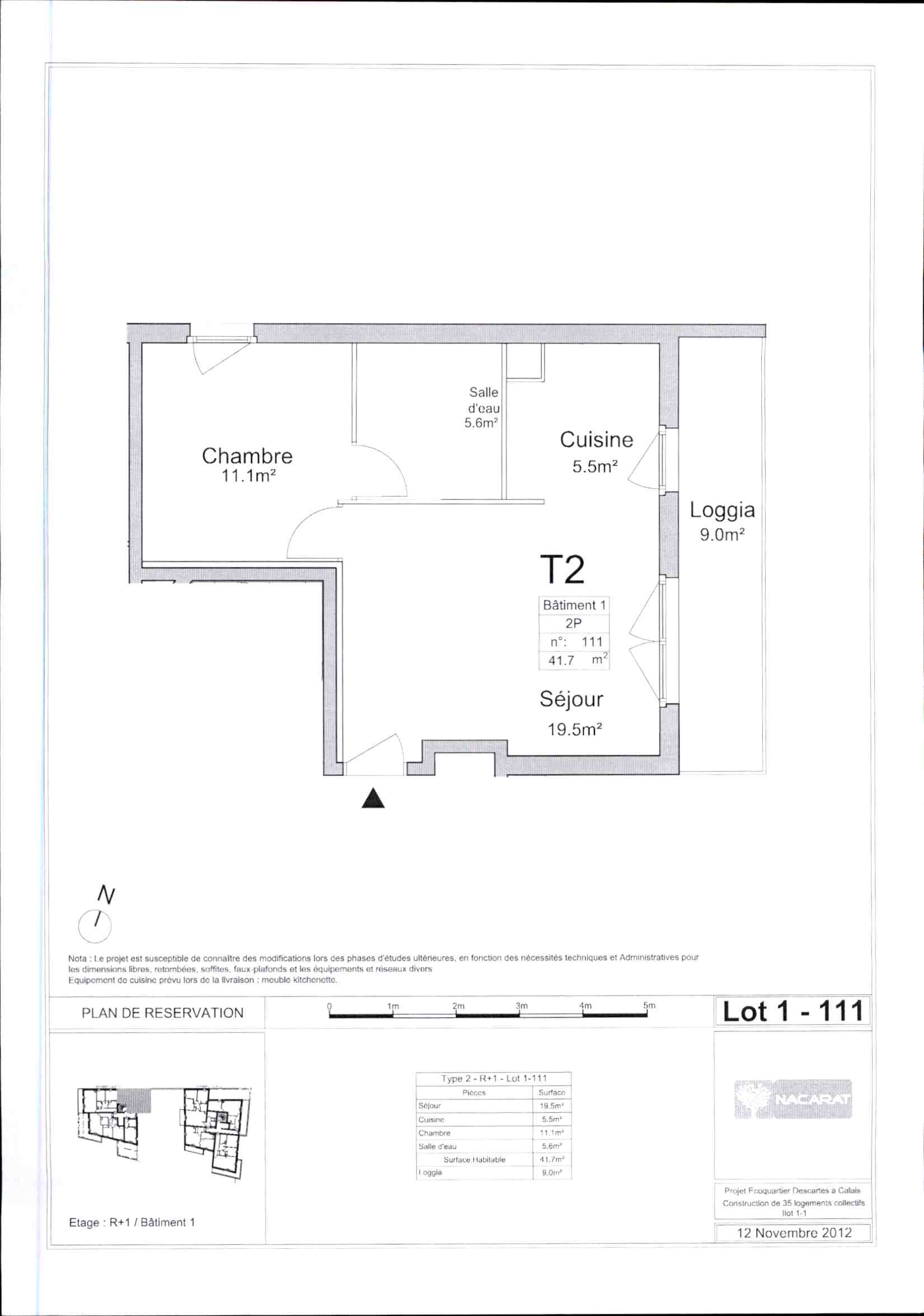
CALAIS - Dans la résidence LA PASSEMENTERIE , nous vous proposons un appartement T2 n°111 (lot n°0004) de 41.70 m² avec terrasse de 9.00 m², situé au 1er étage. Il comprend un séjour avec cuisine ouverte donnant sur une loggia de 9m², une chambre de 11m², une salle d'eau avec WC. Au sous-sol, une place de parking n°0012 (lot n°0047). Chauffage et eau chaude collectifs au gaz. Eau froide, Entretien parties communes, ascenseur et espaces verts communs, compris dans les provisions sur charges mensuelles et donnant lieu à une régularisation annuelle. Les honoraires de location sont facturés directement au locataire par le partenaire pour 336 EUR TTC. Quant aux honoraires de rédaction des états des lieux, ils sont facturés par AFEDIM Gestion pour 126 EUR TTC, après réalisation, lors de l'entrée dans les lieux. Plus de détails sur notre site internet AFEDIM.


Voir le plan du lot


Numéro commercial : 111

Référence du bien : 0027766


Caractéristique(s) de l'immeuble

  • Antenne TV

  • Ascenseur


Caractéristique(s) du logement

  • Surface habitable : 41,7 m²

  • Terrasse (9,00 m²)

  • 1er étage

  • Eau chaude collective - Chaudière à gaz

  • Chauffage collectif - Chaudière à gaz

  • Cuisine : Non aménagée et non équipée

  • Orientation : Est

  • Placard(s)


Annexes

  • Parking


Conditions financières

  • Loyer hors charges : 472 EUR

  • Montant du dépôt de garantie : 472 EUR

  • Provision sur charges : 111 EUR

  • Honoraires TTC à la charge du locataire : 336 EUR

  • Honoraires TTC états des lieux locataire : 126 EUR


Bilan énergétique


Classe énergieIndice d'émission de gaz à effet de serre

Classe énergie

Logement économe
0 à 50
51 à 90
57 kWh/m².an
91 à 150
151 à 230
231 à 330
331 à 450
451 et +
Logement énergivore

Indice d'émission de gaz à effet de serre (GES)

Faible émission de GES
0 à 5
6 à 10
11 à 20
13 kg/m².an
21 à 35
36 à 55
56 à 80
81 et +
Forte émission de GES

Date du dernier diagnostic (DPE Ancienne Version): 10/01/2017
Montant estimé des dépenses annuelles d'énergie pour un usage standard

150,98 EUR par an
Prix moyens des énergies indexés sur l'année 2016 (abonnement compris)

Etat des risques
Consultez l'état des risques réglementés pour l'information des acquéreurs et des locataires ici
Les informations sur les risques auxquels ce bien est exposé sont disponibles sur le site Géorisques : www.georisques.gouv.fr
Localisation du bien
Vos temps de trajet moyen
  • Ajouter un point d'intérêt personnalisé
 Nature du lieuAdresseDurée du trajet en voitureDurée du trajet en transport en communDurée du trajet en véloDurée du trajet à piedActions    Actions

Ce bien a attiré votre attention ?

Ajoutez vos emplacements préférés pour calculer le temps de trajet depuis ce bien.

Connexion

Pas encore de compte ? Créez un espace utilisateur AFEDIM.

OK X
Nous contacter

Pour toute demande de renseignements complémentaires, demander à visiter le bien ou tout simplement déposer votre dossier de location...
N'hésitez pas à nous contacter !