Louer Résultats de votre recherche Détail de l'annonce

Location Appartement 3 pièces de 64m² à 850 EUR/mois à BORDEAUX

CAP 140 - Appartement - 3 pièces
A propos de ce bien :

850EUR / mois

Charges comprises

  • Appartement
  • 132 RUE DUPATY
    33300 BORDEAUX
  • 3 pièces
  • 64,12m²
  • 3ème étage
  • Disponibilité immédiate
  • DPE : C

Ce bien vous est proposé par notre filiale :

AFEDIM Gestion
Mes notes

Ce bien a attiré votre attention ?

Retrouvez vos notes personnelles en vous connectant à votre espace.

Connexion

Pas encore de compte ? Créez un espace utilisateur AFEDIM.

Description du logement

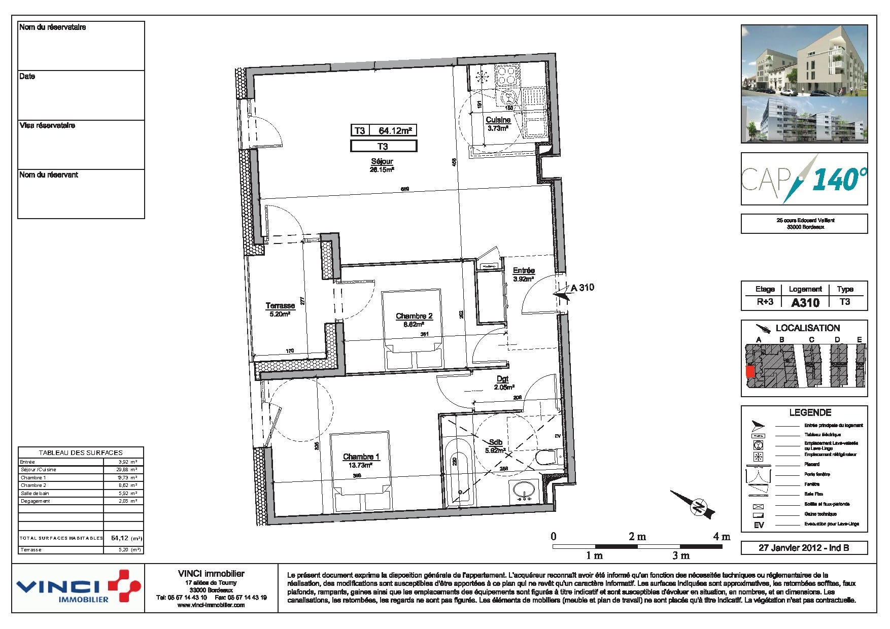
A BORDEAUX, dans la résidence CAP 140, au 3ème étage avec ascenseur du bâtiment A, appartement T3 n°A310 (lot 206) de 64.12 m² avec terrasse de 5.20 m², composé d'une entrée avec placard, un séjour avec coin cuisine, un dégagement, deux chambres, une salle de bain avec WC. Au sous-sol, un parking n°84 (lot 84). Eau chaude et chauffage collectif gaz, entretien parties communes, ascenseur et espaces verts communs, compris dans les provisions sur charges mensuelles et donnant lieu à une régularisation annuelle. Les honoraires de location TTC (à la charge du locataire) incluent le montant de rédaction des états des lieux facturé pour 192 euros TTC, après réalisation lors de l'entrée dans les lieux. Plus de détails sur notre site internet AFEDIM.


Voir le plan du lot


Numéro commercial : A310

Référence du bien : 0043956


Caractéristique(s) de l'immeuble

  • Antenne TV

  • Ascenseur


Caractéristique(s) du logement

  • Surface habitable : 64,12 m²

  • Terrasse (5,00 m²)

  • 3ème étage

  • Eau chaude collective - Chaudière à gaz

  • Chauffage collectif - Chaudière à gaz

  • Orientation : Nord-Ouest

  • Placard(s)


Annexes

  • Parking


Zone soumise à encadrement des loyers

  • Loyer de référence majoré : 897,68 EUR
    (Loyer de base à ne pas dépasser)

  • Loyer de base : 750,2 EUR
    (Loyer de référence)


Conditions financières

  • Loyer hors charges : 707 EUR

  • Montant du dépôt de garantie : 707 EUR

  • Provision sur charges : 143 EUR

  • Honoraires TTC à la charge du locataire : 646 EUR

  • Honoraires TTC états des lieux locataire : 194 EUR


Bilan énergétique


Performance du logementGaz à effet de serre

Échelle de performance énergétique s'étalant du niveau A, correspondant à un logement extrêmement performant, au niveau G, correspondant à un logement extrêmement peu performant. Les niveaux F et G sont qualifiés de passoires énergétiques. La consommation (énergie primaire) est de 82 kWh/m².an et est associée à une émission de 15 kg de dioxyde de carbone/m².an (voir détail de l'émission de gaz à effet de serre ci-après), cela correspond à une performance énergétique de niveau C.

Échelle d'émissions des gaz à effet de serre s'étalant du niveau A, correspondant à peu d'émission de CO2, au niveau G, correspondant à des émissions très importantes. Avec une émission de 15 kg de dioxyde de carbone/m²/an, l'émission de gaz à effet de serre est de niveau C.


Date du dernier diagnostic : 20/05/2025
Montant estimé des dépenses annuelles d'énergie pour un usage standard

Les coûts sont estimés en fonction des caractéristiques du logement et pour une utilisation sur 5 usages (chauffage, eau chaude sanitaire, climatisation, éclairage, auxiliaires).


entre 410 EUR et 610 EUR par an


Prix moyens des énergies indexés sur les années 2021, 2022 et 2023 (abonnements compris)

Etat des risques
Consultez l'état des risques réglementés pour l'information des acquéreurs et des locataires ici
Les informations sur les risques auxquels ce bien est exposé sont disponibles sur le site Géorisques : www.georisques.gouv.fr
Localisation du bien
Vos temps de trajet moyen
  • Ajouter un point d'intérêt personnalisé
 Nature du lieuAdresseDurée du trajet en voitureDurée du trajet en transport en communDurée du trajet en véloDurée du trajet à piedActions    Actions

Ce bien a attiré votre attention ?

Ajoutez vos emplacements préférés pour calculer le temps de trajet depuis ce bien.

Connexion

Pas encore de compte ? Créez un espace utilisateur AFEDIM.

OK X
Nous contacter

Pour toute demande de renseignements complémentaires, demander à visiter le bien ou tout simplement déposer votre dossier de location...
N'hésitez pas à nous contacter !


Autres annonces à proximité