Louer Résultats de votre recherche Détail de l'annonce

Location Appartement 1 pièce de 36m² à 741 EUR/mois à BOIS D ARCY

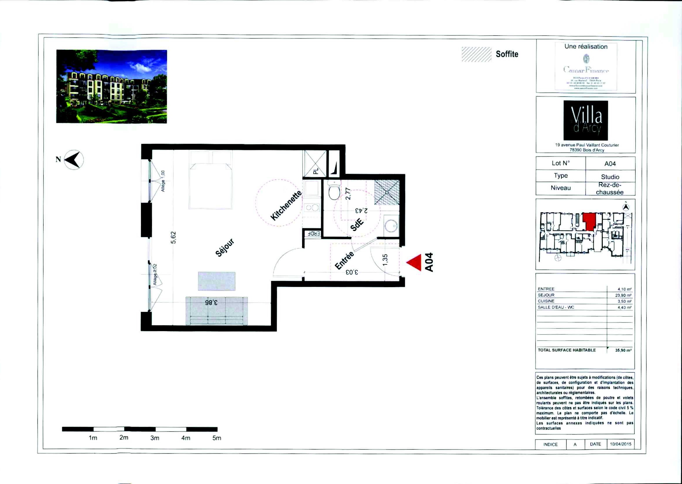
VILLA D ARCY - Appartement - 1 pièce
A propos de ce bien :

741,34EUR / mois

Charges comprises

  • Appartement
  • 19 AVENUE PAUL VAILLANT COUTURIER A04
    78390 BOIS D ARCY
  • 1 pièce
  • 35,9m²
  • Rez-de-chaussée
  • Disponibilité immédiate
  • DPE : D

Location soumise au respect d'un plafond de ressources/revenus

Calculer le plafond de ressources

Ce bien vous est proposé par notre filiale :

AFEDIM Gestion
Mes notes

Ce bien a attiré votre attention ?

Retrouvez vos notes personnelles en vous connectant à votre espace.

Connexion

Pas encore de compte ? Créez un espace utilisateur AFEDIM.

Description du logement

A BOIS D'ARCY dans la résidence VILLA D ARCY. Nous vous proposons un studio d'une superficie de 35,90m² situé au rez de chausée avec ascenseur, comprenant : Une entrée, un séjour d'environ 23,9m² avec coin kitchenette aménagé et équipé (hotte et plaque de cuisson) et une salle de bain avec WC. Au sous-sol, un parking n°8. Eau chaude et chauffage (collectif). Entretien parties communes, entretien ascenseur et espaces verts communs, compris dans les provisions sur charges mensuelles et donnant lieu à une régularisation annuelle. Les honoraires de location TTC (à la charge du locataire) incluent le montant de rédaction des états des lieux facturé pour 108.00 euros TTC, après réalisation lors de l'entrée dans les lieux. Disponible le 24/04/2026. Pour plus de détails sur ce logement, vous pouvez consulter la fiche descriptive de ce bien, sur votre site internet AFEDIM.


Voir le plan du lot


Numéro commercial : A04

Référence du bien : 0029330


Caractéristique(s) de l'immeuble

  • Résidence sécurisée

  • Antenne TV

  • Ascenseur


Caractéristique(s) du logement

  • Surface habitable : 35,9 m²

  • Rez-de-chaussée

  • Eau chaude collective - Chaudière à gaz

  • Chauffage collectif - Chaudière à gaz

  • Cuisine : Aménagée et équipée

  • Orientation : Nord

  • Placard(s)


Annexes

  • Parking


Conditions financières

  • Loyer hors charges : 581,34 EUR

  • Montant du dépôt de garantie : 581,34 EUR

  • Provision sur charges : 160 EUR

  • Honoraires TTC à la charge du locataire : 362 EUR

  • Honoraires TTC états des lieux locataire : 108 EUR


Bilan énergétique


Performance du logementGaz à effet de serre

Échelle de performance énergétique s'étalant du niveau A, correspondant à un logement extrêmement performant, au niveau G, correspondant à un logement extrêmement peu performant. Les niveaux F et G sont qualifiés de passoires énergétiques. La consommation (énergie primaire) est de 182 kWh/m².an et est associée à une émission de 37 kg de dioxyde de carbone/m².an (voir détail de l'émission de gaz à effet de serre ci-après), cela correspond à une performance énergétique de niveau D.

Échelle d'émissions des gaz à effet de serre s'étalant du niveau A, correspondant à peu d'émission de CO2, au niveau G, correspondant à des émissions très importantes. Avec une émission de 37 kg de dioxyde de carbone/m²/an, l'émission de gaz à effet de serre est de niveau D.


Date du dernier diagnostic : 23/06/2025
Montant estimé des dépenses annuelles d'énergie pour un usage standard

Les coûts sont estimés en fonction des caractéristiques du logement et pour une utilisation sur 5 usages (chauffage, eau chaude sanitaire, climatisation, éclairage, auxiliaires).


entre 451 EUR et 451 EUR par an


Prix moyens des énergies indexés sur les années 2021, 2022 et 2023 (abonnements compris)

Etat des risques
Consultez l'état des risques réglementés pour l'information des acquéreurs et des locataires ici
Les informations sur les risques auxquels ce bien est exposé sont disponibles sur le site Géorisques : www.georisques.gouv.fr
Localisation du bien
Vos temps de trajet moyen
  • Ajouter un point d'intérêt personnalisé
 Nature du lieuAdresseDurée du trajet en voitureDurée du trajet en transport en communDurée du trajet en véloDurée du trajet à piedActions    Actions

Ce bien a attiré votre attention ?

Ajoutez vos emplacements préférés pour calculer le temps de trajet depuis ce bien.

Connexion

Pas encore de compte ? Créez un espace utilisateur AFEDIM.

OK X
Nous contacter

Pour toute demande de renseignements complémentaires, demander à visiter le bien ou tout simplement déposer votre dossier de location...
N'hésitez pas à nous contacter !