Louer Résultats de votre recherche Détail de l'annonce

Location Appartement 2 pièces de 50m² à 675 EUR/mois à ARMENTIERES

CARRE DES OCTAVES - Appartement - 2 pièces
A propos de ce bien :

675EUR / mois

Charges comprises

  • Appartement
  • 39 AVENUE FRANCOIS MITTERRAND
    59280 ARMENTIERES
  • 2 pièces
  • 49,76m²
  • 1er étage
  • Disponible dès le 01/07/2026
  • DPE : C

Location soumise au respect d'un plafond de ressources/revenus

Calculer le plafond de ressources

Ce bien vous est proposé par notre filiale :

AFEDIM Gestion
Mes notes

Ce bien a attiré votre attention ?

Retrouvez vos notes personnelles en vous connectant à votre espace.

Connexion

Pas encore de compte ? Créez un espace utilisateur AFEDIM.

Description du logement

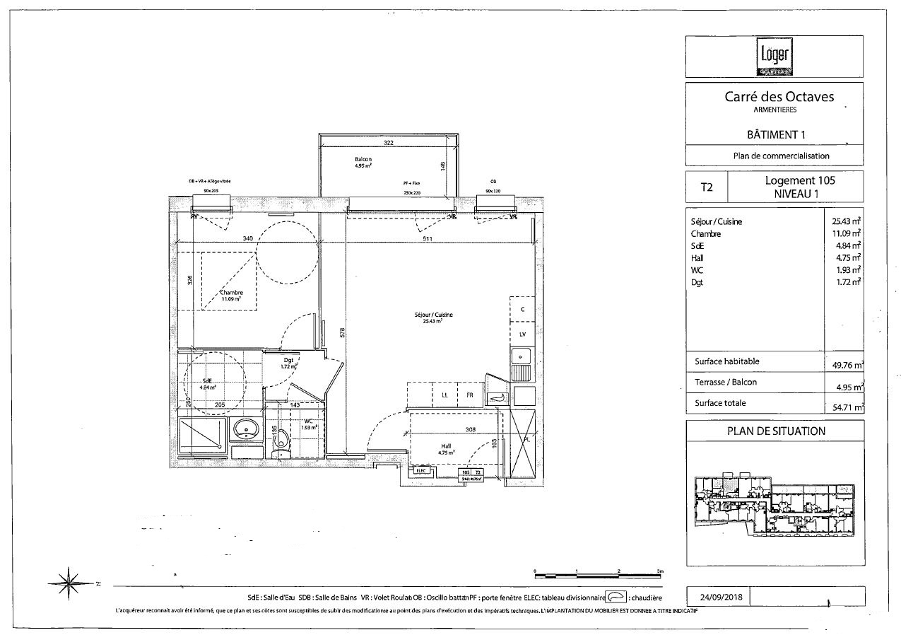
A Armentières, dans la Résidence Carré des Octaves située à 5 minutes du centre ville et à 10 minutes de la gare, nous vous proposons un appartement T2 de 49.76 m². Situé au 1er étage, il se compose d'une entrée avec placard, d'un séjour de 25.43 m² avec cuisine aménagée et équipée donnant sur balcon de 4.95m², d'une chambre de 11 m², d'une salle d'eau et d'un WC séparé. Un parking sous-sol sécurisé n°PRC101 accompagné d'un local et d'une cave n°CV108. Eau chaude et chauffage gaz individuel. Entretien parties communes et espaces verts communs compris dans les provisions sur charges mensuelles et donnant lieu à une régularisation annuelle. Les honoraires de location de 551 euros TTC (à la charge du locataire) incluent le montant de rédaction des états des lieux facturé pour 150 euros TTC, après réalisation lors de l'entrée dans les lieux. Le règlement des honoraires état des lieux est à adresser avec le bail signé à AFEDIM Gestion.


Voir le plan du lot


Numéro commercial : 1-105

Référence du bien : 0057908


Caractéristique(s) de l'immeuble

  • Résidence sécurisée

  • Antenne TV

  • Ascenseur

  • Espaces verts

  • Local à vélo


Caractéristique(s) du logement

  • Surface habitable : 49,76 m²

  • Balcon (4,95 m²)

  • 1er étage

  • Eau chaude individuelle - Chaudière à gaz

  • Chauffage individuel - Chaudière à gaz

  • Cuisine : Aménagée et équipée

  • Orientation : Ouest

  • Placard(s)


Annexes

  • Parking

  • Cave


Conditions financières

  • Loyer hors charges : 573 EUR

  • Montant du dépôt de garantie : 573 EUR

  • Provision sur charges : 102 EUR

  • Honoraires TTC à la charge du locataire : 401 EUR

  • Honoraires TTC états des lieux locataire : 150 EUR


Bilan énergétique


Performance du logementGaz à effet de serre

Échelle de performance énergétique s'étalant du niveau A, correspondant à un logement extrêmement performant, au niveau G, correspondant à un logement extrêmement peu performant. Les niveaux F et G sont qualifiés de passoires énergétiques. La consommation (énergie primaire) est de 74 kWh/m².an et est associée à une émission de 13 kg de dioxyde de carbone/m².an (voir détail de l'émission de gaz à effet de serre ci-après), cela correspond à une performance énergétique de niveau C.

Échelle d'émissions des gaz à effet de serre s'étalant du niveau A, correspondant à peu d'émission de CO2, au niveau G, correspondant à des émissions très importantes. Avec une émission de 13 kg de dioxyde de carbone/m²/an, l'émission de gaz à effet de serre est de niveau C.


Date du dernier diagnostic : 26/03/2025
Montant estimé des dépenses annuelles d'énergie pour un usage standard

Les coûts sont estimés en fonction des caractéristiques du logement et pour une utilisation sur 5 usages (chauffage, eau chaude sanitaire, climatisation, éclairage, auxiliaires).


entre 430 EUR et 582 EUR par an


Prix moyens des énergies indexés sur les années 2021, 2022 et 2023 (abonnements compris)

Etat des risques
Consultez l'état des risques réglementés pour l'information des acquéreurs et des locataires ici
Les informations sur les risques auxquels ce bien est exposé sont disponibles sur le site Géorisques : www.georisques.gouv.fr
Localisation du bien
Vos temps de trajet moyen
  • Ajouter un point d'intérêt personnalisé
 Nature du lieuAdresseDurée du trajet en voitureDurée du trajet en transport en communDurée du trajet en véloDurée du trajet à piedActions    Actions

Ce bien a attiré votre attention ?

Ajoutez vos emplacements préférés pour calculer le temps de trajet depuis ce bien.

Connexion

Pas encore de compte ? Créez un espace utilisateur AFEDIM.

OK X
Nous contacter

Pour toute demande de renseignements complémentaires, demander à visiter le bien ou tout simplement déposer votre dossier de location...
N'hésitez pas à nous contacter !


Autres annonces à proximité