Louer Résultats de votre recherche Détail de l'annonce

Location Appartement 2 pièces de 50m² à 708 EUR/mois à AMIENS

JARDINS D'ELENA - Appartement - 2 pièces
A propos de ce bien :

708EUR / mois

Charges comprises

  • Appartement
  • 11 ALLEE DE LA TETE D'OR
    80000 AMIENS
  • 2 pièces
  • 49,5m²
  • 1er étage
  • Disponible dès le 21/06/2026
  • DPE : C

Location soumise au respect d'un plafond de ressources/revenus

Calculer le plafond de ressources

Ce bien vous est proposé par notre filiale :

AFEDIM Gestion
Mes notes

Ce bien a attiré votre attention ?

Retrouvez vos notes personnelles en vous connectant à votre espace.

Connexion

Pas encore de compte ? Créez un espace utilisateur AFEDIM.

Description du logement

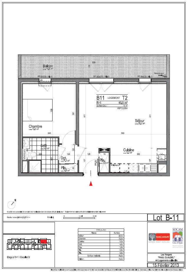
A AMIENS- Dans la résidence LES JARDINS D'ELENA, nous vous proposons un appartement T2 n°B11 de 49.50m² avec balcon de 14.00m², situé au 1er étage du bâtiment B, avec ascenseur. Il comprend une entrée avec placard, un séjour avec cuisine ouverte, un dégagement avec placard, une chambre, une salle de bains avec WC. Au sous-sol, un emplacement de stationnement n°14. Eau chaude et chauffage gaz individuels. Eau froide, entretien parties communes, entretien ascenseur et espaces verts communs, compris dans les provisions sur charges mensuelles et donnant lieu à une régularisation annuelle. Les honoraires de location TTC (à la charge du locataire) incluent le montant de rédaction des états des lieux facturé pour 149 euros TTC, après réalisation lors de l'entrée dans les lieux. Disponibilité au 20/06/2026


Voir le plan du lot


Numéro commercial : B11

Référence du bien : 0027465


Caractéristique(s) de l'immeuble

  • Résidence sécurisée

  • Antenne TV

  • Ascenseur

  • Espaces verts


Caractéristique(s) du logement

  • Surface habitable : 49,5 m²

  • 1er étage

  • Eau chaude individuelle - Chaudière à gaz

  • Chauffage individuel - Chaudière à gaz

  • Cuisine : Non aménagée et non équipée

  • Placard(s)


Conditions financières

  • Loyer hors charges : 632 EUR

  • Montant du dépôt de garantie : 632 EUR

  • Provision sur charges : 76 EUR

  • Honoraires TTC à la charge du locataire : 399 EUR

  • Honoraires TTC états des lieux locataire : 149 EUR


Bilan énergétique


Performance du logementGaz à effet de serre

Échelle de performance énergétique s'étalant du niveau A, correspondant à un logement extrêmement performant, au niveau G, correspondant à un logement extrêmement peu performant. Les niveaux F et G sont qualifiés de passoires énergétiques. La consommation (énergie primaire) est de 77 kWh/m².an et est associée à une émission de 14 kg de dioxyde de carbone/m².an (voir détail de l'émission de gaz à effet de serre ci-après), cela correspond à une performance énergétique de niveau C.

Échelle d'émissions des gaz à effet de serre s'étalant du niveau A, correspondant à peu d'émission de CO2, au niveau G, correspondant à des émissions très importantes. Avec une émission de 14 kg de dioxyde de carbone/m²/an, l'émission de gaz à effet de serre est de niveau C.


Date du dernier diagnostic : 24/04/2026
Montant estimé des dépenses annuelles d'énergie pour un usage standard

Les coûts sont estimés en fonction des caractéristiques du logement et pour une utilisation sur 5 usages (chauffage, eau chaude sanitaire, climatisation, éclairage, auxiliaires).


entre 430 EUR et 630 EUR par an


Prix moyens des énergies indexés sur l'année 2021 (abonnement compris)

Etat des risques
Consultez l'état des risques réglementés pour l'information des acquéreurs et des locataires ici
Les informations sur les risques auxquels ce bien est exposé sont disponibles sur le site Géorisques : www.georisques.gouv.fr
Localisation du bien
Vos temps de trajet moyen
  • Ajouter un point d'intérêt personnalisé
 Nature du lieuAdresseDurée du trajet en voitureDurée du trajet en transport en communDurée du trajet en véloDurée du trajet à piedActions    Actions

Ce bien a attiré votre attention ?

Ajoutez vos emplacements préférés pour calculer le temps de trajet depuis ce bien.

Connexion

Pas encore de compte ? Créez un espace utilisateur AFEDIM.

OK X
Nous contacter

Pour toute demande de renseignements complémentaires, demander à visiter le bien ou tout simplement déposer votre dossier de location...
N'hésitez pas à nous contacter !


Autres annonces à proximité