Louer Détail de l'annonce

Location Appartement 4 pièces de 91m² à 1 021 EUR/mois à VERTOU

PATIO DE LA VERTONNE - TR 2 - Appartement - 4 pièces
A propos de ce bien :

1 021EUR / mois

Charges comprises

  • Appartement
  • 141 ROUTE DE LA GARE
    44120 VERTOU
  • 4 pièces
  • 91,35m²
  • 3ème étage
  • Disponibilité immédiate
  • DPE : B

Location soumise au respect d'un plafond de ressources/revenus

Calculer le plafond de ressources

Ce bien vous est proposé par notre filiale :

AFEDIM Gestion
Mes notes

Ce bien a attiré votre attention ?

Retrouvez vos notes personnelles en vous connectant à votre espace.

Connexion

Pas encore de compte ? Créez un espace utilisateur AFEDIM.

Description du logement

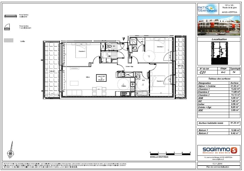
Vertou. Dans la résidence "PATIO DE LA VERTONNE", nous vous proposons un appartement de type T4 de 91.35 m². Situé au 3ème étage avec ascenseur, il comprend : un séjour + cuisine donnant sur un balcon de 12.69 m², auquel on peut également accéder par la chambre 3, deux autres chambres 1 et 2 donnant sur un balcon de 8.42m², une salle d'eau, une salle de bain, un cellier, et des WC. A l'extérieur deux parkings n°01 et n°02, et un local vélo au rez-de-chaussée. Eau chaude et chauffage individuel gaz. Eau froide, entretien parties communes, entretien ascenseur et espaces verts communs, compris dans les provisions sur charges mensuelles et donnant lieu à une régularisation annuelle. Les honoraires de location TTC (à la charge du locataire) incluent le montant de rédaction des états des lieux facturé pour 274euros TTC, après réalisation lors de l'entrée dans les lieux. Pour plus de détails sur ce logement, vous pouvez consulter la fiche descriptive sur notre site AFEDIM.


Voir le plan du lot


Numéro commercial : C21

Référence du bien : 0031974


Caractéristique(s) de l'immeuble

  • Résidence sécurisée

  • Antenne TV

  • Fibre optique

  • Ascenseur

  • Espaces verts


Caractéristique(s) du logement

  • Surface habitable : 91,35 m²

  • Balcon (8,00 m²)

  • 3ème étage

  • Eau chaude individuelle - Chaudière à gaz

  • Chauffage individuel - Chaudière à gaz

  • Cuisine : Aménagée

  • Placard(s)


Annexes

  • Parking

  • Garage à vélos


Conditions financières

  • Loyer hors charges : 938 EUR

  • Montant du dépôt de garantie : 938 EUR

  • Provision sur charges : 83 EUR

  • Honoraires TTC à la charge du locataire : 921 EUR

  • Honoraires TTC états des lieux locataire : 276 EUR


Bilan énergétique


Performance du logementGaz à effet de serre

Échelle de performance énergétique s'étalant du niveau A, correspondant à un logement extrêmement performant, au niveau G, correspondant à un logement extrêmement peu performant. Les niveaux F et G sont qualifiés de passoires énergétiques. La consommation (énergie primaire) est de 58 kWh/m².an et est associée à une émission de 10 kg de dioxyde de carbone/m².an (voir détail de l'émission de gaz à effet de serre ci-après), cela correspond à une performance énergétique de niveau B.

Échelle d'émissions des gaz à effet de serre s'étalant du niveau A, correspondant à peu d'émission de CO2, au niveau G, correspondant à des émissions très importantes. Avec une émission de 10 kg de dioxyde de carbone/m²/an, l'émission de gaz à effet de serre est de niveau B.


Date du dernier diagnostic : 01/12/2025
Montant estimé des dépenses annuelles d'énergie pour un usage standard

Les coûts sont estimés en fonction des caractéristiques du logement et pour une utilisation sur 5 usages (chauffage, eau chaude sanitaire, climatisation, éclairage, auxiliaires).


entre 282 EUR et 282 EUR par an


Prix moyens des énergies indexés sur l'année 2021 (abonnement compris)

Etat des risques
Consultez l'état des risques réglementés pour l'information des acquéreurs et des locataires ici
Les informations sur les risques auxquels ce bien est exposé sont disponibles sur le site Géorisques : www.georisques.gouv.fr
Localisation du bien
Vos temps de trajet moyen
  • Ajouter un point d'intérêt personnalisé
 Nature du lieuAdresseDurée du trajet en voitureDurée du trajet en transport en communDurée du trajet en véloDurée du trajet à piedActions    Actions

Ce bien a attiré votre attention ?

Ajoutez vos emplacements préférés pour calculer le temps de trajet depuis ce bien.

Connexion

Pas encore de compte ? Créez un espace utilisateur AFEDIM.

OK X
Nous contacter

Pour toute demande de renseignements complémentaires, demander à visiter le bien ou tout simplement déposer votre dossier de location...
N'hésitez pas à nous contacter !


Autres annonces à proximité