Louer Détail de l'annonce

Location Appartement 2 pièces de 41m² à 518 EUR/mois à ST PRYVE ST MESMIN

RESIDENCE LE PRYVE - Appartement - 2 pièces
A propos de ce bien :

518EUR / mois

Charges comprises

  • Appartement
  • 9 RUE SAINT EUSPICE
    45750 ST PRYVE ST MESMIN
  • 2 pièces
  • 41,33m²
  • 2ème étage
  • Disponible dès le 01/07/2026
  • DPE : B

Location soumise au respect d'un plafond de ressources/revenus

Calculer le plafond de ressources

Ce bien vous est proposé par notre filiale :

AFEDIM Gestion
Mes notes

Ce bien a attiré votre attention ?

Retrouvez vos notes personnelles en vous connectant à votre espace.

Connexion

Pas encore de compte ? Créez un espace utilisateur AFEDIM.

Description du logement

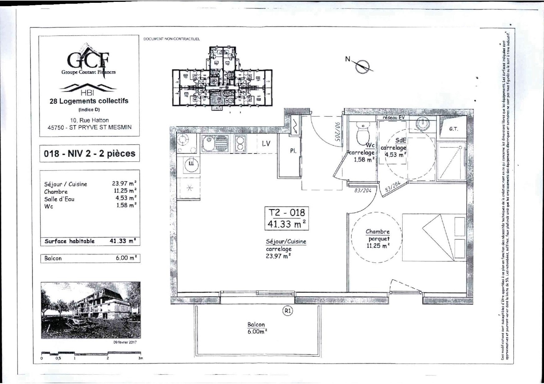
SAINT PRYVE ST MESMIN, dans la résidence sécurisée LE PRYVE, proche commerces de proximité, vous est proposé un appartement T2 n°18 de 41.33m² sis au 2eme étage avec ascenseur. Il comprend un séjour de 23.97m² avec cuisine ouverte donnant sur un balcon de 6m², une salle d'eau de 4.53m², un WC et une chambre de 11.25m². Parking extérieur n°47. Eau froide, Chauffage et eau chaude individuel gaz. Entretien chaudière, parties communes, ascenseur et espaces verts communs, compris dans les provisions sur charges mensuelles et donnant lieu à une régularisation annuelle. Les honoraires de location sont facturés directement au locataire par le partenaire pour 417 EUR TTC. Quant aux honoraires de rédaction des états des lieux, ils sont facturés par AFEDIM Gestion pour 125 EUR TTC, après réalisation, lors de l'entrée dans les lieux. DPE expiré, en cours de réalisation. Plus de détails sur notre site internet AFEDIM.


Voir le plan du lot


Numéro commercial : 18

Référence du bien : 0046855


Caractéristique(s) de l'immeuble

  • Résidence sécurisée

  • Ascenseur


Caractéristique(s) du logement

  • Surface habitable : 41,33 m²

  • Balcon (6,00 m²)

  • 2ème étage

  • Eau chaude individuelle - Chaudière à gaz

  • Chauffage individuel - Chaudière à gaz

  • Orientation : Sud-Ouest

  • Placard(s)


Annexes

  • Parking


Conditions financières

  • Loyer hors charges : 453 EUR

  • Montant du dépôt de garantie : 453 EUR

  • Provision sur charges : 65 EUR

  • Honoraires TTC à la charge du locataire : 417 EUR

  • Honoraires TTC états des lieux locataire : 125 EUR


Bilan énergétique


Classe énergieIndice d'émission de gaz à effet de serre

Classe énergie

Logement économe
0 à 50
51 à 90
68 kWh/m².an
91 à 150
151 à 230
231 à 330
331 à 450
451 et +
Logement énergivore

Indice d'émission de gaz à effet de serre (GES)

Faible émission de GES
0 à 5
6 à 10
11 à 20
16 kg/m².an
21 à 35
36 à 55
56 à 80
81 et +
Forte émission de GES

Date du dernier diagnostic (DPE Ancienne Version): 29/03/2019
Etat des risques
Consultez l'état des risques réglementés pour l'information des acquéreurs et des locataires ici
Les informations sur les risques auxquels ce bien est exposé sont disponibles sur le site Géorisques : www.georisques.gouv.fr
Localisation du bien
Vos temps de trajet moyen
  • Ajouter un point d'intérêt personnalisé
 Nature du lieuAdresseDurée du trajet en voitureDurée du trajet en transport en communDurée du trajet en véloDurée du trajet à piedActions    Actions

Ce bien a attiré votre attention ?

Ajoutez vos emplacements préférés pour calculer le temps de trajet depuis ce bien.

Connexion

Pas encore de compte ? Créez un espace utilisateur AFEDIM.

OK X
Nous contacter

Pour toute demande de renseignements complémentaires, demander à visiter le bien ou tout simplement déposer votre dossier de location...
N'hésitez pas à nous contacter !


Autres annonces à proximité