Louer Détail de l'annonce

Location Appartement 3 pièces de 61m² à 753 EUR/mois à ST HERBLAIN

CHARMILLES - Appartement - 3 pièces
A propos de ce bien :

753EUR / mois

Charges comprises

  • Appartement
  • 2 RUE MADELEINE BRES
    44800 ST HERBLAIN
  • 3 pièces
  • 60,9m²
  • 2ème étage
  • Disponibilité immédiate
  • DPE : C

Location soumise au respect d'un plafond de ressources/revenus

Ce bien vous est proposé par notre filiale :

AFEDIM Gestion
Mes notes

Ce bien a attiré votre attention ?

Retrouvez vos notes personnelles en vous connectant à votre espace.

Connexion

Pas encore de compte ? Créez un espace utilisateur AFEDIM.

Description du logement

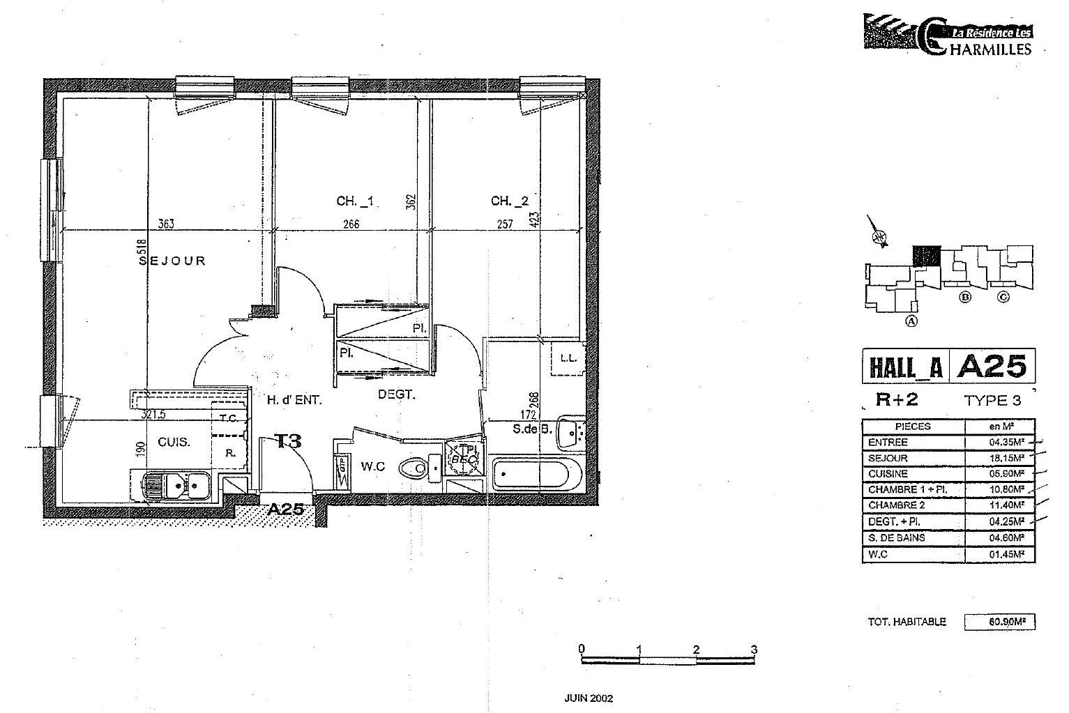
Situation idéale à proximité du tramway, dans la résidence Les Charmilles à Saint Herblain, bel appartement T3 n°A25 d'environ 60m² (lot 15), situé au 2ème étage du bâtiment A, composé d'une entrée, un séjour, une cuisine, deux chambres dont une avec placard, un dégagement avec placard, une salle de bain, WC. Un grenier n° 25 (lot 36) escalier B Combles et un parking extérieur n° 25 (lot 76) sous pergola. Chauffage et eau chaude individuel électrique. Eau froide individuelle. Entretien parties communes, entretien ascenseur et espaces verts communs, compris dans les provisions sur charges mensuelles et donnant lieu à une régularisation annuelle. Les honoraires de location de 791 euros TTC (à la charge du locataire) incluent le montant de rédaction des états des lieux facturé pour 182 euros TTC, après réalisation lors de l'entrée dans les lieux. Plus de détails sur notre site AFEDIM.


Voir le plan du lot


Numéro commercial : A25

Référence du bien : 0039798


Caractéristique(s) du logement

  • Surface habitable : 60,9 m²

  • 2ème étage

  • Eau chaude individuelle - électrique

  • Chauffage individuel - Electrique

  • Cuisine : Non aménagée et non équipée

  • Placard(s)


Annexes

  • Parking

  • Cave


Conditions financières

  • Loyer hors charges : 694 EUR

  • Montant du dépôt de garantie : 694 EUR

  • Provision sur charges : 59 EUR

  • Honoraires TTC à la charge du locataire : 614 EUR

  • Honoraires TTC états des lieux locataire : 184 EUR


Bilan énergétique


Performance du logementGaz à effet de serre

Échelle de performance énergétique s'étalant du niveau A, correspondant à un logement extrêmement performant, au niveau G, correspondant à un logement extrêmement peu performant. Les niveaux F et G sont qualifiés de passoires énergétiques. La consommation (énergie primaire) est de 173 kWh/m².an et est associée à une émission de 6 kg de dioxyde de carbone/m².an (voir détail de l'émission de gaz à effet de serre ci-après), cela correspond à une performance énergétique de niveau C.

Échelle d'émissions des gaz à effet de serre s'étalant du niveau A, correspondant à peu d'émission de CO2, au niveau G, correspondant à des émissions très importantes. Avec une émission de 6 kg de dioxyde de carbone/m²/an, l'émission de gaz à effet de serre est de niveau B.


Date du dernier diagnostic : 08/01/2026
Montant estimé des dépenses annuelles d'énergie pour un usage standard

Les coûts sont estimés en fonction des caractéristiques du logement et pour une utilisation sur 5 usages (chauffage, eau chaude sanitaire, climatisation, éclairage, auxiliaires).


entre 1 020 EUR et 1 420 EUR par an


Prix moyens des énergies indexés sur les années 2021, 2022 et 2023 (abonnements compris)

Etat des risques
Consultez l'état des risques réglementés pour l'information des acquéreurs et des locataires ici
Les informations sur les risques auxquels ce bien est exposé sont disponibles sur le site Géorisques : www.georisques.gouv.fr
Localisation du bien
Vos temps de trajet moyen
  • Ajouter un point d'intérêt personnalisé
 Nature du lieuAdresseDurée du trajet en voitureDurée du trajet en transport en communDurée du trajet en véloDurée du trajet à piedActions    Actions

Ce bien a attiré votre attention ?

Ajoutez vos emplacements préférés pour calculer le temps de trajet depuis ce bien.

Connexion

Pas encore de compte ? Créez un espace utilisateur AFEDIM.

OK X
Nous contacter

Pour toute demande de renseignements complémentaires, demander à visiter le bien ou tout simplement déposer votre dossier de location...
N'hésitez pas à nous contacter !


Autres annonces à proximité