Louer Détail de l'annonce

Location Appartement 1 pièce de 34m² à 476 EUR/mois à ST HERBLAIN

GARDENIAS - Appartement - 1 pièce
A propos de ce bien :

476,43EUR / mois

Charges comprises

  • Appartement
  • 3 RUE MICHEL CHAUTY
    44800 ST HERBLAIN
  • 1 pièce
  • 34,09m²
  • 2ème étage
  • Disponible dès le 08/05/2026
  • DPE : C

Location soumise au respect d'un plafond de ressources/revenus

Calculer le plafond de ressources

Ce bien vous est proposé par notre filiale :

AFEDIM Gestion
Mes notes

Ce bien a attiré votre attention ?

Retrouvez vos notes personnelles en vous connectant à votre espace.

Connexion

Pas encore de compte ? Créez un espace utilisateur AFEDIM.

Description du logement

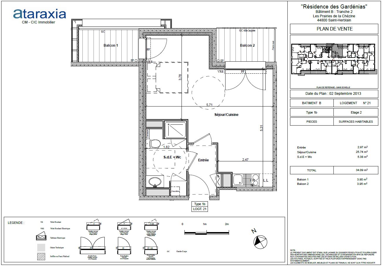
A St Herblain, au coeur d'un secteur résidentiel verdoyant, à proximité des zones commerciales, dans la Résidence LES GARDENIAS, un appartement T1 bis n°B21 (lot 157) de 34.09m² avec deux balcons de 3.90m² et 3.95m² situé au 2ème étage du bâtiment B, avec ascenseur. Il comprend une entrée, une pièce de vie avec kitchenette (plaque de cuisson), et une salle d'eau avec WC. Au 2ème sous-sol du bâtiment B, un stationnement n° 01 (lot 82). Eau chaude et chauffage (individuel). Entretien parties communes, entretien ascenseur et espaces verts communs, compris dans les provisions sur charges mensuelles et donnant lieu à une régularisation annuelle. Les honoraires de location 446euros TTC (à la charge du locataire) incluent le montant de rédaction des états des lieux facturé pour 103euros TTC, après réalisation lors de l'entrée dans les lieux. Disponible le 07/05/2026. Pour plus de détails sur ce logement, vous pouvez consulter la fiche descriptive de ce bien, sur votre site internet AFEDIM.


Voir le plan du lot


Numéro commercial : B21

Référence du bien : 0030724


Caractéristique(s) de l'immeuble

  • Résidence sécurisée

  • Antenne TV

  • Ascenseur

  • Espaces verts

  • Local à vélo


Caractéristique(s) du logement

  • Surface habitable : 34,09 m²

  • Balcon (3,00 m²)

  • 2ème étage

  • Eau chaude individuelle - Chaudière à gaz

  • Chauffage individuel - Chaudière à gaz

  • Cuisine : Kitchenette

  • Placard(s)


Annexes

  • Parking


Conditions financières

  • Loyer hors charges : 436,43 EUR

  • Montant du dépôt de garantie : 436,43 EUR

  • Provision sur charges : 40 EUR

  • Honoraires TTC à la charge du locataire : 343 EUR

  • Honoraires TTC états des lieux locataire : 103 EUR


Bilan énergétique


Performance du logementGaz à effet de serre

Échelle de performance énergétique s'étalant du niveau A, correspondant à un logement extrêmement performant, au niveau G, correspondant à un logement extrêmement peu performant. Les niveaux F et G sont qualifiés de passoires énergétiques. La consommation (énergie primaire) est de 121 kWh/m².an et est associée à une émission de 24 kg de dioxyde de carbone/m².an (voir détail de l'émission de gaz à effet de serre ci-après), cela correspond à une performance énergétique de niveau C.

Échelle d'émissions des gaz à effet de serre s'étalant du niveau A, correspondant à peu d'émission de CO2, au niveau G, correspondant à des émissions très importantes. Avec une émission de 24 kg de dioxyde de carbone/m²/an, l'émission de gaz à effet de serre est de niveau C.


Date du dernier diagnostic : 21/04/2026
Montant estimé des dépenses annuelles d'énergie pour un usage standard

Les coûts sont estimés en fonction des caractéristiques du logement et pour une utilisation sur 5 usages (chauffage, eau chaude sanitaire, climatisation, éclairage, auxiliaires).


entre 200 EUR et 200 EUR par an


Prix moyens des énergies indexés sur l'année 2026 (abonnement compris)

Etat des risques
Consultez l'état des risques réglementés pour l'information des acquéreurs et des locataires ici
Les informations sur les risques auxquels ce bien est exposé sont disponibles sur le site Géorisques : www.georisques.gouv.fr
Localisation du bien
Vos temps de trajet moyen
  • Ajouter un point d'intérêt personnalisé
 Nature du lieuAdresseDurée du trajet en voitureDurée du trajet en transport en communDurée du trajet en véloDurée du trajet à piedActions    Actions

Ce bien a attiré votre attention ?

Ajoutez vos emplacements préférés pour calculer le temps de trajet depuis ce bien.

Connexion

Pas encore de compte ? Créez un espace utilisateur AFEDIM.

OK X
Nous contacter

Pour toute demande de renseignements complémentaires, demander à visiter le bien ou tout simplement déposer votre dossier de location...
N'hésitez pas à nous contacter !


Autres annonces à proximité