Louer Détail de l'annonce

Location Appartement 2 pièces de 51m² à 620 EUR/mois à ROUEN

VILLA GARANCE* - Appartement - 2 pièces
A propos de ce bien :

619,8EUR / mois

Charges comprises

  • Appartement
  • 10 rue Florence Arthaud
    76100 ROUEN
  • 2 pièces
  • 51,1m²
  • 3ème étage
  • Disponible dès le 11/07/2026
  • DPE : C

Location soumise au respect d'un plafond de ressources/revenus

Calculer le plafond de ressources

Ce bien vous est proposé par notre filiale :

AFEDIM Gestion
Mes notes

Ce bien a attiré votre attention ?

Retrouvez vos notes personnelles en vous connectant à votre espace.

Connexion

Pas encore de compte ? Créez un espace utilisateur AFEDIM.

Description du logement

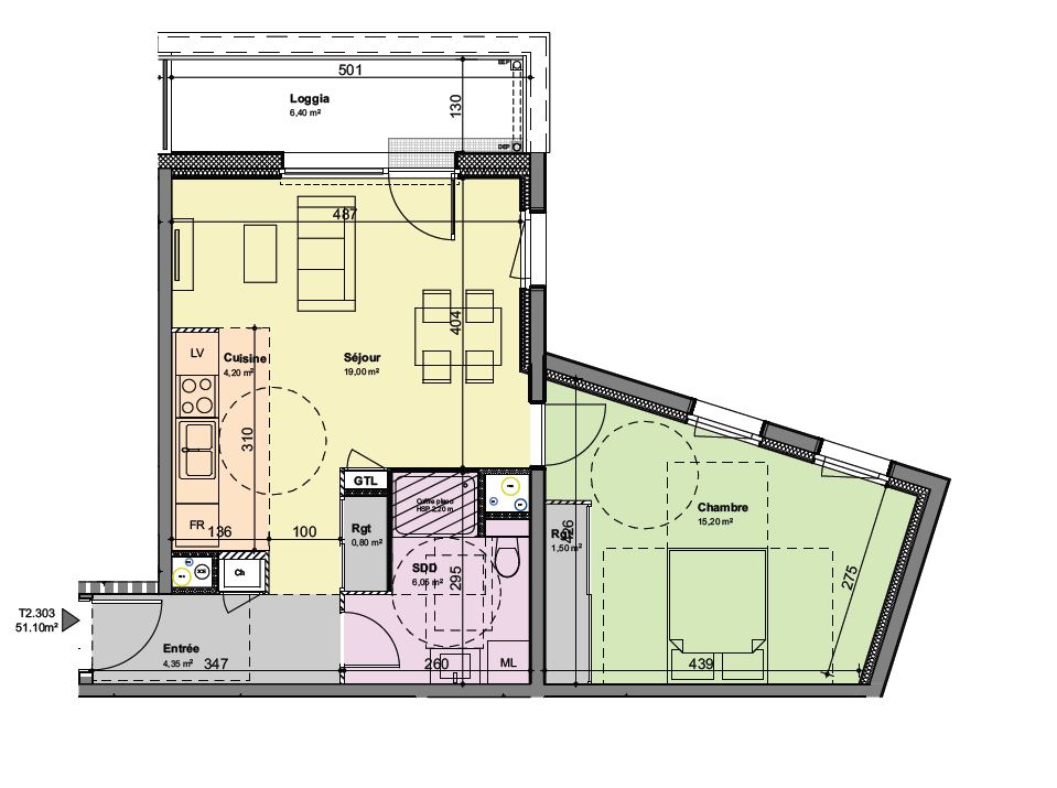
ROUEN, c'est ici dans la résidence Villa Garance que nous vous proposons un appartement T2 (n°303), d'une superficie de 51.10 m² situé au 3ème étage avec ascenseur. Il se compose d'un séjour de 19m² et d'une cuisine de 4.20 m² donnant sur une loggia de 6,40 m², d'une grande chambre de 15.20m² et d'une salle d'eau avec WC. Au RDC, un parking n° LOT 12 et numérotation au sol 51. Eau froide individuelle, Eau chaude et chauffage individuel au gaz. Entretien parties communes, entretien ascenseur et espaces verts communs, compris dans les provisions sur charges mensuelles et donnant lieu à une régularisation annuelle. Les honoraires de location TTC (à la charge du locataire) incluent le montant de rédaction des états des lieux facturé pour 154 euros TTC, après réalisation lors de l'entrée dans les lieux. Disponible le 11/07/2026. Pour plus de détails sur ce logement, vous pouvez consulter la fiche descriptive de ce bien, sur votre site internet AFEDIM


Voir le plan du lot


Numéro commercial : 303

Référence du bien : 0061059


Caractéristique(s) de l'immeuble

  • Résidence sécurisée

  • Antenne TV

  • Fibre optique

  • Ascenseur

  • Espaces verts

  • Local à vélo


Caractéristique(s) du logement

  • Surface habitable : 51,1 m²

  • Loggia (6,45 m²)

  • 3ème étage

  • Eau chaude individuelle - Chaudière à gaz

  • Chauffage individuel - Chaudière à gaz

  • Orientation : Nord

  • Placard(s)


Annexes

  • Parking


Conditions financières

  • Loyer hors charges : 564,8 EUR

  • Montant du dépôt de garantie : 564,8 EUR

  • Provision sur charges : 55 EUR

  • Honoraires TTC à la charge du locataire : 412 EUR

  • Honoraires TTC états des lieux locataire : 154 EUR


Bilan énergétique


Performance du logementGaz à effet de serre

Échelle de performance énergétique s'étalant du niveau A, correspondant à un logement extrêmement performant, au niveau G, correspondant à un logement extrêmement peu performant. Les niveaux F et G sont qualifiés de passoires énergétiques. La consommation (énergie primaire) est de 86 kWh/m².an et est associée à une émission de 17 kg de dioxyde de carbone/m².an (voir détail de l'émission de gaz à effet de serre ci-après), cela correspond à une performance énergétique de niveau C.

Échelle d'émissions des gaz à effet de serre s'étalant du niveau A, correspondant à peu d'émission de CO2, au niveau G, correspondant à des émissions très importantes. Avec une émission de 17 kg de dioxyde de carbone/m²/an, l'émission de gaz à effet de serre est de niveau C.


Date du dernier diagnostic : 02/12/2021
Etat des risques
Consultez l'état des risques réglementés pour l'information des acquéreurs et des locataires ici
Les informations sur les risques auxquels ce bien est exposé sont disponibles sur le site Géorisques : www.georisques.gouv.fr
Localisation du bien
Vos temps de trajet moyen
  • Ajouter un point d'intérêt personnalisé
 Nature du lieuAdresseDurée du trajet en voitureDurée du trajet en transport en communDurée du trajet en véloDurée du trajet à piedActions    Actions

Ce bien a attiré votre attention ?

Ajoutez vos emplacements préférés pour calculer le temps de trajet depuis ce bien.

Connexion

Pas encore de compte ? Créez un espace utilisateur AFEDIM.

OK X
Nous contacter

Pour toute demande de renseignements complémentaires, demander à visiter le bien ou tout simplement déposer votre dossier de location...
N'hésitez pas à nous contacter !


Autres annonces à proximité