Louer Détail de l'annonce

Location Appartement 1 pièce de 31m² à 417 EUR/mois à REIMS

LUMINANCE - Appartement - 1 pièce
A propos de ce bien :

417EUR / mois

Charges comprises

  • Appartement
  • 2 RUE DES SOEURS ETIENNE
    51100 REIMS
  • 1 pièce
  • 31,07m²
  • 3ème étage
  • Disponible dès le 01/05/2026
  • DPE : C

Location soumise au respect d'un plafond de ressources/revenus

Calculer le plafond de ressources

Ce bien vous est proposé par notre filiale :

AFEDIM Gestion
Mes notes

Ce bien a attiré votre attention ?

Retrouvez vos notes personnelles en vous connectant à votre espace.

Connexion

Pas encore de compte ? Créez un espace utilisateur AFEDIM.

Description du logement

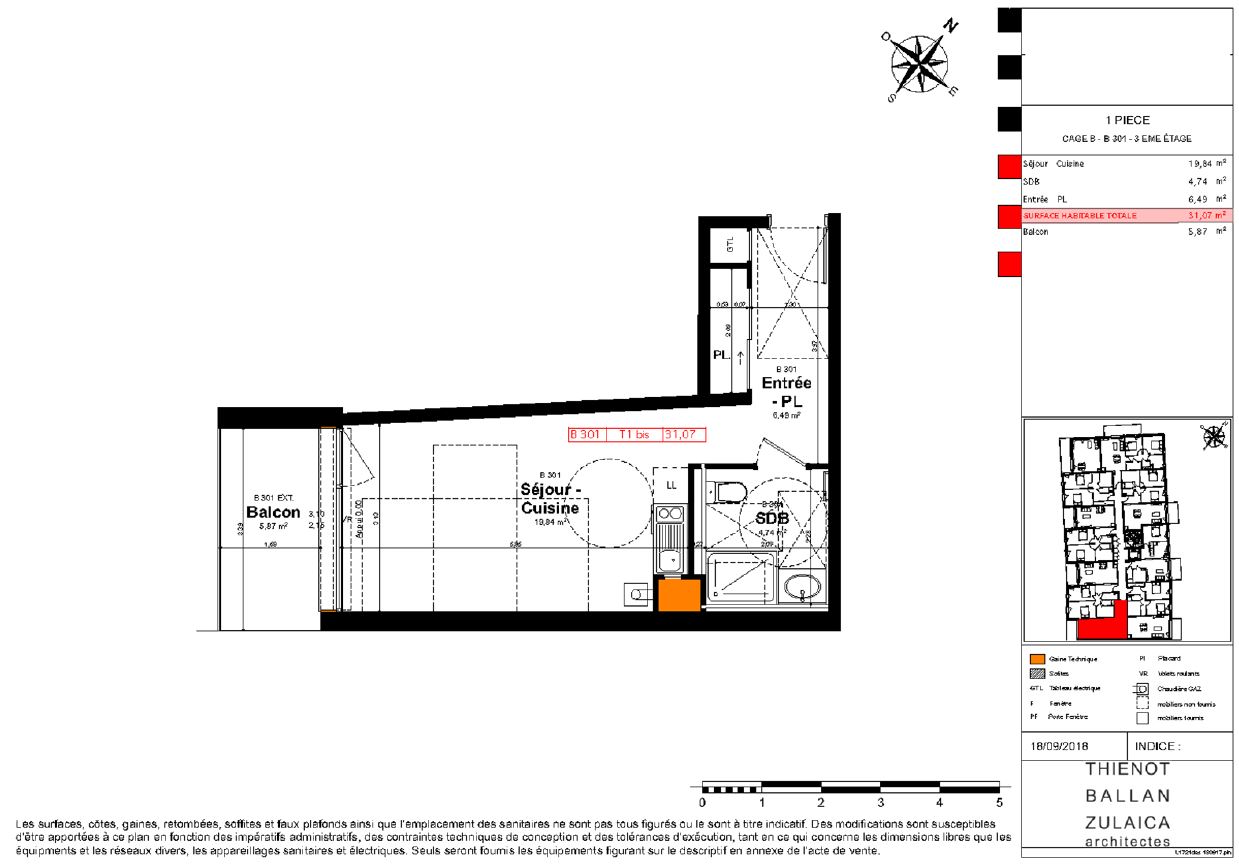
Reims, Résidence LUMINANCE. Nous vous proposons un T1 n°B301 d'une superficie de 31,07m² avec balcon de 5,87m², situé au 3ème étage avec ascenseur, comprenant : une entrée avec placard aménagé donnant sur une pièce de vie de 19,84m avec coin cuisine ainsi qu'une salle d'eau avec douche, meuble vasque et WC. Au sous-sol, un parking n°78. Eau chaude et chauffage individuel à gaz. Entretien parties communes, ascenseur et espaces verts compris dans les provisions sur charges mensuelles et donnant lieu à une régularisation annuelle. Disponible au 30/04/20026 Les honoraires de location 250 EUR TTC (à la charge du locataire) incluent le montant de la rédaction des états des lieux facturé pour 94 EUR TTC, après réalisation lors de l'entrée dans les lieux. Pour plus de détails sur ce logement, vous pouvez consulter la fiche descriptive de ce bien, sur notre site AFEDIM-locations.


Voir le plan du lot


Numéro commercial : B301

Référence du bien : 0047240


Caractéristique(s) de l'immeuble

  • Résidence sécurisée

  • Antenne TV

  • Ascenseur

  • Espaces verts

  • Local à vélo


Caractéristique(s) du logement

  • Surface habitable : 31,07 m²

  • 3ème étage

  • Eau chaude individuelle - Chaudière à gaz

  • Chauffage individuel - Chaudière à gaz

  • Placard(s)


Conditions financières

  • Loyer hors charges : 384 EUR

  • Montant du dépôt de garantie : 384 EUR

  • Provision sur charges : 33 EUR

  • Honoraires TTC à la charge du locataire : 250 EUR

  • Honoraires TTC états des lieux locataire : 94 EUR


Bilan énergétique


Performance du logementGaz à effet de serre

Échelle de performance énergétique s'étalant du niveau A, correspondant à un logement extrêmement performant, au niveau G, correspondant à un logement extrêmement peu performant. Les niveaux F et G sont qualifiés de passoires énergétiques. La consommation (énergie primaire) est de 83 kWh/m².an et est associée à une émission de 15 kg de dioxyde de carbone/m².an (voir détail de l'émission de gaz à effet de serre ci-après), cela correspond à une performance énergétique de niveau C.

Échelle d'émissions des gaz à effet de serre s'étalant du niveau A, correspondant à peu d'émission de CO2, au niveau G, correspondant à des émissions très importantes. Avec une émission de 15 kg de dioxyde de carbone/m²/an, l'émission de gaz à effet de serre est de niveau C.


Date du dernier diagnostic : 02/04/2026
Montant estimé des dépenses annuelles d'énergie pour un usage standard

Les coûts sont estimés en fonction des caractéristiques du logement et pour une utilisation sur 5 usages (chauffage, eau chaude sanitaire, climatisation, éclairage, auxiliaires).


entre 210 EUR et 210 EUR par an


Prix moyens des énergies indexés sur l'année 2026 (abonnement compris)

Etat des risques
Consultez l'état des risques réglementés pour l'information des acquéreurs et des locataires ici
Les informations sur les risques auxquels ce bien est exposé sont disponibles sur le site Géorisques : www.georisques.gouv.fr
Localisation du bien
Vos temps de trajet moyen
  • Ajouter un point d'intérêt personnalisé
 Nature du lieuAdresseDurée du trajet en voitureDurée du trajet en transport en communDurée du trajet en véloDurée du trajet à piedActions    Actions

Ce bien a attiré votre attention ?

Ajoutez vos emplacements préférés pour calculer le temps de trajet depuis ce bien.

Connexion

Pas encore de compte ? Créez un espace utilisateur AFEDIM.

OK X
Nous contacter

Pour toute demande de renseignements complémentaires, demander à visiter le bien ou tout simplement déposer votre dossier de location...
N'hésitez pas à nous contacter !


Autres annonces à proximité