Louer Détail de l'annonce

Location Appartement 2 pièces de 45m² à 571 EUR/mois à POITIERS

JARDIN DE LA CHARLETTERIE - Appartement - 2 pièces
A propos de ce bien :

571EUR / mois

Charges comprises

  • Appartement
  • 1 RUE DE LA CROIX DU BOURDON
    86000 POITIERS
  • 2 pièces
  • 45,35m²
  • 2ème étage
  • Disponible dès le 10/06/2026
  • DPE : D

Ce bien vous est proposé par notre filiale :

AFEDIM Gestion
Mes notes

Ce bien a attiré votre attention ?

Retrouvez vos notes personnelles en vous connectant à votre espace.

Connexion

Pas encore de compte ? Créez un espace utilisateur AFEDIM.

Description du logement

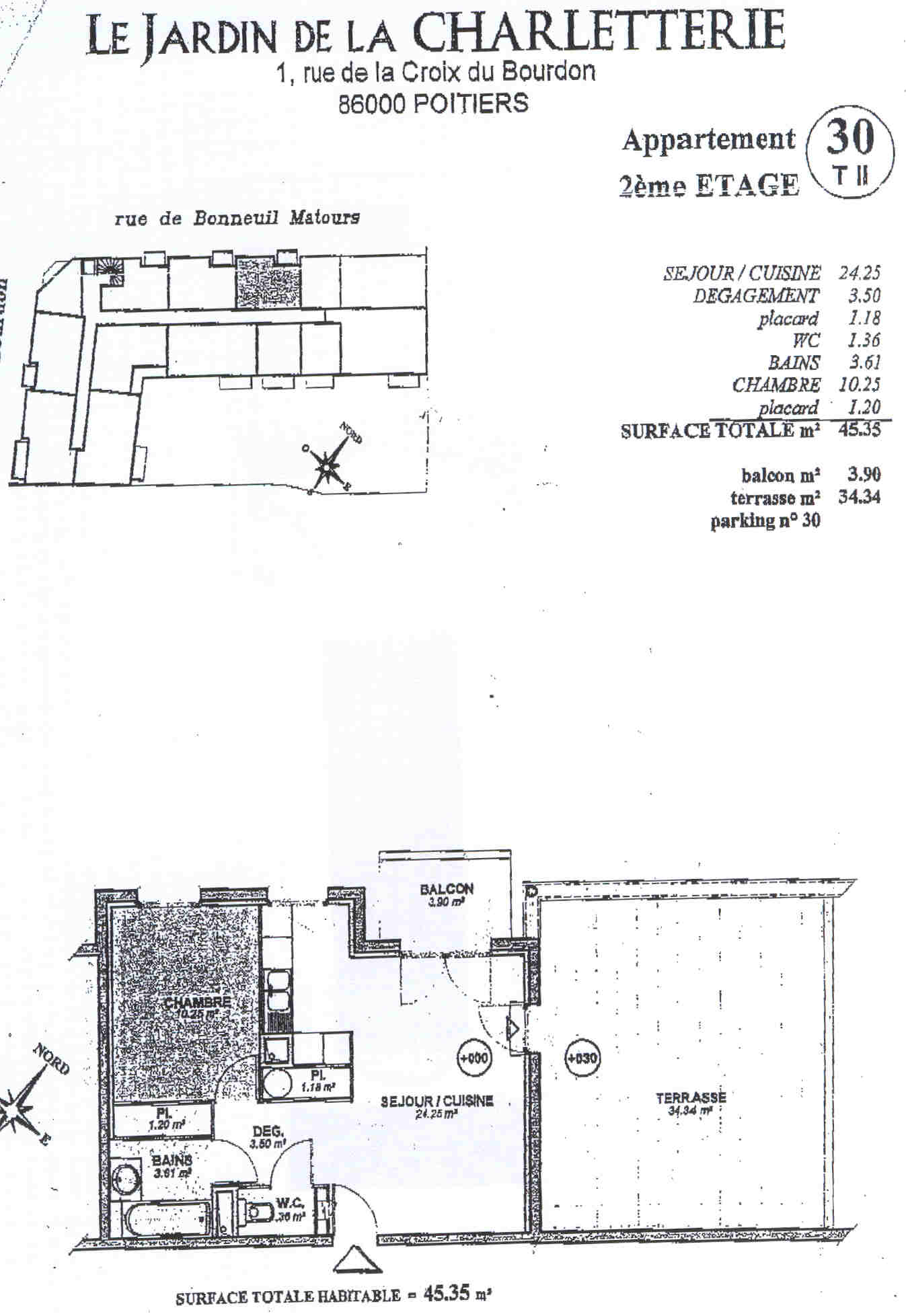
A POITIERS, dans la résidence Les Jardins de la Charletterie, nous vous proposons un appartement T2 (lot 30), au 2ème étage avec ascenseur, d'une surface de 45.35m², comprenant : un séjour/cuisine donnant sur une terrasse d'environ 34m², et un balcon d'environ 3.90m², une chambre avec placard, une salle de bains, et un WC séparé. Un parking en sous-sol n°30 (lot 43) complète le bien. Chauffage et eau chaude individuels électriques. Entretien parties communes et espaces verts compris dans les provisions sur charges mensuelles et donnant lieu à une régularisation annuelle. Les honoraires de location de 502 euros TTC (à la charge du locataire) incluent le montant de rédaction des états des lieux facturé pour 137 euros TTC, après réalisation lors de l'entrée dans les lieux. Plus de détails sur notre site AFEDIM.


Voir le plan du lot


Numéro commercial : 0030

Référence du bien : 0040384


Caractéristique(s) de l'immeuble

  • Antenne TV

  • Ascenseur


Caractéristique(s) du logement

  • Surface habitable : 45,35 m²

  • Terrasse (34,34 m²)

  • Balcon (3,90 m²)

  • 2ème étage

  • Eau chaude individuelle - électrique

  • Chauffage individuel - Electrique

  • Cuisine : Non aménagée et non équipée

  • Placard(s)


Annexes

  • Parking


Conditions financières

  • Loyer hors charges : 501 EUR

  • Montant du dépôt de garantie : 501 EUR

  • Provision sur charges : 70 EUR

  • Honoraires TTC à la charge du locataire : 365 EUR

  • Honoraires TTC états des lieux locataire : 137 EUR


Bilan énergétique


Performance du logementGaz à effet de serre

Échelle de performance énergétique s'étalant du niveau A, correspondant à un logement extrêmement performant, au niveau G, correspondant à un logement extrêmement peu performant. Les niveaux F et G sont qualifiés de passoires énergétiques. La consommation (énergie primaire) est de 234 kWh/m².an et est associée à une émission de 7 kg de dioxyde de carbone/m².an (voir détail de l'émission de gaz à effet de serre ci-après), cela correspond à une performance énergétique de niveau D.

Échelle d'émissions des gaz à effet de serre s'étalant du niveau A, correspondant à peu d'émission de CO2, au niveau G, correspondant à des émissions très importantes. Avec une émission de 7 kg de dioxyde de carbone/m²/an, l'émission de gaz à effet de serre est de niveau B.


Date du dernier diagnostic : 02/02/2023
Montant estimé des dépenses annuelles d'énergie pour un usage standard

Les coûts sont estimés en fonction des caractéristiques du logement et pour une utilisation sur 5 usages (chauffage, eau chaude sanitaire, climatisation, éclairage, auxiliaires).


entre 690 EUR et 970 EUR par an


Prix moyens des énergies indexés sur l'année 2021 (abonnement compris)

Etat des risques
Consultez l'état des risques réglementés pour l'information des acquéreurs et des locataires ici
Les informations sur les risques auxquels ce bien est exposé sont disponibles sur le site Géorisques : www.georisques.gouv.fr
Localisation du bien
Vos temps de trajet moyen
  • Ajouter un point d'intérêt personnalisé
 Nature du lieuAdresseDurée du trajet en voitureDurée du trajet en transport en communDurée du trajet en véloDurée du trajet à piedActions    Actions

Ce bien a attiré votre attention ?

Ajoutez vos emplacements préférés pour calculer le temps de trajet depuis ce bien.

Connexion

Pas encore de compte ? Créez un espace utilisateur AFEDIM.

OK X
Nous contacter

Pour toute demande de renseignements complémentaires, demander à visiter le bien ou tout simplement déposer votre dossier de location...
N'hésitez pas à nous contacter !


Autres annonces à proximité