Louer Détail de l'annonce

Location Appartement 2 pièces de 46m² à 699 EUR/mois à OBERNAI

L'ALCYS - Appartement - 2 pièces
A propos de ce bien :

699EUR / mois

Charges comprises

  • Appartement
  • 1 A RUE DES BONNES GENS
    67210 OBERNAI
  • 2 pièces
  • 45,85m²
  • 1er étage
  • Disponibilité immédiate
  • DPE : C

Location soumise au respect d'un plafond de ressources/revenus

Calculer le plafond de ressources

Ce bien vous est proposé par notre filiale :

AFEDIM Gestion
Mes notes

Ce bien a attiré votre attention ?

Retrouvez vos notes personnelles en vous connectant à votre espace.

Connexion

Pas encore de compte ? Créez un espace utilisateur AFEDIM.

Description du logement

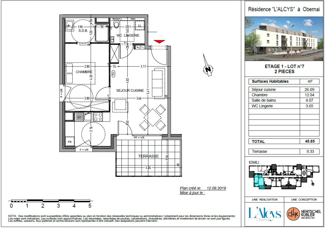
A deux pas du centre-ville d'OBERNAI, à 25 minutes de Strasbourg, proche transports, commerces et commodités, dans la résidence L'ALCYS, nous vous proposons un T2 (n°A007) de 45.85m² au premier étage avec ascenseur. Il comprend une pièce de vie de 26.09m² avec cuisine ouverte ainsi qu'une terrasse de 9.33m², une salle de bain de 4.07m² avec WC séparé, une chambre de 12.04m², mais également un emplacement de stationnement n°114 en sous-sol et une cave n°204 au RDC. Eau chaude et chauffage collectif au gaz. Entretien parties communes compris dans les provisions sur charges mensuelles et donnant lieu à une régularisation annuelle. Les honoraires de location 503 EUR TTC (à la charge du locataire) incluent le montant de la rédaction des états des lieux facturé pour 137 EUR TTC, après réalisation lors de l'entrée dans les lieux. Pour plus de détails sur ce logement, vous pouvez consulter la fiche descriptive de ce bien, sur notre site internet AFEDIM. Disponibilité immédiate.


Voir le plan du lot


Numéro commercial : A007

Référence du bien : 0050421


Caractéristique(s) de l'immeuble

  • Résidence sécurisée

  • Antenne TV

  • Ascenseur

  • Espaces verts

  • Local à vélo


Caractéristique(s) du logement

  • Surface habitable : 45,85 m²

  • Terrasse (9,33 m²)

  • 1er étage

  • Eau chaude collective - Chaudière à gaz

  • Chauffage collectif - Chaudière à gaz

  • Orientation : Sud

  • Placard(s)


Annexes

  • Parking


Conditions financières

  • Loyer hors charges : 599 EUR

  • Montant du dépôt de garantie : 599 EUR

  • Provision sur charges : 100 EUR

  • Honoraires TTC à la charge du locataire : 370 EUR

  • Honoraires TTC états des lieux locataire : 138 EUR


Bilan énergétique


Performance du logementGaz à effet de serre

Échelle de performance énergétique s'étalant du niveau A, correspondant à un logement extrêmement performant, au niveau G, correspondant à un logement extrêmement peu performant. Les niveaux F et G sont qualifiés de passoires énergétiques. La consommation (énergie primaire) est de 80 kWh/m².an et est associée à une émission de 16 kg de dioxyde de carbone/m².an (voir détail de l'émission de gaz à effet de serre ci-après), cela correspond à une performance énergétique de niveau C.

Échelle d'émissions des gaz à effet de serre s'étalant du niveau A, correspondant à peu d'émission de CO2, au niveau G, correspondant à des émissions très importantes. Avec une émission de 16 kg de dioxyde de carbone/m²/an, l'émission de gaz à effet de serre est de niveau C.


Date du dernier diagnostic : 02/11/2021
Montant estimé des dépenses annuelles d'énergie pour un usage standard

Les coûts sont estimés en fonction des caractéristiques du logement et pour une utilisation sur 5 usages (chauffage, eau chaude sanitaire, climatisation, éclairage, auxiliaires).


entre 355 EUR et 481 EUR par an


Prix moyens des énergies indexés sur l'année 2021 (abonnement compris)

Etat des risques
Consultez l'état des risques réglementés pour l'information des acquéreurs et des locataires ici
Les informations sur les risques auxquels ce bien est exposé sont disponibles sur le site Géorisques : www.georisques.gouv.fr
Localisation du bien
Vos temps de trajet moyen
  • Ajouter un point d'intérêt personnalisé
 Nature du lieuAdresseDurée du trajet en voitureDurée du trajet en transport en communDurée du trajet en véloDurée du trajet à piedActions    Actions

Ce bien a attiré votre attention ?

Ajoutez vos emplacements préférés pour calculer le temps de trajet depuis ce bien.

Connexion

Pas encore de compte ? Créez un espace utilisateur AFEDIM.

OK X
Nous contacter

Pour toute demande de renseignements complémentaires, demander à visiter le bien ou tout simplement déposer votre dossier de location...
N'hésitez pas à nous contacter !