Louer Détail de l'annonce

Location Appartement 1 pièce de 32m² à 485 EUR/mois à NANCY

ATTRAKT TRANCHE 2 - FG.143800 - Appartement - 1 pièce
A propos de ce bien :

485,04EUR / mois

Charges comprises

  • Appartement
  • 7BIS RUE GEORGES DE LA TOUR
    54000 NANCY
  • 1 pièce
  • 31,72m²
  • 4ème étage
  • Disponibilité immédiate
  • DPE : C

Location soumise au respect d'un plafond de ressources/revenus

Calculer le plafond de ressources

Ce bien vous est proposé par notre filiale :

AFEDIM Gestion
Mes notes

Ce bien a attiré votre attention ?

Retrouvez vos notes personnelles en vous connectant à votre espace.

Connexion

Pas encore de compte ? Créez un espace utilisateur AFEDIM.

Description du logement

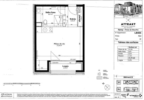
NANCY, Résidence ATTRAKT TRANCHE 2 bâtiment A, nous vous proposons un appartement T1 (n°LB404), d'une superficie de 31,72 m² situé au 4e étage avec ascenseur. Il se compose d'une entrée avec placard, d'une cuisine équipée ouverte sur le séjour de 21,04 m² donnant sur une loggia de 2,70 m² orienté Sud-Ouest et d'une salle d'eau avec WC. Chauffage collectif urbain, eau chaude et eau froide collectives. Espaces verts commun, ascenseur et entretien parties communes, compris dans les provisions sur charges mensuelles et donnant lieu à une régularisation annuelle. Les honoraires de location à la charge du locataire incluent le montant de rédaction du bail et des états des lieux facturé pour 95 euros TTC, après réalisation lors de l'entrée dans les lieux. Pour plus de détails sur ce logement, vous pouvez consulter la fiche descriptive de ce bien, sur notre site internet Afedim


Voir le plan du lot


Numéro commercial : LB404

Référence du bien : 0056422


Caractéristique(s) de l'immeuble

  • Ascenseur


Caractéristique(s) du logement

  • Surface habitable : 31,72 m²

  • 4ème étage

  • Eau chaude collective

  • Chauffage collectif - Urbain

  • Cuisine : Aménagée et équipée

  • Orientation : Sud-Ouest

  • Placard(s)


Conditions financières

  • Loyer hors charges : 425,04 EUR

  • Montant du dépôt de garantie : 425,04 EUR

  • Provision sur charges : 60 EUR

  • Honoraires TTC à la charge du locataire : 255 EUR

  • Honoraires TTC états des lieux locataire : 96 EUR


Bilan énergétique


Performance du logementGaz à effet de serre

Échelle de performance énergétique s'étalant du niveau A, correspondant à un logement extrêmement performant, au niveau G, correspondant à un logement extrêmement peu performant. Les niveaux F et G sont qualifiés de passoires énergétiques. La consommation (énergie primaire) est de 87 kWh/m².an et est associée à une émission de 17 kg de dioxyde de carbone/m².an (voir détail de l'émission de gaz à effet de serre ci-après), cela correspond à une performance énergétique de niveau C.

Échelle d'émissions des gaz à effet de serre s'étalant du niveau A, correspondant à peu d'émission de CO2, au niveau G, correspondant à des émissions très importantes. Avec une émission de 17 kg de dioxyde de carbone/m²/an, l'émission de gaz à effet de serre est de niveau C.


Date du dernier diagnostic : 29/09/2021
Montant estimé des dépenses annuelles d'énergie pour un usage standard

Les coûts sont estimés en fonction des caractéristiques du logement et pour une utilisation sur 5 usages (chauffage, eau chaude sanitaire, climatisation, éclairage, auxiliaires).


entre 214 EUR et 290 EUR par an


Prix moyens des énergies indexés sur l'année 2021 (abonnement compris)

Etat des risques
Consultez l'état des risques réglementés pour l'information des acquéreurs et des locataires ici
Les informations sur les risques auxquels ce bien est exposé sont disponibles sur le site Géorisques : www.georisques.gouv.fr
Localisation du bien
Vos temps de trajet moyen
  • Ajouter un point d'intérêt personnalisé
 Nature du lieuAdresseDurée du trajet en voitureDurée du trajet en transport en communDurée du trajet en véloDurée du trajet à piedActions    Actions

Ce bien a attiré votre attention ?

Ajoutez vos emplacements préférés pour calculer le temps de trajet depuis ce bien.

Connexion

Pas encore de compte ? Créez un espace utilisateur AFEDIM.

OK X
Nous contacter

Pour toute demande de renseignements complémentaires, demander à visiter le bien ou tout simplement déposer votre dossier de location...
N'hésitez pas à nous contacter !


Autres annonces à proximité