Louer Détail de l'annonce

Location Appartement 1 pièce de 33m² à 454 EUR/mois à METZ

MANUFACTURE - Appartement - 1 pièce
A propos de ce bien :

454EUR / mois

Charges comprises

  • Appartement
  • 4 PLACE DU BASTION ST VINCENT
    57000 METZ
  • 1 pièce
  • 32,75m²
  • 5ème étage
  • Disponible dès le 01/06/2026
  • DPE : B

Location soumise au respect d'un plafond de ressources/revenus

Calculer le plafond de ressources

Ce bien vous est proposé par notre filiale :

AFEDIM Gestion
Mes notes

Ce bien a attiré votre attention ?

Retrouvez vos notes personnelles en vous connectant à votre espace.

Connexion

Pas encore de compte ? Créez un espace utilisateur AFEDIM.

Description du logement

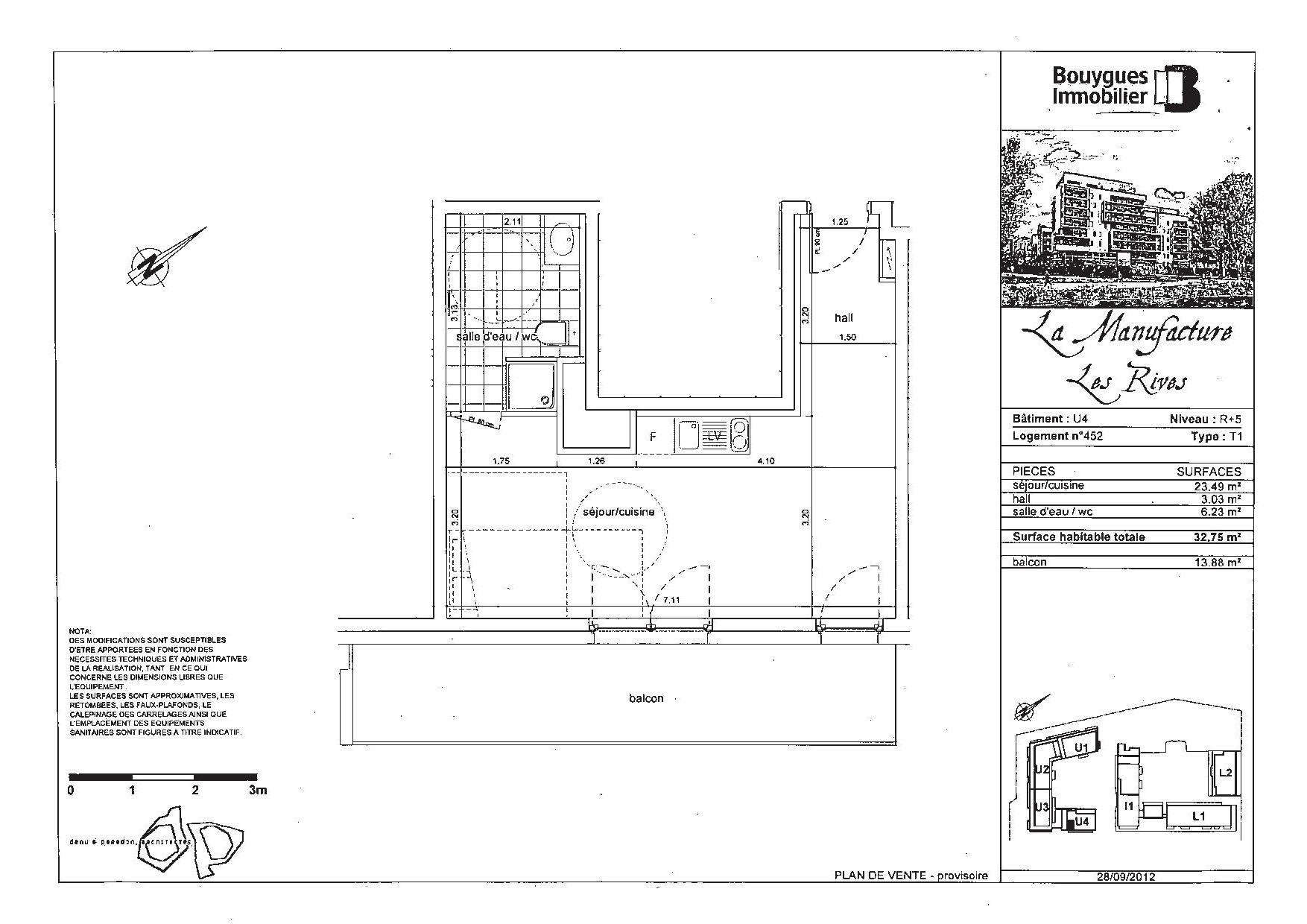
A Metz, au coeur du centre-ville, dans le quartier Belle-Isle, dans la résidence MANUFACTURE - LES RIVES, nous vous proposons un appartement T1 (lot 452) de 32.75m² au 5ème étage avec ascenseur du bâtiment U4. Il comprend une entrée, un séjour donnant sur un vaste balcon de 13.88m², une kitchenette équipée , une salle d'eau avec WC. Au sous-sol, un parking n°589. Eau chaude et chauffage individuel urbain (contrat à souscrire à l'UEM). Eau froide, entretien parties communes, entretien ascenseur et espaces verts communs, compris dans les provisions sur charges mensuelles et donnant lieu à une régularisation annuelle. Les honoraires de location TTC (à la charge du locataire) incluent le montant de rédaction des états des lieux facturé pour 99 euros TTC, après réalisation lors de l'entrée dans les lieux. Pour plus de détails sur ce logement, vous pouvez consulter la fiche descriptive de ce bien, sur notre site AFEDIM.


Voir le plan du lot


Numéro commercial : 452

Référence du bien : 0030622


Caractéristique(s) de l'immeuble

  • Antenne TV

  • Ascenseur


Caractéristique(s) du logement

  • Surface habitable : 32,75 m²

  • Balcon (13,00 m²)

  • 5ème étage

  • Cuisine : Kitchenette

  • Orientation : Sud-Est

  • Placard(s)


Annexes

  • Parking


Conditions financières

  • Loyer hors charges : 389 EUR

  • Montant du dépôt de garantie : 389 EUR

  • Provision sur charges : 65 EUR

  • Honoraires TTC à la charge du locataire : 264 EUR

  • Honoraires TTC états des lieux locataire : 99 EUR


Bilan énergétique


Performance du logementGaz à effet de serre

Échelle de performance énergétique s'étalant du niveau A, correspondant à un logement extrêmement performant, au niveau G, correspondant à un logement extrêmement peu performant. Les niveaux F et G sont qualifiés de passoires énergétiques. La consommation (énergie primaire) est de 97 kWh/m².an et est associée à une émission de 8 kg de dioxyde de carbone/m².an (voir détail de l'émission de gaz à effet de serre ci-après), cela correspond à une performance énergétique de niveau B.

Échelle d'émissions des gaz à effet de serre s'étalant du niveau A, correspondant à peu d'émission de CO2, au niveau G, correspondant à des émissions très importantes. Avec une émission de 8 kg de dioxyde de carbone/m²/an, l'émission de gaz à effet de serre est de niveau B.


Date du dernier diagnostic : 01/02/2023
Montant estimé des dépenses annuelles d'énergie pour un usage standard

Les coûts sont estimés en fonction des caractéristiques du logement et pour une utilisation sur 5 usages (chauffage, eau chaude sanitaire, climatisation, éclairage, auxiliaires).


entre 210 EUR et 330 EUR par an


Prix moyens des énergies indexés sur l'année 2021 (abonnement compris)

Etat des risques
Consultez l'état des risques réglementés pour l'information des acquéreurs et des locataires ici
Les informations sur les risques auxquels ce bien est exposé sont disponibles sur le site Géorisques : www.georisques.gouv.fr
Localisation du bien
Vos temps de trajet moyen
  • Ajouter un point d'intérêt personnalisé
 Nature du lieuAdresseDurée du trajet en voitureDurée du trajet en transport en communDurée du trajet en véloDurée du trajet à piedActions    Actions

Ce bien a attiré votre attention ?

Ajoutez vos emplacements préférés pour calculer le temps de trajet depuis ce bien.

Connexion

Pas encore de compte ? Créez un espace utilisateur AFEDIM.

OK X
Nous contacter

Pour toute demande de renseignements complémentaires, demander à visiter le bien ou tout simplement déposer votre dossier de location...
N'hésitez pas à nous contacter !


Autres annonces à proximité