Louer Détail de l'annonce

Location Appartement 3 pièces de 59m² à 906 EUR/mois à MELUN

TERRES DU CIEL - Appartement - 3 pièces
A propos de ce bien :

906,08EUR / mois

Charges comprises

  • Appartement
  • 37 RUE CAMILLE FLAMMARION BAT B - 1er - APPT 212
    77000 MELUN
  • 3 pièces
  • 59,04m²
  • 1er étage
  • Disponibilité immédiate
  • DPE : C

Location soumise au respect d'un plafond de ressources/revenus

Calculer le plafond de ressources

Ce bien vous est proposé par notre filiale :

AFEDIM Gestion
Mes notes

Ce bien a attiré votre attention ?

Retrouvez vos notes personnelles en vous connectant à votre espace.

Connexion

Pas encore de compte ? Créez un espace utilisateur AFEDIM.

Description du logement

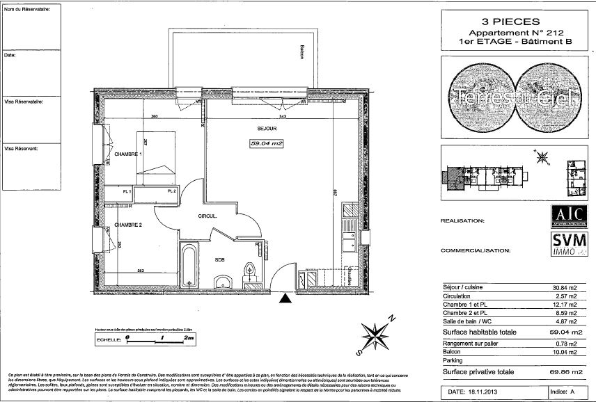
A MELUN, dans la résidence Terres Du Ciel, nous vous proposons un appartement T3 n°212 (lot 18) de 59.04m², au premier étage du bâtiment B, comprenant un séjour de 30.84m² avec coin cuisine aménagée et équipée (plaques, four, hotte) donnant sur balcon de 10.04m², deux chambres avec placard, une salle d'eau avec WC. A l'extérieur un parking n°12 (lot 36). Eau chaude et chauffage individuels gaz. Eau froide, entretien des parties communes compris dans les provisions sur charges mensuelles et donnant lieu à une régularisation annuelle. Les honoraires de location TTC (à la charge du locataire) incluent le montant de rédaction des états des lieux facturé pour 177 euros TTC, après réalisation lors de l'entrée dans les lieux. Disponible immédiatement. Pour plus de détails sur ce logement, vous pouvez consulter la fiche descriptive de ce bien, sur votre site internet AFEDIM.


Voir le plan du lot


Numéro commercial : 212

Référence du bien : 0045929


Caractéristique(s) du logement

  • Surface habitable : 59,04 m²

  • Balcon (10,04 m²)

  • 1er étage

  • Eau chaude individuelle - Chaudière à gaz

  • Chauffage individuel - Chaudière à gaz

  • Cuisine : Non aménagée et non équipée

  • Orientation : Ouest

  • Placard(s)


Annexes

  • Parking


Conditions financières

  • Loyer hors charges : 802,08 EUR

  • Montant du dépôt de garantie : 802,08 EUR

  • Provision sur charges : 104 EUR

  • Honoraires TTC à la charge du locataire : 595 EUR

  • Honoraires TTC états des lieux locataire : 178 EUR


Bilan énergétique


Performance du logementGaz à effet de serre

Échelle de performance énergétique s'étalant du niveau A, correspondant à un logement extrêmement performant, au niveau G, correspondant à un logement extrêmement peu performant. Les niveaux F et G sont qualifiés de passoires énergétiques. La consommation (énergie primaire) est de 122 kWh/m².an et est associée à une émission de 24 kg de dioxyde de carbone/m².an (voir détail de l'émission de gaz à effet de serre ci-après), cela correspond à une performance énergétique de niveau C.

Échelle d'émissions des gaz à effet de serre s'étalant du niveau A, correspondant à peu d'émission de CO2, au niveau G, correspondant à des émissions très importantes. Avec une émission de 24 kg de dioxyde de carbone/m²/an, l'émission de gaz à effet de serre est de niveau C.


Date du dernier diagnostic : 23/10/2023
Montant estimé des dépenses annuelles d'énergie pour un usage standard

Les coûts sont estimés en fonction des caractéristiques du logement et pour une utilisation sur 5 usages (chauffage, eau chaude sanitaire, climatisation, éclairage, auxiliaires).


entre 630 EUR et 900 EUR par an


Prix moyens des énergies indexés sur l'année 2021 (abonnement compris)

Etat des risques
Consultez l'état des risques réglementés pour l'information des acquéreurs et des locataires ici
Les informations sur les risques auxquels ce bien est exposé sont disponibles sur le site Géorisques : www.georisques.gouv.fr
Localisation du bien
Vos temps de trajet moyen
  • Ajouter un point d'intérêt personnalisé
 Nature du lieuAdresseDurée du trajet en voitureDurée du trajet en transport en communDurée du trajet en véloDurée du trajet à piedActions    Actions

Ce bien a attiré votre attention ?

Ajoutez vos emplacements préférés pour calculer le temps de trajet depuis ce bien.

Connexion

Pas encore de compte ? Créez un espace utilisateur AFEDIM.

OK X
Nous contacter

Pour toute demande de renseignements complémentaires, demander à visiter le bien ou tout simplement déposer votre dossier de location...
N'hésitez pas à nous contacter !