Louer Détail de l'annonce

Location Appartement 2 pièces de 43m² à 582 EUR/mois à LYS LEZ LANNOY

CLOS AMARANTE - Appartement - 2 pièces
A propos de ce bien :

582,3EUR / mois

Charges comprises

  • Appartement
  • 28 RUE DU VERT PRE
    59390 LYS LEZ LANNOY
  • 2 pièces
  • 43,15m²
  • 2ème étage
  • Disponibilité immédiate
  • DPE : C

Location soumise au respect d'un plafond de ressources/revenus

Calculer le plafond de ressources

Ce bien vous est proposé par notre filiale :

AFEDIM Gestion
Mes notes

Ce bien a attiré votre attention ?

Retrouvez vos notes personnelles en vous connectant à votre espace.

Connexion

Pas encore de compte ? Créez un espace utilisateur AFEDIM.

Description du logement

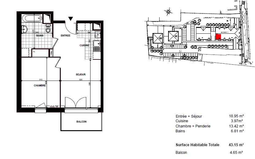
Lys-Lèz-Lannoy allie les attraits de la campagne aux besoins de la ville et vous offre un cadre de vie agréable avec de nombreux services de proximité. Dans la résidence LE CLOS AMARANTE vous est proposé un appartement (n°1203) dans la bâtiment 1 de type 2 de 43.15 m² au 2ème étage. Il comprend : une entrée, une cuisine ouverte sur séjour, donnant sur un balcon de 4,65 m², une chambre de 13.42 m², une salle de bains avec wc. Places de parking n°32 + 50 au rez-de-chaussée. Chauffage et eau chaude par chaudière individuelle gaz à condensation. Eau froide, entretien parties communes, entretien ascenseur et espaces verts communs, compris dans les provisions sur charges mensuelles et donnant lieu à une régularisation annuelle. Les honoraires de location, (à la charge du locataire) incluent le montant de rédaction du bail et des états des lieux facturé pour 130 euros TTC, après réalisation lors de l'entrée dans les lieux. Pour plus de détails sur vous pouvez consulter la fiche du bien, sur notre site AFEDIM.


Voir le plan du lot


Numéro commercial : A203

Référence du bien : 0025949


Caractéristique(s) de l'immeuble

  • Espaces verts


Caractéristique(s) du logement

  • Surface habitable : 43,15 m²

  • Balcon (4,65 m²)

  • 2ème étage

  • Eau chaude individuelle - Chaudière à gaz

  • Chauffage individuel - Chaudière à gaz

  • Cuisine : Aménagée et équipée

  • Placard(s)


Annexes

  • Parking


Conditions financières

  • Loyer hors charges : 513,3 EUR

  • Montant du dépôt de garantie : 513,3 EUR

  • Provision sur charges : 69 EUR

  • Honoraires TTC à la charge du locataire : 435 EUR

  • Honoraires TTC états des lieux locataire : 130 EUR


Bilan énergétique


Performance du logementGaz à effet de serre

Échelle de performance énergétique s'étalant du niveau A, correspondant à un logement extrêmement performant, au niveau G, correspondant à un logement extrêmement peu performant. Les niveaux F et G sont qualifiés de passoires énergétiques. La consommation (énergie primaire) est de 107 kWh/m².an et est associée à une émission de 21 kg de dioxyde de carbone/m².an (voir détail de l'émission de gaz à effet de serre ci-après), cela correspond à une performance énergétique de niveau C.

Échelle d'émissions des gaz à effet de serre s'étalant du niveau A, correspondant à peu d'émission de CO2, au niveau G, correspondant à des émissions très importantes. Avec une émission de 21 kg de dioxyde de carbone/m²/an, l'émission de gaz à effet de serre est de niveau C.


Date du dernier diagnostic : 17/02/2026
Montant estimé des dépenses annuelles d'énergie pour un usage standard

Les coûts sont estimés en fonction des caractéristiques du logement et pour une utilisation sur 5 usages (chauffage, eau chaude sanitaire, climatisation, éclairage, auxiliaires).


entre 472 EUR et 472 EUR par an


Prix moyens des énergies indexés sur les années 2021, 2022 et 2023 (abonnements compris)

Etat des risques
Consultez l'état des risques réglementés pour l'information des acquéreurs et des locataires ici
Les informations sur les risques auxquels ce bien est exposé sont disponibles sur le site Géorisques : www.georisques.gouv.fr
Localisation du bien
Vos temps de trajet moyen
  • Ajouter un point d'intérêt personnalisé
 Nature du lieuAdresseDurée du trajet en voitureDurée du trajet en transport en communDurée du trajet en véloDurée du trajet à piedActions    Actions

Ce bien a attiré votre attention ?

Ajoutez vos emplacements préférés pour calculer le temps de trajet depuis ce bien.

Connexion

Pas encore de compte ? Créez un espace utilisateur AFEDIM.

OK X
Nous contacter

Pour toute demande de renseignements complémentaires, demander à visiter le bien ou tout simplement déposer votre dossier de location...
N'hésitez pas à nous contacter !


Autres annonces à proximité