Louer Détail de l'annonce

Location Appartement 1 pièce de 33m² à 512 EUR/mois à LOOS

ILOT PASTEUR - Appartement - 1 pièce
A propos de ce bien :

512EUR / mois

Charges comprises

  • Appartement
  • 138 CHEMIN DES POSTES BAT A - 3ème - APPT A305
    59120 LOOS
  • 1 pièce
  • 33,43m²
  • 3ème étage
  • Disponibilité immédiate
  • DPE : C

Location soumise au respect d'un plafond de ressources/revenus

Calculer le plafond de ressources

Ce bien vous est proposé par notre filiale :

AFEDIM Gestion
Mes notes

Ce bien a attiré votre attention ?

Retrouvez vos notes personnelles en vous connectant à votre espace.

Connexion

Pas encore de compte ? Créez un espace utilisateur AFEDIM.

Description du logement

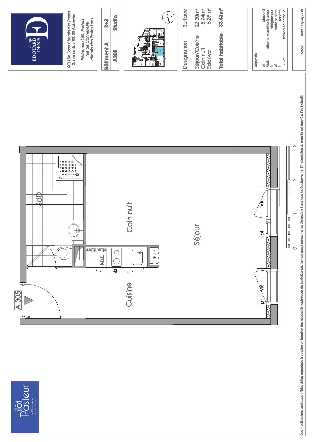
LOOS, dans la résidence ILOT PASTEUR vous est proposé un appartement T1 n°A305 de 33.43 m² situé au 3ème étage avec ascenseur du bâtiment A. L'appartement se compose d'un séjour de 22.30m² avec espace cuisine, d'un coin nuit de 5.74m² et d'une salle d'eau avec WC. A disposition, un parking au rez-de-chaussée du bâtiment B n°B05. Chauffage et eau chaude individuel gaz. Entretien parties communes, entretien ascenseur et espaces verts communs, compris dans les provisions sur charges mensuelles et donnant lieu à une régularisation annuelle. Les honoraires de location TTC (à la charge du locataire) incluent le montant de rédaction des états des lieux facturé pour 100 euros TTC, après réalisation lors de l'entrée dans les lieux. Disponible le 27/11/2025. Pour plus de détails sur ce logement, vous pouvez consulter la fiche descriptive de ce bien, sur votre site internet AFEDIM


Voir le plan du lot


Numéro commercial : A305

Référence du bien : 0045155


Caractéristique(s) de l'immeuble

  • Antenne TV

  • Ascenseur


Caractéristique(s) du logement

  • Surface habitable : 33,43 m²

  • 3ème étage

  • Eau chaude individuelle - Chaudière à gaz

  • Chauffage individuel - Chaudière à gaz

  • Cuisine : Non aménagée et non équipée

  • Orientation : Ouest

  • Placard(s)


Annexes

  • Parking


Zone soumise à encadrement des loyers

  • Loyer de référence majoré : 601,74 EUR
    (Loyer de base à ne pas dépasser)

  • Loyer de base : 425,9 EUR
    (Loyer de référence)


Conditions financières

  • Loyer hors charges : 451 EUR

  • Montant du dépôt de garantie : 451 EUR

  • Provision sur charges : 61 EUR

  • Honoraires TTC à la charge du locataire : 334 EUR

  • Honoraires TTC états des lieux locataire : 100 EUR


Bilan énergétique


Performance du logementGaz à effet de serre

Échelle de performance énergétique s'étalant du niveau A, correspondant à un logement extrêmement performant, au niveau G, correspondant à un logement extrêmement peu performant. Les niveaux F et G sont qualifiés de passoires énergétiques. La consommation (énergie primaire) est de 106 kWh/m².an et est associée à une émission de 19 kg de dioxyde de carbone/m².an (voir détail de l'émission de gaz à effet de serre ci-après), cela correspond à une performance énergétique de niveau C.

Échelle d'émissions des gaz à effet de serre s'étalant du niveau A, correspondant à peu d'émission de CO2, au niveau G, correspondant à des émissions très importantes. Avec une émission de 19 kg de dioxyde de carbone/m²/an, l'émission de gaz à effet de serre est de niveau C.


Date du dernier diagnostic : 05/04/2024
Montant estimé des dépenses annuelles d'énergie pour un usage standard

Les coûts sont estimés en fonction des caractéristiques du logement et pour une utilisation sur 5 usages (chauffage, eau chaude sanitaire, climatisation, éclairage, auxiliaires).


entre 346 EUR et 468 EUR par an


Prix moyens des énergies indexés sur l'année 2021 (abonnement compris)

Etat des risques
Consultez l'état des risques réglementés pour l'information des acquéreurs et des locataires ici
Les informations sur les risques auxquels ce bien est exposé sont disponibles sur le site Géorisques : www.georisques.gouv.fr
Localisation du bien
Vos temps de trajet moyen
  • Ajouter un point d'intérêt personnalisé
 Nature du lieuAdresseDurée du trajet en voitureDurée du trajet en transport en communDurée du trajet en véloDurée du trajet à piedActions    Actions

Ce bien a attiré votre attention ?

Ajoutez vos emplacements préférés pour calculer le temps de trajet depuis ce bien.

Connexion

Pas encore de compte ? Créez un espace utilisateur AFEDIM.

OK X
Nous contacter

Pour toute demande de renseignements complémentaires, demander à visiter le bien ou tout simplement déposer votre dossier de location...
N'hésitez pas à nous contacter !


Autres annonces à proximité