Louer Détail de l'annonce

Location Appartement 2 pièces de 41m² à 467 EUR/mois à LENS

LUMINESENS PHASE 2 - Appartement - 2 pièces
A propos de ce bien :

467,24EUR / mois

Charges comprises

  • Appartement
  • 15 RUE RAYMOND LECUPPRE
    62300 LENS
  • 2 pièces
  • 41,2m²
  • 3ème étage
  • Disponible dès le 22/04/2026
  • DPE : C

Location soumise au respect d'un plafond de ressources/revenus

Calculer le plafond de ressources

Ce bien vous est proposé par notre filiale :

AFEDIM Gestion
Mes notes

Ce bien a attiré votre attention ?

Retrouvez vos notes personnelles en vous connectant à votre espace.

Connexion

Pas encore de compte ? Créez un espace utilisateur AFEDIM.

Description du logement

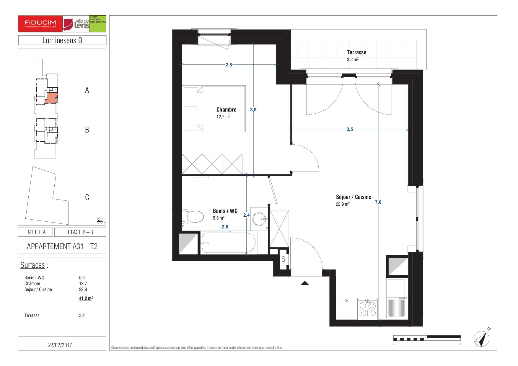
Lens, Dans la Résidence LUMINESENS, vous est proposé un appartement (n°A31) de type 2 de 41.20m² au 3ème étage avec ascenseur du bâtiment B. Il est composé d'une pièce de vie avec cuisine équipée (four, hotte, meuble haut et bas, évier inox et plaque vitrocéramique) donnant sur une terrasse de 3.20m², une chambre, salle de bain avec WC. Stationnement extérieur. Eau chaude collective et chauffage individuel. Entretien parties communes, entretien ascenseur et espaces verts communs, compris dans les provisions sur charges mensuelles et donnant lieu à une régularisation annuelle. Les honoraires de location TTC (à la charge du locataire) incluent le montant de rédaction des états des lieux facturé pour 124euros TTC, après réalisation lors de l'entrée dans les lieux. Disponible le 21/04/2026. Pour plus de détails sur ce logement, vous pouvez consulter la fiche descriptive de ce bien, sur votre site internet AFEDIM.


Voir le plan du lot


Numéro commercial : A31

Référence du bien : 0035228


Caractéristique(s) de l'immeuble

  • Ascenseur


Caractéristique(s) du logement

  • Surface habitable : 41,2 m²

  • 3ème étage

  • Eau chaude collective

  • Chauffage individuel - Electrique

  • Cuisine : Non aménagée et non équipée

  • Orientation : Nord-Ouest

  • Placard(s)


Conditions financières

  • Loyer hors charges : 407,24 EUR

  • Montant du dépôt de garantie : 407,24 EUR

  • Provision sur charges : 60 EUR

  • Honoraires TTC à la charge du locataire : 332 EUR

  • Honoraires TTC états des lieux locataire : 124 EUR


Bilan énergétique


Performance du logementGaz à effet de serre

Échelle de performance énergétique s'étalant du niveau A, correspondant à un logement extrêmement performant, au niveau G, correspondant à un logement extrêmement peu performant. Les niveaux F et G sont qualifiés de passoires énergétiques. La consommation (énergie primaire) est de 147 kWh/m².an et est associée à une émission de 5 kg de dioxyde de carbone/m².an (voir détail de l'émission de gaz à effet de serre ci-après), cela correspond à une performance énergétique de niveau C.

Échelle d'émissions des gaz à effet de serre s'étalant du niveau A, correspondant à peu d'émission de CO2, au niveau G, correspondant à des émissions très importantes. Avec une émission de 5 kg de dioxyde de carbone/m²/an, l'émission de gaz à effet de serre est de niveau A.


Date du dernier diagnostic : 26/02/2026
Montant estimé des dépenses annuelles d'énergie pour un usage standard

Les coûts sont estimés en fonction des caractéristiques du logement et pour une utilisation sur 5 usages (chauffage, eau chaude sanitaire, climatisation, éclairage, auxiliaires).


entre 374 EUR et 374 EUR par an


Prix moyens des énergies indexés sur les années 2021, 2022 et 2023 (abonnements compris)

Etat des risques
Consultez l'état des risques réglementés pour l'information des acquéreurs et des locataires ici
Les informations sur les risques auxquels ce bien est exposé sont disponibles sur le site Géorisques : www.georisques.gouv.fr
Localisation du bien
Vos temps de trajet moyen
  • Ajouter un point d'intérêt personnalisé
 Nature du lieuAdresseDurée du trajet en voitureDurée du trajet en transport en communDurée du trajet en véloDurée du trajet à piedActions    Actions

Ce bien a attiré votre attention ?

Ajoutez vos emplacements préférés pour calculer le temps de trajet depuis ce bien.

Connexion

Pas encore de compte ? Créez un espace utilisateur AFEDIM.

OK X
Nous contacter

Pour toute demande de renseignements complémentaires, demander à visiter le bien ou tout simplement déposer votre dossier de location...
N'hésitez pas à nous contacter !


Autres annonces à proximité