Louer Détail de l'annonce

Location Appartement 3 pièces de 62m² à 779 EUR/mois à LE COUDRAY

VILLA MOZART - Appartement - 3 pièces
A propos de ce bien :

779EUR / mois

Charges comprises

  • Appartement
  • 9 RUE FRANCOISE DOLTO
    28630 LE COUDRAY
  • 3 pièces
  • 62,39m²
  • Rez-de-chaussée
  • Disponibilité immédiate
  • DPE : C

Location soumise au respect d'un plafond de ressources/revenus

Calculer le plafond de ressources

Ce bien vous est proposé par notre filiale :

AFEDIM Gestion
Mes notes

Ce bien a attiré votre attention ?

Retrouvez vos notes personnelles en vous connectant à votre espace.

Connexion

Pas encore de compte ? Créez un espace utilisateur AFEDIM.

Description du logement

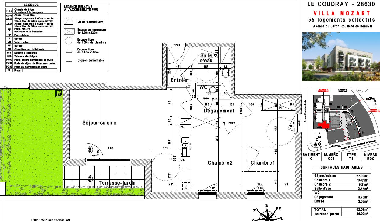
Le COUDRAY fait partie de l'agglomération de CHARTRES. La résidence Villa MOZART est située à proximité de tous les commerces et établissements scolaires. A quelques minutes seulement du centre-ville. Nous vous proposons un appartement T3 n°C05, au rez-de-chaussée (avec ascenseur) de 62.39m². Il se compose d'un séjour avec cuisine ouverte de 27.90m²m² donnant sur une terrasse de 26.02m², d'une salle d'eau avec WC et de deux chambres de 14 m² et 9.21m² . Une place de parking n°48 est également à disposition. Le chauffage et l'eau chaude (gaz) sont individuels. Eau froide, entretien parties communes, ascenseur et espaces verts communs, compris dans les provisions sur charges mensuelles et donnant lieu à une régularisation annuelle. Les honoraires de location TTC (à la charge du locataire) incluent le montant de rédaction des états des lieux facturé pour 187 euros TTC, après réalisation lors de l'entrée dans les lieux. Plus de détails sur notre site AFEDIM.fr.


Voir le plan du lot


Numéro commercial : C05

Référence du bien : 0047387


Caractéristique(s) de l'immeuble

  • Ascenseur


Caractéristique(s) du logement

  • Surface habitable : 62,39 m²

  • Terrasse (26,00 m²)

  • Rez-de-chaussée

  • Eau chaude individuelle - Chaudière à gaz

  • Chauffage individuel - Chaudière à gaz

  • Cuisine : Non aménagée et non équipée


Annexes

  • Parking


Conditions financières

  • Loyer hors charges : 646 EUR

  • Montant du dépôt de garantie : 646 EUR

  • Provision sur charges : 133 EUR

  • Honoraires TTC à la charge du locataire : 503 EUR

  • Honoraires TTC états des lieux locataire : 189 EUR


Bilan énergétique


Performance du logementGaz à effet de serre

Échelle de performance énergétique s'étalant du niveau A, correspondant à un logement extrêmement performant, au niveau G, correspondant à un logement extrêmement peu performant. Les niveaux F et G sont qualifiés de passoires énergétiques. La consommation (énergie primaire) est de 91 kWh/m².an et est associée à une émission de 17 kg de dioxyde de carbone/m².an (voir détail de l'émission de gaz à effet de serre ci-après), cela correspond à une performance énergétique de niveau C.

Échelle d'émissions des gaz à effet de serre s'étalant du niveau A, correspondant à peu d'émission de CO2, au niveau G, correspondant à des émissions très importantes. Avec une émission de 17 kg de dioxyde de carbone/m²/an, l'émission de gaz à effet de serre est de niveau C.


Date du dernier diagnostic : 16/12/2025
Montant estimé des dépenses annuelles d'énergie pour un usage standard

Les coûts sont estimés en fonction des caractéristiques du logement et pour une utilisation sur 5 usages (chauffage, eau chaude sanitaire, climatisation, éclairage, auxiliaires).


entre 404 EUR et 404 EUR par an


Prix moyens des énergies indexés sur les années 2021, 2022 et 2023 (abonnements compris)

Etat des risques
Consultez l'état des risques réglementés pour l'information des acquéreurs et des locataires ici
Les informations sur les risques auxquels ce bien est exposé sont disponibles sur le site Géorisques : www.georisques.gouv.fr
Localisation du bien
Vos temps de trajet moyen
  • Ajouter un point d'intérêt personnalisé
 Nature du lieuAdresseDurée du trajet en voitureDurée du trajet en transport en communDurée du trajet en véloDurée du trajet à piedActions    Actions

Ce bien a attiré votre attention ?

Ajoutez vos emplacements préférés pour calculer le temps de trajet depuis ce bien.

Connexion

Pas encore de compte ? Créez un espace utilisateur AFEDIM.

OK X
Nous contacter

Pour toute demande de renseignements complémentaires, demander à visiter le bien ou tout simplement déposer votre dossier de location...
N'hésitez pas à nous contacter !


Autres annonces à proximité