Louer Détail de l'annonce

Location Appartement 2 pièces de 42m² à 684 EUR/mois à LAMPERTHEIM

PARC DE LAMPER 2 - 005 IMMEUBL - Appartement - 2 pièces
A propos de ce bien :

684EUR / mois

Charges comprises

  • Appartement
  • 2 RUE DES LOBELIES BAT H - APPT H23 - 2ND
    67450 LAMPERTHEIM
  • 2 pièces
  • 42m²
  • 2ème étage
  • Disponible dès le 17/04/2026
  • DPE : C

Location soumise au respect d'un plafond de ressources/revenus

Calculer le plafond de ressources

Ce bien vous est proposé par notre filiale :

AFEDIM Gestion
Mes notes

Ce bien a attiré votre attention ?

Retrouvez vos notes personnelles en vous connectant à votre espace.

Connexion

Pas encore de compte ? Créez un espace utilisateur AFEDIM.

Description du logement

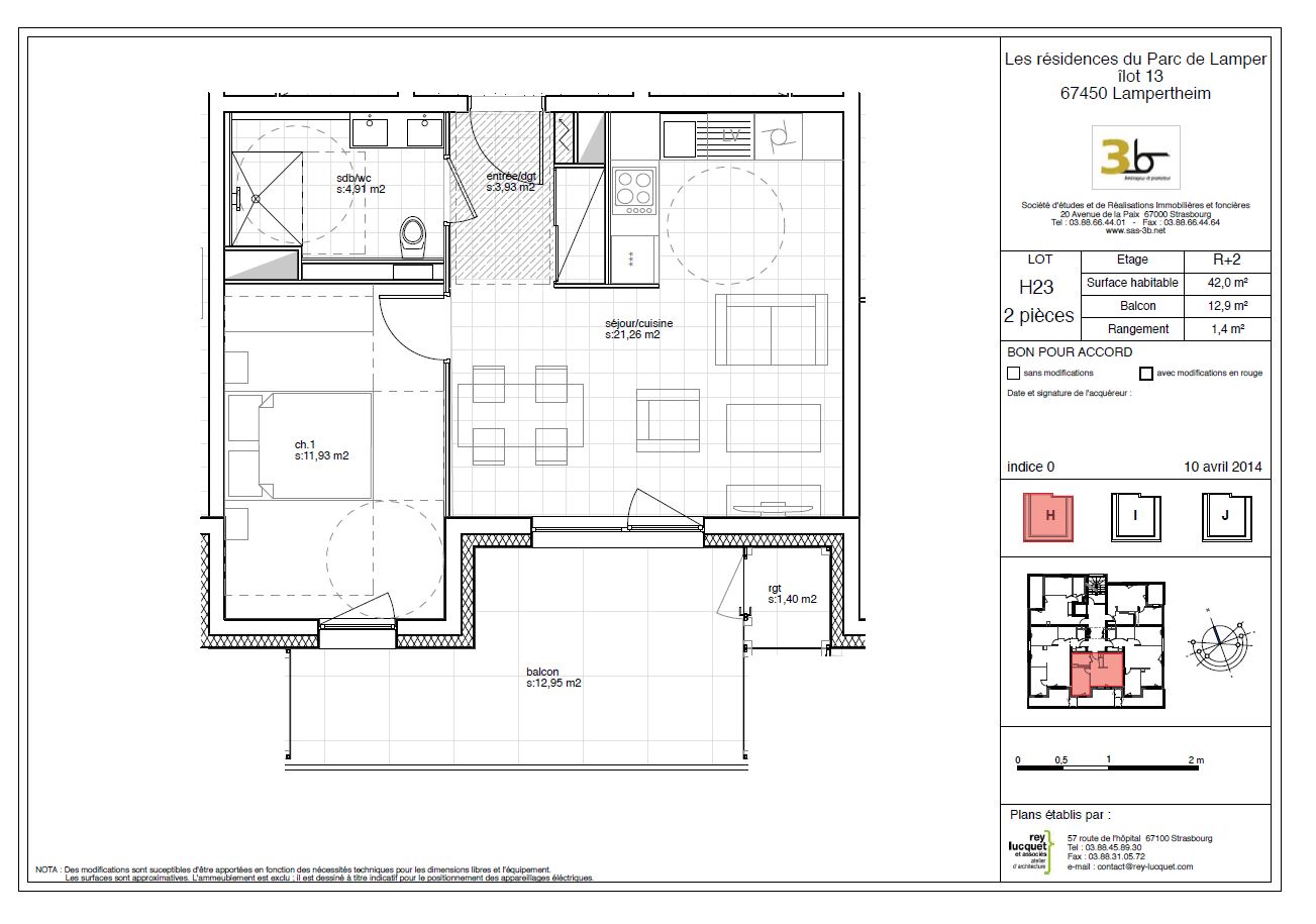
LAMPERTHEIM - Dans la communauté urbaine de Strasbourg, proche de toute commodité, nous vous proposons un appartement T2 n° H23 (lot 112), de 42 m² dans la résidence PARC DE LAMPER. Situé au 2ème étage du batiment H, il se compos d'une entrée, d'un séjour avec cuisine donnant sur balcon de 12.9 m², d'une chambre de 11.93 m² et d'une salle d'eau avec W.C. Parking en sous-sol n°8 (lot 408). Eau chaude et chauffage collectifs au gaz. Entretien parties communes, ascenseur et espaces verts communs, compris dans les provisions sur charges mensuelles et donnant lieu à une régularisation annuelle. Les honoraires de location TTC (à la charge du locataire) incluent le montant de rédaction des états des lieux facturé pour 127,00 euros TTC, après réalisation lors de l'entrée dans les lieux. Pour plus de détails sur ce logement, vous pouvez consulter la fiche descriptive de ce bien, sur notre site internet Afedim.


Voir le plan du lot


Numéro commercial : H23

Référence du bien : 0028177


Caractéristique(s) de l'immeuble

  • Antenne TV


Caractéristique(s) du logement

  • Surface habitable : 42 m²

  • Balcon (12,90 m²)

  • 2ème étage

  • Eau chaude collective - Chaudière à gaz

  • Chauffage collectif - Chaudière à gaz

  • Placard(s)


Annexes

  • Parking


Conditions financières

  • Loyer hors charges : 571 EUR

  • Montant du dépôt de garantie : 571 EUR

  • Provision sur charges : 113 EUR

  • Honoraires TTC à la charge du locataire : 423 EUR

  • Honoraires TTC états des lieux locataire : 127 EUR


Bilan énergétique


Performance du logementGaz à effet de serre

Échelle de performance énergétique s'étalant du niveau A, correspondant à un logement extrêmement performant, au niveau G, correspondant à un logement extrêmement peu performant. Les niveaux F et G sont qualifiés de passoires énergétiques. La consommation (énergie primaire) est de 71 kWh/m².an et est associée à une émission de 12 kg de dioxyde de carbone/m².an (voir détail de l'émission de gaz à effet de serre ci-après), cela correspond à une performance énergétique de niveau C.

Échelle d'émissions des gaz à effet de serre s'étalant du niveau A, correspondant à peu d'émission de CO2, au niveau G, correspondant à des émissions très importantes. Avec une émission de 12 kg de dioxyde de carbone/m²/an, l'émission de gaz à effet de serre est de niveau C.


Date du dernier diagnostic : 09/03/2023
Montant estimé des dépenses annuelles d'énergie pour un usage standard

Les coûts sont estimés en fonction des caractéristiques du logement et pour une utilisation sur 5 usages (chauffage, eau chaude sanitaire, climatisation, éclairage, auxiliaires).


entre 210 EUR et 284 EUR par an


Prix moyens des énergies indexés sur l'année 2021 (abonnement compris)

Etat des risques
Consultez l'état des risques réglementés pour l'information des acquéreurs et des locataires ici
Les informations sur les risques auxquels ce bien est exposé sont disponibles sur le site Géorisques : www.georisques.gouv.fr
Localisation du bien
Vos temps de trajet moyen
  • Ajouter un point d'intérêt personnalisé
 Nature du lieuAdresseDurée du trajet en voitureDurée du trajet en transport en communDurée du trajet en véloDurée du trajet à piedActions    Actions

Ce bien a attiré votre attention ?

Ajoutez vos emplacements préférés pour calculer le temps de trajet depuis ce bien.

Connexion

Pas encore de compte ? Créez un espace utilisateur AFEDIM.

OK X
Nous contacter

Pour toute demande de renseignements complémentaires, demander à visiter le bien ou tout simplement déposer votre dossier de location...
N'hésitez pas à nous contacter !


Autres annonces à proximité