Louer Détail de l'annonce

Location Appartement 1 pièce de 30m² à 460 EUR/mois à CLERMONT FERRAND

FABRIKS DE MAI - Appartement - 1 pièce
A propos de ce bien :

460EUR / mois

Charges comprises

  • Appartement
  • 45 RUE DU CLOS FOUR
    63000 CLERMONT FERRAND
  • 1 pièce
  • 30,14m²
  • 5ème étage
  • Disponibilité immédiate
  • DPE : A

Location soumise au respect d'un plafond de ressources/revenus

Calculer le plafond de ressources

Ce bien vous est proposé par notre filiale :

AFEDIM Gestion
Mes notes

Ce bien a attiré votre attention ?

Retrouvez vos notes personnelles en vous connectant à votre espace.

Connexion

Pas encore de compte ? Créez un espace utilisateur AFEDIM.

Description du logement

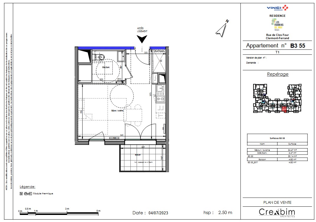
A CLERMONT FERRAND, dans la résidence neuve FABRIKS DE MAI, nous vous proposons un charmant T1 N°B355 de 30.14m² sis au 5e étage avec ascenseur. Il se compose, d'une entrée avec placard, une pièce de vie de 24.67m² avec cuisine aménagée et équipée ouverte sur séjour et donnant sur un balcon de 4.82m² et une salle de bains avec WC. Chauffage, eau chaude et eau froide collectif. Entretien des parties communes et espaces verts communs, compris dans les provisions sur charges mensuelles et donnant lieu à une régularisation annuelle. Honoraires de location (à la charge du locataire) et le montant de rédaction des états des lieux facturé pour 90 EUR TTC, après réalisation lors de l'entrée dans les lieux. Plus de détails sur ce logement sur notre site internet AFEDIM. Disponible immédiatement.


Voir le plan du lot


Numéro commercial : B355

Référence du bien : 0070981


Caractéristique(s) de l'immeuble

  • Résidence sécurisée

  • Antenne TV

  • Ascenseur

  • Espaces verts

  • Local à vélo


Caractéristique(s) du logement

  • Surface habitable : 30,14 m²

  • 5ème étage

  • Eau chaude collective

  • Chauffage collectif - Urbain

  • Orientation : Sud

  • Placard(s)


Conditions financières

  • Loyer hors charges : 385 EUR

  • Montant du dépôt de garantie : 385 EUR

  • Provision sur charges : 75 EUR

  • Honoraires TTC à la charge du locataire : 243 EUR

  • Honoraires TTC états des lieux locataire : 91 EUR


Bilan énergétique


Performance du logementGaz à effet de serre

Échelle de performance énergétique s'étalant du niveau A, correspondant à un logement extrêmement performant, au niveau G, correspondant à un logement extrêmement peu performant. Les niveaux F et G sont qualifiés de passoires énergétiques. La consommation (énergie primaire) est de 70 kWh/m².an et est associée à une émission de 1 kg de dioxyde de carbone/m².an (voir détail de l'émission de gaz à effet de serre ci-après), cela correspond à une performance énergétique de niveau A.

Échelle d'émissions des gaz à effet de serre s'étalant du niveau A, correspondant à peu d'émission de CO2, au niveau G, correspondant à des émissions très importantes. Avec une émission de 1 kg de dioxyde de carbone/m²/an, l'émission de gaz à effet de serre est de niveau A.


Date du dernier diagnostic : 03/11/2025
Montant estimé des dépenses annuelles d'énergie pour un usage standard

Les coûts sont estimés en fonction des caractéristiques du logement et pour une utilisation sur 5 usages (chauffage, eau chaude sanitaire, climatisation, éclairage, auxiliaires).


entre 174 EUR et 236 EUR par an


Prix moyens des énergies indexés sur l'année 2021 (abonnement compris)

Etat des risques
Consultez l'état des risques réglementés pour l'information des acquéreurs et des locataires ici
Les informations sur les risques auxquels ce bien est exposé sont disponibles sur le site Géorisques : www.georisques.gouv.fr
Localisation du bien
Vos temps de trajet moyen
  • Ajouter un point d'intérêt personnalisé
 Nature du lieuAdresseDurée du trajet en voitureDurée du trajet en transport en communDurée du trajet en véloDurée du trajet à piedActions    Actions

Ce bien a attiré votre attention ?

Ajoutez vos emplacements préférés pour calculer le temps de trajet depuis ce bien.

Connexion

Pas encore de compte ? Créez un espace utilisateur AFEDIM.

OK X
Nous contacter

Pour toute demande de renseignements complémentaires, demander à visiter le bien ou tout simplement déposer votre dossier de location...
N'hésitez pas à nous contacter !


Autres annonces à proximité