Louer Détail de l'annonce

Location Appartement 2 pièces de 39m² à 642 EUR/mois à CLERMONT FERRAND

HOTEL DIEU - LES PAVILLONS - Appartement - 2 pièces
A propos de ce bien :

642EUR / mois

Charges comprises

  • Appartement
  • 24 AVENUE VERCINGETORIX
    63000 CLERMONT FERRAND
  • 2 pièces
  • 38,5m²
  • 6ème étage
  • Disponible dès le 10/06/2026
  • DPE : B

Location soumise au respect d'un plafond de ressources/revenus

Calculer le plafond de ressources

Ce bien vous est proposé par notre filiale :

AFEDIM Gestion
Mes notes

Ce bien a attiré votre attention ?

Retrouvez vos notes personnelles en vous connectant à votre espace.

Connexion

Pas encore de compte ? Créez un espace utilisateur AFEDIM.

Description du logement

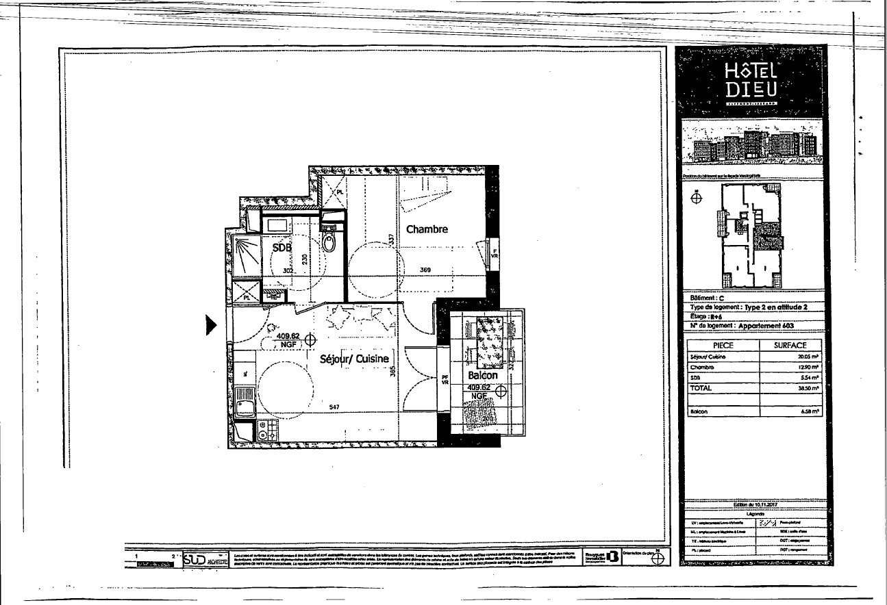
A CLERMONT FERRAND, dans la résidence HOTEL DIEU - LES PAVILLONS, un appartement T2 n°02C603 de 38.50m² avec un balcon de 6.58m², situé au 2ème étage. Il comprend une entrée, un séjour-cuisine de 20.05, une chambre de 12.90m², une salle de bains et un WC séparé. A l'extérieur, un garage n°2029 est à disposition. Eau chaude et chauffage collectif chaudière à bois. Eau froide, entretien parties communes et espaces verts communs, compris dans les provisions sur charges mensuelles et donnant lieu à une régularisation annuelle. Les honoraires de location TTC (à la charge du locataire) incluent le montant de rédaction des états des lieux facturé pour 116 euros TTC, après réalisation lors de l'entrée dans les lieux. Disponibilité au 10/06/2026. Pour plus de détails sur ce logement, vous pouvez consulter la fiche descriptive de ce bien, sur notre site internet AFEDIM.fr


Voir le plan du lot


Numéro commercial : C603

Référence du bien : 0038654


Caractéristique(s) de l'immeuble

  • Ascenseur

  • Espaces verts

  • Local à vélo


Caractéristique(s) du logement

  • Surface habitable : 38,5 m²

  • 6ème étage

  • Eau chaude collective

  • Chauffage collectif - Bois

  • Placard(s)


Annexes

  • Garage


Conditions financières

  • Loyer hors charges : 507 EUR

  • Montant du dépôt de garantie : 507 EUR

  • Provision sur charges : 135 EUR

  • Honoraires TTC à la charge du locataire : 310 EUR

  • Honoraires TTC états des lieux locataire : 116 EUR


Bilan énergétique


Performance du logementGaz à effet de serre

Échelle de performance énergétique s'étalant du niveau A, correspondant à un logement extrêmement performant, au niveau G, correspondant à un logement extrêmement peu performant. Les niveaux F et G sont qualifiés de passoires énergétiques. La consommation (énergie primaire) est de 102 kWh/m².an et est associée à une émission de 3 kg de dioxyde de carbone/m².an (voir détail de l'émission de gaz à effet de serre ci-après), cela correspond à une performance énergétique de niveau B.

Échelle d'émissions des gaz à effet de serre s'étalant du niveau A, correspondant à peu d'émission de CO2, au niveau G, correspondant à des émissions très importantes. Avec une émission de 3 kg de dioxyde de carbone/m²/an, l'émission de gaz à effet de serre est de niveau A.


Date du dernier diagnostic : 23/04/2026
Montant estimé des dépenses annuelles d'énergie pour un usage standard

Les coûts sont estimés en fonction des caractéristiques du logement et pour une utilisation sur 5 usages (chauffage, eau chaude sanitaire, climatisation, éclairage, auxiliaires).


entre 149 EUR et 149 EUR par an


Prix moyens des énergies indexés sur les années 2015 et 2022 (abonnements compris)

Etat des risques
Consultez l'état des risques réglementés pour l'information des acquéreurs et des locataires ici
Les informations sur les risques auxquels ce bien est exposé sont disponibles sur le site Géorisques : www.georisques.gouv.fr
Localisation du bien
Vos temps de trajet moyen
  • Ajouter un point d'intérêt personnalisé
 Nature du lieuAdresseDurée du trajet en voitureDurée du trajet en transport en communDurée du trajet en véloDurée du trajet à piedActions    Actions

Ce bien a attiré votre attention ?

Ajoutez vos emplacements préférés pour calculer le temps de trajet depuis ce bien.

Connexion

Pas encore de compte ? Créez un espace utilisateur AFEDIM.

OK X
Nous contacter

Pour toute demande de renseignements complémentaires, demander à visiter le bien ou tout simplement déposer votre dossier de location...
N'hésitez pas à nous contacter !


Autres annonces à proximité