Louer Détail de l'annonce

Location Appartement 2 pièces de 46m² à 547 EUR/mois à CHAMALIERES

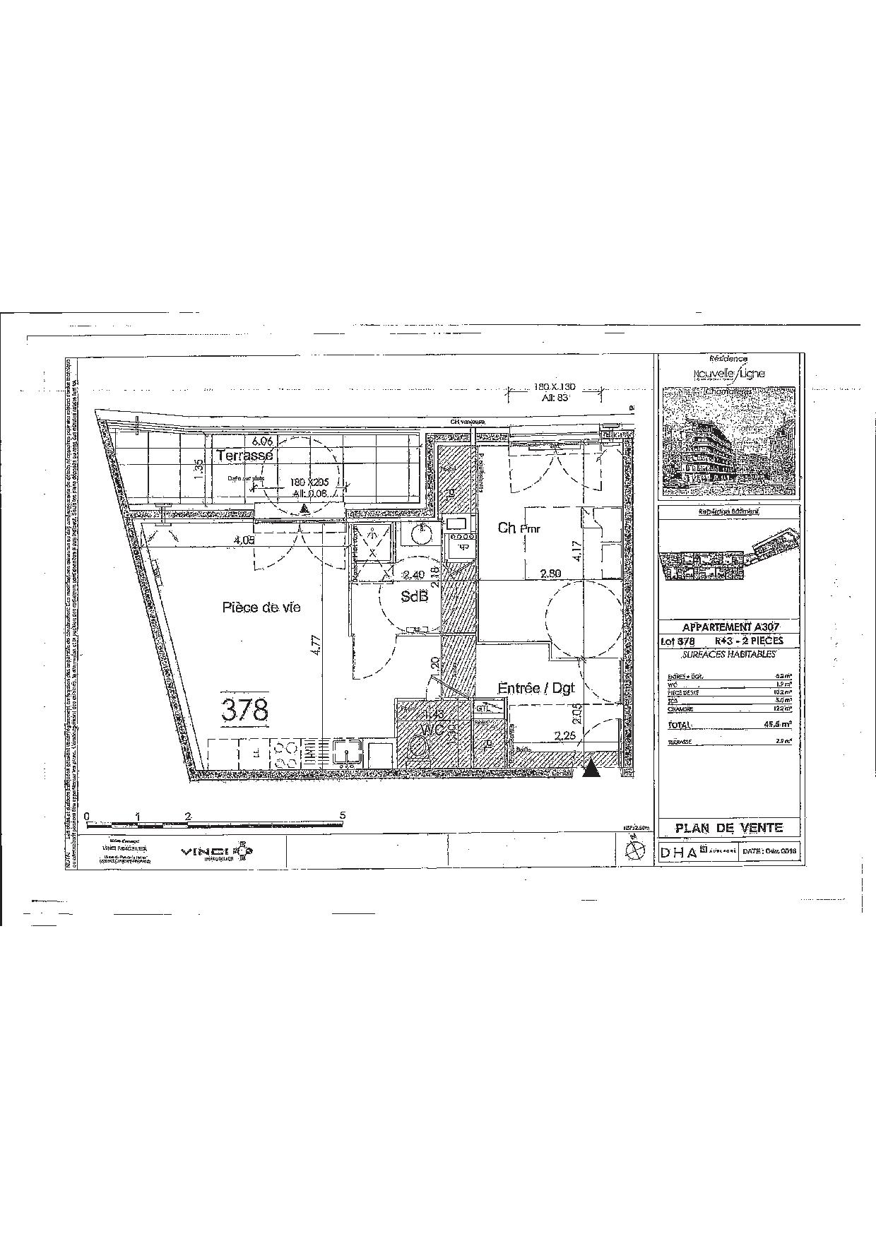
NOUVELLE LIGNE - Appartement - 2 pièces
A propos de ce bien :

547EUR / mois

Charges comprises

  • Appartement
  • 36 AVENUE PASTEUR
    63400 CHAMALIERES
  • 2 pièces
  • 45,5m²
  • 3ème étage
  • Disponible dès le 15/05/2026
  • DPE : C

Location soumise au respect d'un plafond de ressources/revenus

Calculer le plafond de ressources

Ce bien vous est proposé par notre filiale :

AFEDIM Gestion
Mes notes

Ce bien a attiré votre attention ?

Retrouvez vos notes personnelles en vous connectant à votre espace.

Connexion

Pas encore de compte ? Créez un espace utilisateur AFEDIM.

Description du logement

A Chamalières, à 8 mn à pied de la place de Jaude et quelques minutes du centre historique de Clermont-Ferrand, dans la Résidence Nouvelle Ligne, nous vous proposons un appartement T2 n°A307 de 45.50m², situé au 3ème étage du bâtiment A avec ascenseur, comprenant une entrée avec placard, un séjour/cuisine (meubles hauts et bas, hotte) donnant sur une terrasse de 7.90m², une chambre avec placard, une salle d'eau et un WC séparé. Au sous-sol du bâtiment C un garage n°G04. Chauffage et eau chaude individuels gaz. L'entretien des parties communes, des ascenseurs et des espaces verts sont compris dans les provisions sur charges mensuelles et donnant lieu à une régularisation annuelle. Les honoraires de location 504.00 euros TTC (à la charge de locataire) incluent le montant de rédaction des états des lieux facturé pour 137.00 euros TTC, après réalisation lors de l'entrée dans les lieux. Pour plus d'informations, nous vous invitons à consulter la fiche descriptive sur notre site AFEDIM.


Voir le plan du lot


Numéro commercial : A307

Référence du bien : 0037311


Caractéristique(s) du logement

  • Surface habitable : 45,5 m²

  • Terrasse (7,00 m²)

  • 3ème étage

  • Eau chaude individuelle - Chaudière à gaz

  • Chauffage individuel - Chaudière à gaz

  • Cuisine : Aménagée

  • Placard(s)


Annexes

  • Garage


Conditions financières

  • Loyer hors charges : 496 EUR

  • Montant du dépôt de garantie : 496 EUR

  • Provision sur charges : 51 EUR

  • Honoraires TTC à la charge du locataire : 367 EUR

  • Honoraires TTC états des lieux locataire : 137 EUR


Bilan énergétique


Performance du logementGaz à effet de serre

Échelle de performance énergétique s'étalant du niveau A, correspondant à un logement extrêmement performant, au niveau G, correspondant à un logement extrêmement peu performant. Les niveaux F et G sont qualifiés de passoires énergétiques. La consommation (énergie primaire) est de 107 kWh/m².an et est associée à une émission de 20 kg de dioxyde de carbone/m².an (voir détail de l'émission de gaz à effet de serre ci-après), cela correspond à une performance énergétique de niveau C.

Échelle d'émissions des gaz à effet de serre s'étalant du niveau A, correspondant à peu d'émission de CO2, au niveau G, correspondant à des émissions très importantes. Avec une émission de 20 kg de dioxyde de carbone/m²/an, l'émission de gaz à effet de serre est de niveau C.


Date du dernier diagnostic : 04/12/2024
Montant estimé des dépenses annuelles d'énergie pour un usage standard

Les coûts sont estimés en fonction des caractéristiques du logement et pour une utilisation sur 5 usages (chauffage, eau chaude sanitaire, climatisation, éclairage, auxiliaires).


entre 550 EUR et 780 EUR par an


Prix moyens des énergies indexés sur l'année 2021 (abonnement compris)

Etat des risques
Consultez l'état des risques réglementés pour l'information des acquéreurs et des locataires ici
Les informations sur les risques auxquels ce bien est exposé sont disponibles sur le site Géorisques : www.georisques.gouv.fr
Localisation du bien
Vos temps de trajet moyen
  • Ajouter un point d'intérêt personnalisé
 Nature du lieuAdresseDurée du trajet en voitureDurée du trajet en transport en communDurée du trajet en véloDurée du trajet à piedActions    Actions

Ce bien a attiré votre attention ?

Ajoutez vos emplacements préférés pour calculer le temps de trajet depuis ce bien.

Connexion

Pas encore de compte ? Créez un espace utilisateur AFEDIM.

OK X
Nous contacter

Pour toute demande de renseignements complémentaires, demander à visiter le bien ou tout simplement déposer votre dossier de location...
N'hésitez pas à nous contacter !


Autres annonces à proximité