Mon espace personnel
{0}{1}
728EUR / mois
Charges comprises
Location soumise au respect d'un plafond de ressources/revenus
Ce bien vous est proposé par notre filiale :
Partager l'annonce : Facebook X Whatsapp Mail Imprimer
Retrouvez vos notes personnelles en vous connectant à votre espace.
Pas encore de compte ? Créez un espace utilisateur AFEDIM.
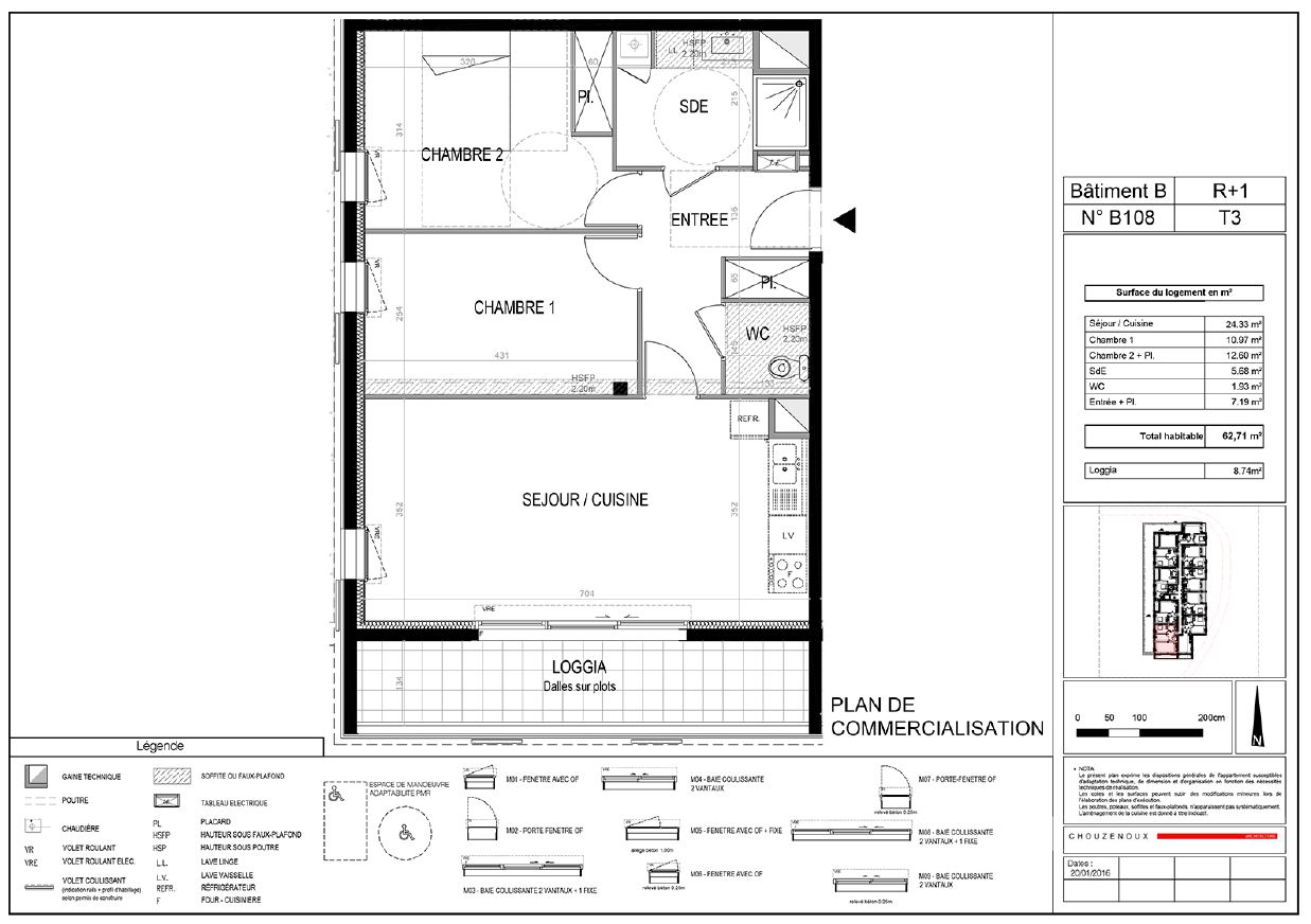
CESSON SEVIGNE - la résidence LEGANCY bénéficie d'un emplacement recherché, offrant un accès facile et rapide au bourg de Cesson-Sévigné, au centre de Rennes et aux zones d'activités commerciales. C'est ici, à proximité des commerces et écoles, que nous vous proposons un appartement T3 (n°B108), situé au 1er étage, d'une superficie de 62.71 m². Il se compose d'une entrée avec placard, une salle d'eau, deux chambres avec placard, un wc, un séjour avec cuisine donnant sur une loggia de 8.74 m². En sous-sol, deux places de parking n°141 et 142. Chauffage et eau chaude individuels gaz. Eau froide, entretien des parties communes, ascenseur et espaces verts communs, compris dans les provisions sur charges mensuelles et donnant lieu à une régularisation annuelle.Les honoraires de location sont facturés directement au locataire par le partenaire pour 632 EUR TTC. Quant aux honoraires de rédaction des états des lieux, ils sont facturés par AFEDIM Gestion pour 190 EUR TTC, après réalisation, lors de l'entrée dans les lieux.
Voir le plan du lot
Numéro commercial : B108
Référence du bien : 0046366
Caractéristique(s) de l'immeuble
Résidence sécurisée
Ascenseur
Espaces verts
Local à vélo
Caractéristique(s) du logement
Surface habitable : 62,71 m²
Loggia (8,74 m²)
1er étage
Eau chaude individuelle - Chaudière à gaz
Chauffage individuel - Chaudière à gaz
Cuisine : Aménagée et équipée
Placard(s)
Annexes
Parking
Conditions financières
Loyer hors charges : 671 EUR
Montant du dépôt de garantie : 671 EUR
Provision sur charges : 57 EUR
Honoraires TTC à la charge du locataire : 632 EUR
Honoraires TTC états des lieux locataire : 190 EUR
Ajoutez vos emplacements préférés pour calculer le temps de trajet depuis ce bien.
Pour toute demande de renseignements complémentaires, demander à visiter le bien ou tout simplement déposer votre dossier de location...N'hésitez pas à nous contacter !
0 809 102 880
Service gratuit+ prix appel
Du lundi au vendredi de 8h30 à 18h00Le samedi de 8h30 à 17h00
Appartement - 3 pièces
CESSON SEVIGNE
849EUR/mois
3ème étage
64,5 m²
DPE : C
Appartement - 2 pièces
541,47EUR/mois
Rez-de-chaussée
42,87 m²
BETTON
531,85EUR/mois
40,85 m²
Fermer la fenêtre de dialogue
LEGANCY - Appartement - 3 pièces - 1 / 3
Intéressé(e) par ce logement ?
Vous êtes intéressé(e) pour louer ce logement, vous souhaitez le visiter ? Constituez votre candidature complète en quelques minutes, en cliquant sur le lien ci-dessous « Dépôt de candidature » !
Vos informations et données sont traitées par AFEDIM Gestion, dans le cadre de votre demande de visite et de l’analyse de la solvabilité de votre candidature.
Déposer une candidature
Nous joindre par téléphone
Supprimer le favori
Ajouter aux favoris
Pour bénéficier de cette fonctionalité, vous devez vous connecter
Login nécessaire
Supprimer le point d'intérêt