Louer Détail de l'annonce

Location Appartement 3 pièces de 65m² à 774 EUR/mois à CARQUEFOU

CLOS LEONTINE - Appartement - 3 pièces
A propos de ce bien :

774EUR / mois

Charges comprises

  • Appartement
  • 4 allée Christine de Pisan
    44470 CARQUEFOU
  • 3 pièces
  • 64,88m²
  • 2ème étage
  • Disponibilité immédiate
  • DPE : B

Location soumise au respect d'un plafond de ressources/revenus

Calculer le plafond de ressources

Ce bien vous est proposé par notre filiale :

AFEDIM Gestion
Mes notes

Ce bien a attiré votre attention ?

Retrouvez vos notes personnelles en vous connectant à votre espace.

Connexion

Pas encore de compte ? Créez un espace utilisateur AFEDIM.

Description du logement

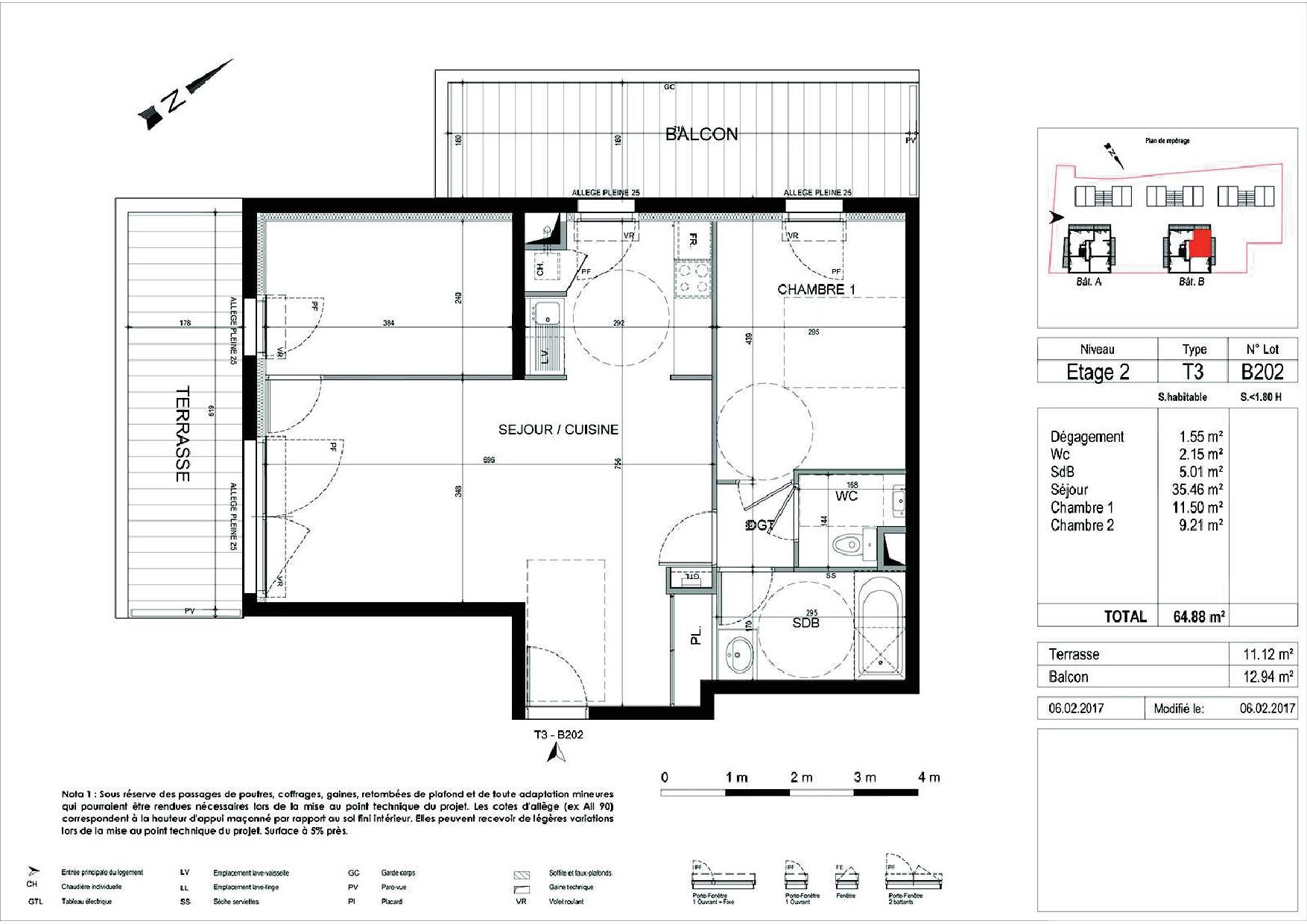
CARQUEFOU - proche des transports, commerces et écoles, nous vous proposons dans la résidence CLOS LEONTINE, un appartement T3 n°B202 de 64.88 m². Situé 2ème étage du bâtiment B, il comprend un séjour de 35.46m² avec coin cuisine ouverte donnant sur une terrasse de 11.12m², deux chambres de 11.50m² et de 9.21m², un dégagement de 1.55m² et une salle de bains de 5.01m² avec WC séparés. A disposition, deux places de parking n°21 et 22. Chauffage et eau chaude individuel au gaz. Entretien parties communes, ascenseur et espaces verts communs, compris dans les provisions sur charges mensuelles et donnant lieu à une régularisation annuelle. Les honoraires de location sont facturés directement au locataire par le partenaire pour 654 EUR TTC. Quant aux honoraires de rédaction des états des lieux, ils sont facturés par AFEDIM Gestion pour 196 EUR TTC, après réalisation, lors de l'entrée dans les lieux. Plus de détails sur notre site internet AFEDIM.


Voir le plan du lot


Numéro commercial : B202

Référence du bien : 0046816


Caractéristique(s) du logement

  • Surface habitable : 64,88 m²

  • Terrasse (11,12 m²)

  • Balcon (12,94 m²)

  • 2ème étage

  • Eau chaude individuelle - Chaudière à gaz

  • Chauffage individuel - Chaudière à gaz

  • Orientation : Sud-Ouest

  • Placard(s)


Annexes

  • Parking


Conditions financières

  • Loyer hors charges : 695 EUR

  • Montant du dépôt de garantie : 695 EUR

  • Provision sur charges : 79 EUR

  • Honoraires TTC à la charge du locataire : 654 EUR

  • Honoraires TTC états des lieux locataire : 196 EUR


Bilan énergétique


Performance du logementGaz à effet de serre

Échelle de performance énergétique s'étalant du niveau A, correspondant à un logement extrêmement performant, au niveau G, correspondant à un logement extrêmement peu performant. Les niveaux F et G sont qualifiés de passoires énergétiques. La consommation (énergie primaire) est de 58 kWh/m².an et est associée à une émission de 10 kg de dioxyde de carbone/m².an (voir détail de l'émission de gaz à effet de serre ci-après), cela correspond à une performance énergétique de niveau B.

Échelle d'émissions des gaz à effet de serre s'étalant du niveau A, correspondant à peu d'émission de CO2, au niveau G, correspondant à des émissions très importantes. Avec une émission de 10 kg de dioxyde de carbone/m²/an, l'émission de gaz à effet de serre est de niveau B.


Date du dernier diagnostic : 27/03/2026
Montant estimé des dépenses annuelles d'énergie pour un usage standard

Les coûts sont estimés en fonction des caractéristiques du logement et pour une utilisation sur 5 usages (chauffage, eau chaude sanitaire, climatisation, éclairage, auxiliaires).


entre 365 EUR et 365 EUR par an


Prix moyens des énergies indexés sur les années 2021, 2022 et 2023 (abonnements compris)

Etat des risques
Consultez l'état des risques réglementés pour l'information des acquéreurs et des locataires ici
Les informations sur les risques auxquels ce bien est exposé sont disponibles sur le site Géorisques : www.georisques.gouv.fr
Localisation du bien
Vos temps de trajet moyen
  • Ajouter un point d'intérêt personnalisé
 Nature du lieuAdresseDurée du trajet en voitureDurée du trajet en transport en communDurée du trajet en véloDurée du trajet à piedActions    Actions

Ce bien a attiré votre attention ?

Ajoutez vos emplacements préférés pour calculer le temps de trajet depuis ce bien.

Connexion

Pas encore de compte ? Créez un espace utilisateur AFEDIM.

OK X
Nous contacter

Pour toute demande de renseignements complémentaires, demander à visiter le bien ou tout simplement déposer votre dossier de location...
N'hésitez pas à nous contacter !


Autres annonces à proximité