Louer Détail de l'annonce

Location Appartement 3 pièces de 62m² à 874 EUR/mois à BRUMATH

VITA NOVA - Appartement - 3 pièces
A propos de ce bien :

874EUR / mois

Charges comprises

  • Appartement
  • 5 RUE DES GRUMES
    67170 BRUMATH
  • 3 pièces
  • 62,21m²
  • 2ème étage
  • Disponibilité immédiate
  • DPE : C

Location soumise au respect d'un plafond de ressources/revenus

Calculer le plafond de ressources

Ce bien vous est proposé par notre filiale :

AFEDIM Gestion
Mes notes

Ce bien a attiré votre attention ?

Retrouvez vos notes personnelles en vous connectant à votre espace.

Connexion

Pas encore de compte ? Créez un espace utilisateur AFEDIM.

Description du logement

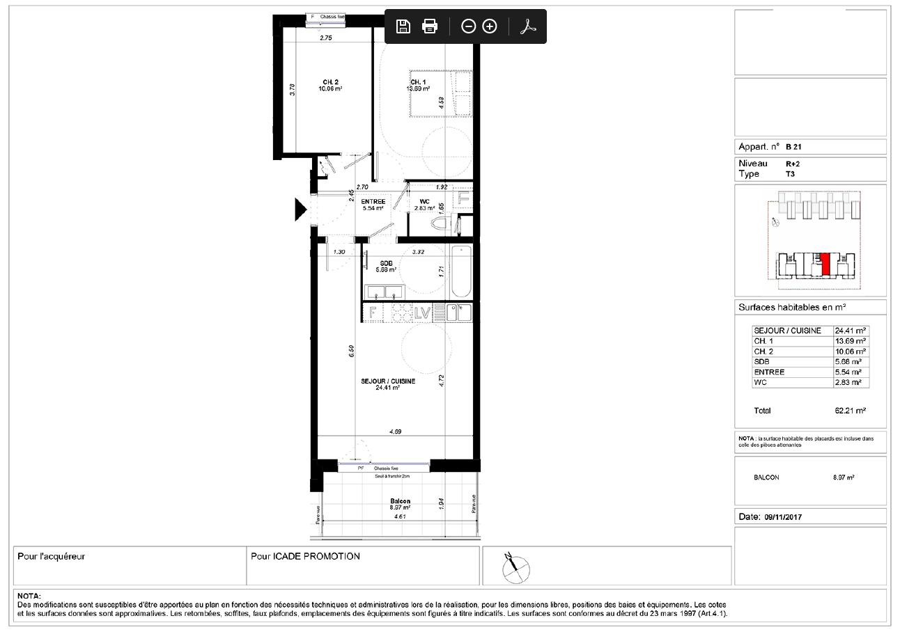
BRUMATH, dans la résidence "VITA NOVA", vous est proposé un bel appartement n°B21 de type 3 de 62.21m² au 2ème étage comprenant une entrée de 5.54m², une pièce de vie de 24.41m² avec un espace cuisine et donnant accès au balcon de 8.97m², une chambre de 13.69m², une 2ème chambre de 10.06m² et une salle de bain avec WC séparé. Jouissance exclusive d'un garage au sous-sol n°15 et une cave n°6. Eau froide, eau chaude et chauffage collectifs, entretien parties communes, entretien ascenseur et espaces verts communs, compris dans les provisions sur charges mensuelles et donnant lieu à une régularisation annuelle. Les honoraires de location TTC (à la charge du locataire) incluent le montant de rédaction des états des lieux facturé pour 186 euros TTC, après réalisation lors de l'entrée dans les lieux. Plus de détails sur notre site AFEDIM.


Voir le plan du lot


Numéro commercial : B21

Référence du bien : 0046749


Caractéristique(s) de l'immeuble

  • Ascenseur


Caractéristique(s) du logement

  • Surface habitable : 62,21 m²

  • Balcon (8,00 m²)

  • 2ème étage

  • Eau chaude collective - Chaudière à gaz

  • Chauffage collectif - Chaudière à gaz


Annexes

  • Cave

  • Garage


Conditions financières

  • Loyer hors charges : 704 EUR

  • Montant du dépôt de garantie : 704 EUR

  • Provision sur charges : 170 EUR

  • Honoraires TTC à la charge du locataire : 502 EUR

  • Honoraires TTC états des lieux locataire : 188 EUR


Bilan énergétique


Performance du logementGaz à effet de serre

Échelle de performance énergétique s'étalant du niveau A, correspondant à un logement extrêmement performant, au niveau G, correspondant à un logement extrêmement peu performant. Les niveaux F et G sont qualifiés de passoires énergétiques. La consommation (énergie primaire) est de 76 kWh/m².an et est associée à une émission de 14 kg de dioxyde de carbone/m².an (voir détail de l'émission de gaz à effet de serre ci-après), cela correspond à une performance énergétique de niveau C.

Échelle d'émissions des gaz à effet de serre s'étalant du niveau A, correspondant à peu d'émission de CO2, au niveau G, correspondant à des émissions très importantes. Avec une émission de 14 kg de dioxyde de carbone/m²/an, l'émission de gaz à effet de serre est de niveau C.


Date du dernier diagnostic : 04/12/2025
Montant estimé des dépenses annuelles d'énergie pour un usage standard

Les coûts sont estimés en fonction des caractéristiques du logement et pour une utilisation sur 5 usages (chauffage, eau chaude sanitaire, climatisation, éclairage, auxiliaires).


entre 306 EUR et 306 EUR par an


Prix moyens des énergies indexés sur les années 2021, 2022 et 2023 (abonnements compris)

Etat des risques
Consultez l'état des risques réglementés pour l'information des acquéreurs et des locataires ici
Les informations sur les risques auxquels ce bien est exposé sont disponibles sur le site Géorisques : www.georisques.gouv.fr
Localisation du bien
Vos temps de trajet moyen
  • Ajouter un point d'intérêt personnalisé
 Nature du lieuAdresseDurée du trajet en voitureDurée du trajet en transport en communDurée du trajet en véloDurée du trajet à piedActions    Actions

Ce bien a attiré votre attention ?

Ajoutez vos emplacements préférés pour calculer le temps de trajet depuis ce bien.

Connexion

Pas encore de compte ? Créez un espace utilisateur AFEDIM.

OK X
Nous contacter

Pour toute demande de renseignements complémentaires, demander à visiter le bien ou tout simplement déposer votre dossier de location...
N'hésitez pas à nous contacter !