Louer Détail de l'annonce

Location Appartement 2 pièces de 47m² à 547 EUR/mois à ARRAS

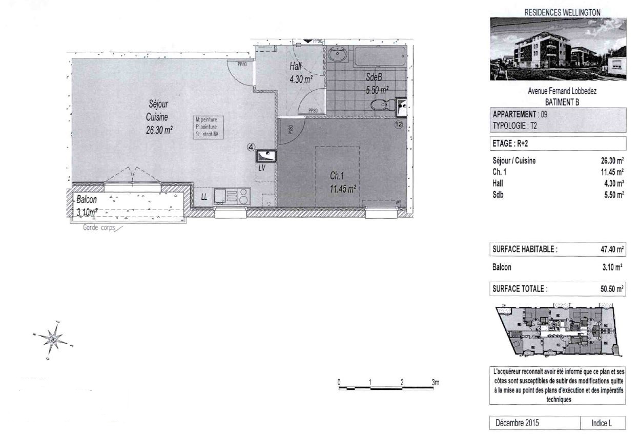
RESIDENCES WELLINGTON - Appartement - 2 pièces
A propos de ce bien :

546,62EUR / mois

Charges comprises

  • Appartement
  • 103 AV. FERNAND LOBBEDEZ
    62000 ARRAS
  • 2 pièces
  • 47,4m²
  • 2ème étage
  • Disponible dès le 24/05/2026
  • DPE : C

Location soumise au respect d'un plafond de ressources/revenus

Calculer le plafond de ressources

Ce bien vous est proposé par notre filiale :

AFEDIM Gestion
Mes notes

Ce bien a attiré votre attention ?

Retrouvez vos notes personnelles en vous connectant à votre espace.

Connexion

Pas encore de compte ? Créez un espace utilisateur AFEDIM.

Description du logement

Au cour de la ville d'Arras, proche de toutes les commodités et entouré d'espaces verts, dans la résidence "Les Résidences Wellington", nous vous proposons un appartement T2 n°9 de 47,40m² avec balcon de 3.10m² exposée Sud-Ouest, situé au 2eme étage du bâtiment B, avec ascenseur. Il comprend une entrée, un séjour avec cuisine ouverte aménagée et équipée, une chambre, une salle de bain avec WC. A l'extérieur un parking n°32. Eau chaude et chauffage gaz individuels, entretien des parties communes et espaces verts communs, compris dans les provisions sur charges mensuelles et donnant lieu à une régularisation annuelle. Les honoraires de location TTC (à la charge du locataire) incluent le montant de rédaction des états des lieux facturé pour 143 euros TTC, après réalisation lors de l'entrée dans les lieux. Plus de détails sur notre site AFEDIM. Disponible à partir du 25/05/2026.


Voir le plan du lot


Numéro commercial : B09

Référence du bien : 0027368


Caractéristique(s) de l'immeuble

  • Résidence sécurisée

  • Ascenseur

  • Espaces verts


Caractéristique(s) du logement

  • Surface habitable : 47,4 m²

  • Balcon (3,10 m²)

  • 2ème étage

  • Eau chaude individuelle - Chaudière à gaz

  • Chauffage individuel - Chaudière à gaz

  • Cuisine : Aménagée et équipée

  • Orientation : Sud-Ouest

  • Placard(s)


Annexes

  • Parking


Conditions financières

  • Loyer hors charges : 491,62 EUR

  • Montant du dépôt de garantie : 491,62 EUR

  • Provision sur charges : 55 EUR

  • Honoraires TTC à la charge du locataire : 382 EUR

  • Honoraires TTC états des lieux locataire : 143 EUR


Bilan énergétique


Performance du logementGaz à effet de serre

Échelle de performance énergétique s'étalant du niveau A, correspondant à un logement extrêmement performant, au niveau G, correspondant à un logement extrêmement peu performant. Les niveaux F et G sont qualifiés de passoires énergétiques. La consommation (énergie primaire) est de 75 kWh/m².an et est associée à une émission de 13 kg de dioxyde de carbone/m².an (voir détail de l'émission de gaz à effet de serre ci-après), cela correspond à une performance énergétique de niveau C.

Échelle d'émissions des gaz à effet de serre s'étalant du niveau A, correspondant à peu d'émission de CO2, au niveau G, correspondant à des émissions très importantes. Avec une émission de 13 kg de dioxyde de carbone/m²/an, l'émission de gaz à effet de serre est de niveau C.


Date du dernier diagnostic : 24/04/2023
Montant estimé des dépenses annuelles d'énergie pour un usage standard

Les coûts sont estimés en fonction des caractéristiques du logement et pour une utilisation sur 5 usages (chauffage, eau chaude sanitaire, climatisation, éclairage, auxiliaires).


entre 340 EUR et 490 EUR par an


Prix moyens des énergies indexés sur l'année 2021 (abonnement compris)

Etat des risques
Consultez l'état des risques réglementés pour l'information des acquéreurs et des locataires ici
Les informations sur les risques auxquels ce bien est exposé sont disponibles sur le site Géorisques : www.georisques.gouv.fr
Localisation du bien
Vos temps de trajet moyen
  • Ajouter un point d'intérêt personnalisé
 Nature du lieuAdresseDurée du trajet en voitureDurée du trajet en transport en communDurée du trajet en véloDurée du trajet à piedActions    Actions

Ce bien a attiré votre attention ?

Ajoutez vos emplacements préférés pour calculer le temps de trajet depuis ce bien.

Connexion

Pas encore de compte ? Créez un espace utilisateur AFEDIM.

OK X
Nous contacter

Pour toute demande de renseignements complémentaires, demander à visiter le bien ou tout simplement déposer votre dossier de location...
N'hésitez pas à nous contacter !


Autres annonces à proximité