Louer Détail de l'annonce

Location Appartement 2 pièces de 39m² à 541 EUR/mois à ANGERS

PARC2CE - Appartement - 2 pièces
A propos de ce bien :

540,85EUR / mois

Charges comprises

  • Appartement
  • 104 RUE DES PONTS DE CE BAT C - APPT C408 - 4EME
    49100 ANGERS
  • 2 pièces
  • 39,07m²
  • 4ème étage
  • Disponible dès le 20/03/2026
  • DPE : B

Location soumise au respect d'un plafond de ressources/revenus

Calculer le plafond de ressources

Ce bien vous est proposé par notre filiale :

AFEDIM Gestion
Mes notes

Ce bien a attiré votre attention ?

Retrouvez vos notes personnelles en vous connectant à votre espace.

Connexion

Pas encore de compte ? Créez un espace utilisateur AFEDIM.

Description du logement

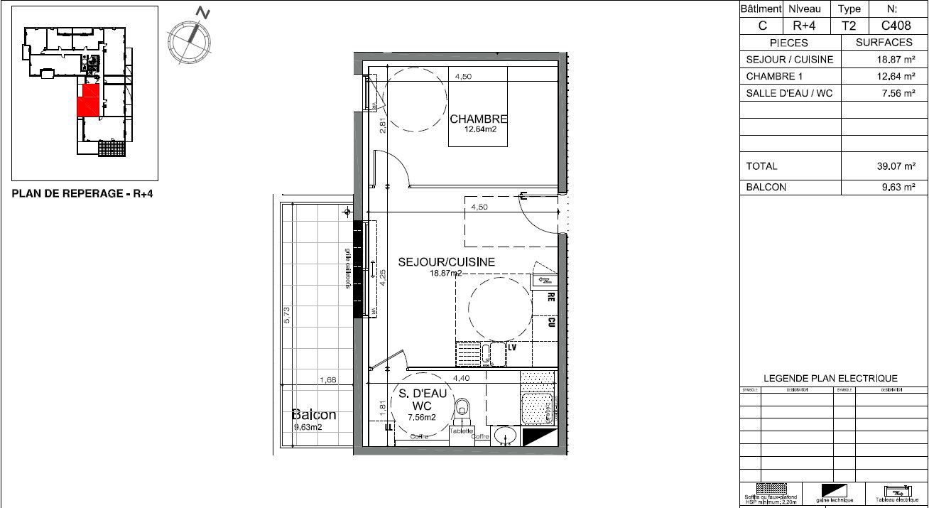
ANGERS, à 8 minutes en voiture du centre-ville d'Angers et à proximité des services (commerces, transports, écoles ), c'est ici que nous vous proposons un appartement T2 (n°C408) d'une superficie de 39.07 m² situé au 4ème étage avec ascenseur du bâtiment C de la résidence PARC2Cé. Il se compose d'un séjour-cuisine spacieux de 18.87 m² donnant sur un balcon de 9.63 m², d'une salle d'eau avec WC et d'une chambre de 12,64 m². Au sous-sol, un emplacement de parking privé P38C. Chauffage individuel électrique. Eau chaude, eau froide, entretien parties communes, entretien ascenseur et espaces verts communs, compris dans les provisions sur charges mensuelles et donnant lieu à une régularisation annuelle. Les honoraires de location TTC (à la charge du locataire) incluent le montant de rédaction des états des lieux facturé pour 118 euros TTC, après réalisation lors de l'entrée dans les lieux. Disponible le 19/03/2026. Pour plus de détails sur ce logement, vous pouvez consulter la fiche descriptive de ce bien, sur votre site internet AFEDIM


Voir le plan du lot


Numéro commercial : C408

Référence du bien : 0025541


Caractéristique(s) de l'immeuble

  • Résidence sécurisée

  • Antenne TV

  • Câble

  • Ascenseur

  • Espaces verts

  • Local à vélo


Caractéristique(s) du logement

  • Surface habitable : 39,07 m²

  • Balcon (9,00 m²)

  • 4ème étage

  • Eau chaude collective

  • Chauffage individuel - Electrique

  • Cuisine : Non aménagée et non équipée

  • Placard(s)


Annexes

  • Parking


Conditions financières

  • Loyer hors charges : 470,85 EUR

  • Montant du dépôt de garantie : 470,85 EUR

  • Provision sur charges : 70 EUR

  • Honoraires TTC à la charge du locataire : 315 EUR

  • Honoraires TTC états des lieux locataire : 118 EUR


Bilan énergétique


Classe énergieIndice d'émission de gaz à effet de serre

Classe énergie

Logement économe
0 à 50
51 à 90
80 kWh/m².an
91 à 150
151 à 230
231 à 330
331 à 450
451 et +
Logement énergivore

Indice d'émission de gaz à effet de serre (GES)

Faible émission de GES
0 à 5
4 kg/m².an
6 à 10
11 à 20
21 à 35
36 à 55
56 à 80
81 et +
Forte émission de GES

Date du dernier diagnostic (DPE Ancienne Version): 26/05/2020
Montant estimé des dépenses annuelles d'énergie pour un usage standard

248,32 EUR par an
Prix moyens des énergies indexés sur l'année 2015 (abonnement compris)

Etat des risques
Consultez l'état des risques réglementés pour l'information des acquéreurs et des locataires ici
Les informations sur les risques auxquels ce bien est exposé sont disponibles sur le site Géorisques : www.georisques.gouv.fr
Localisation du bien
Vos temps de trajet moyen
  • Ajouter un point d'intérêt personnalisé
 Nature du lieuAdresseDurée du trajet en voitureDurée du trajet en transport en communDurée du trajet en véloDurée du trajet à piedActions    Actions

Ce bien a attiré votre attention ?

Ajoutez vos emplacements préférés pour calculer le temps de trajet depuis ce bien.

Connexion

Pas encore de compte ? Créez un espace utilisateur AFEDIM.

OK X
Nous contacter

Pour toute demande de renseignements complémentaires, demander à visiter le bien ou tout simplement déposer votre dossier de location...
N'hésitez pas à nous contacter !


Autres annonces à proximité