Louer Détail de l'annonce

Location Appartement 1 pièce de 25m² à 507 EUR/mois à AIX EN PROVENCE

AIXENS - Appartement - 1 pièce
A propos de ce bien :

507,49EUR / mois

Charges comprises

  • Appartement
  • 55 RUE MAGDELEINE HUTIN
    13100 AIX EN PROVENCE
  • 1 pièce
  • 25,23m²
  • 2ème étage
  • Disponibilité immédiate
  • DPE : B

Location soumise au respect d'un plafond de ressources/revenus

Calculer le plafond de ressources

Ce bien vous est proposé par notre filiale :

AFEDIM Gestion
Mes notes

Ce bien a attiré votre attention ?

Retrouvez vos notes personnelles en vous connectant à votre espace.

Connexion

Pas encore de compte ? Créez un espace utilisateur AFEDIM.

Description du logement

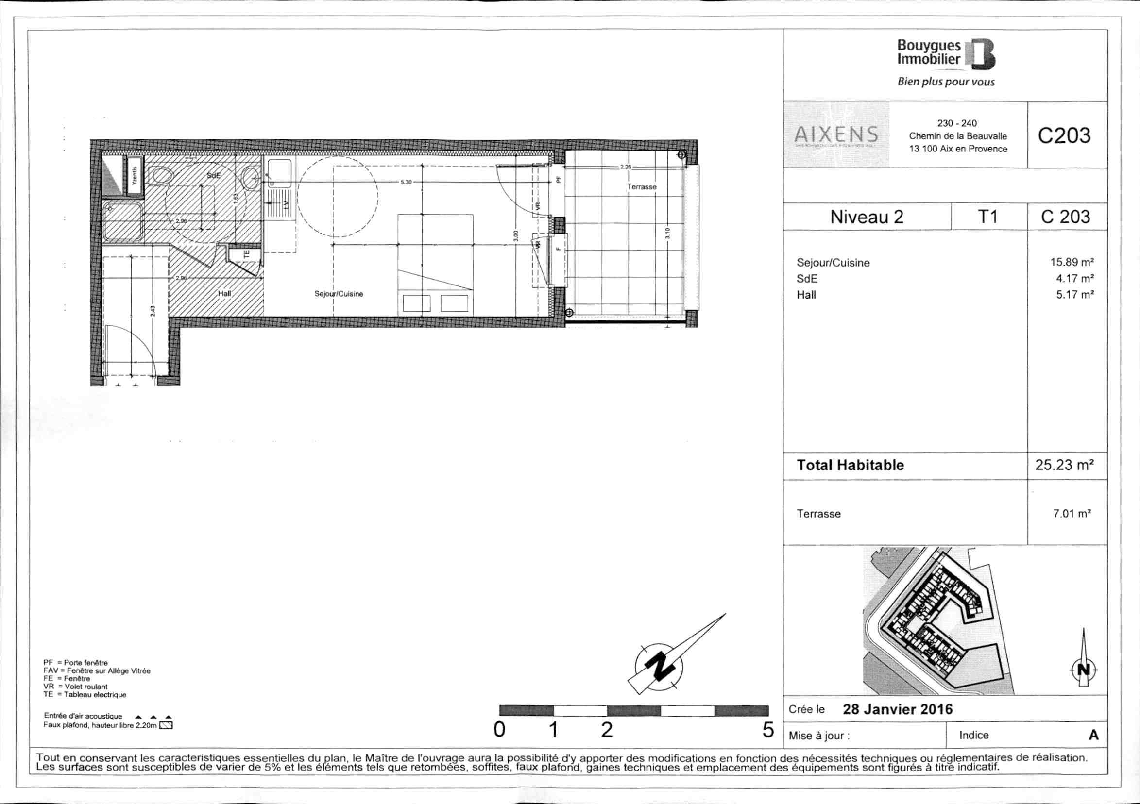
A AIX EN PROVENCE, dans la résidence AIXENS, nous vous proposons un appartement de type 1, situé au deuxième étage avec ascenseur, avec une agréable terrasse d'environ 7 m². Logement de 25,23 m² avec son hall d'entrée, sa pièce de vie et son espace cuisine aménagé donnant sur la terrasse, salle d'eau avec douche et WC. Au niveau -2, un garage portant le numéro 215. Eau chaude individuelle et chauffage collectif. Entretien parties communes, entretien ascenseur et espaces verts communs, compris dans les provisions sur charges mensuelles et donnant lieu à une régularisation annuelle. Les honoraires de location TTC (à la charge du locataire) incluent le montant de rédaction des états des lieux facturé pour 76euros TTC, après réalisation lors de l'entrée dans les lieux. Disponible le 21/02/2026. Pour plus de détails sur ce logement, vous pouvez consulter la fiche descriptive de ce bien, sur votre site internet AFEDIM.


Voir le plan du lot


Numéro commercial : C203

Référence du bien : 0032116


Caractéristique(s) de l'immeuble

  • Antenne TV

  • Ascenseur


Caractéristique(s) du logement

  • Surface habitable : 25,23 m²

  • Terrasse (7,00 m²)

  • 2ème étage

  • Eau chaude collective - Chaudière à gaz

  • Chauffage collectif - Urbain

  • Cuisine : Kitchenette

  • Placard(s)


Annexes

  • Garage


Conditions financières

  • Loyer hors charges : 472,49 EUR

  • Montant du dépôt de garantie : 472,49 EUR

  • Provision sur charges : 35 EUR

  • Honoraires TTC à la charge du locataire : 254 EUR

  • Honoraires TTC états des lieux locataire : 76 EUR


Bilan énergétique


Performance du logementGaz à effet de serre

Échelle de performance énergétique s'étalant du niveau A, correspondant à un logement extrêmement performant, au niveau G, correspondant à un logement extrêmement peu performant. Les niveaux F et G sont qualifiés de passoires énergétiques. La consommation (énergie primaire) est de 89 kWh/m².an et est associée à une émission de 8 kg de dioxyde de carbone/m².an (voir détail de l'émission de gaz à effet de serre ci-après), cela correspond à une performance énergétique de niveau B.

Échelle d'émissions des gaz à effet de serre s'étalant du niveau A, correspondant à peu d'émission de CO2, au niveau G, correspondant à des émissions très importantes. Avec une émission de 8 kg de dioxyde de carbone/m²/an, l'émission de gaz à effet de serre est de niveau B.


Date du dernier diagnostic : 22/12/2025
Montant estimé des dépenses annuelles d'énergie pour un usage standard

Les coûts sont estimés en fonction des caractéristiques du logement et pour une utilisation sur 5 usages (chauffage, eau chaude sanitaire, climatisation, éclairage, auxiliaires).


entre 160 EUR et 260 EUR par an


Prix moyens des énergies indexés sur l'année 2018 (abonnement compris)

Etat des risques
Consultez l'état des risques réglementés pour l'information des acquéreurs et des locataires ici
Les informations sur les risques auxquels ce bien est exposé sont disponibles sur le site Géorisques : www.georisques.gouv.fr
Localisation du bien
Vos temps de trajet moyen
  • Ajouter un point d'intérêt personnalisé
 Nature du lieuAdresseDurée du trajet en voitureDurée du trajet en transport en communDurée du trajet en véloDurée du trajet à piedActions    Actions

Ce bien a attiré votre attention ?

Ajoutez vos emplacements préférés pour calculer le temps de trajet depuis ce bien.

Connexion

Pas encore de compte ? Créez un espace utilisateur AFEDIM.

OK X
Nous contacter

Pour toute demande de renseignements complémentaires, demander à visiter le bien ou tout simplement déposer votre dossier de location...
N'hésitez pas à nous contacter !