Louer Résultats de votre recherche Détail de l'annonce

Location Appartement 2 pièces de 45m² à 617 EUR/mois à TOULOUSE

44 GRAND PARC - Appartement - 2 pièces
A propos de ce bien :

617,28EUR / mois

Charges comprises

  • Appartement
  • 44 AVENUE DE FRONTON
    31200 TOULOUSE
  • 2 pièces
  • 44,7m²
  • Rez-de-chaussée
  • Disponible dès le 23/02/2026
  • DPE : C

Location soumise au respect d'un plafond de ressources/revenus

Calculer le plafond de ressources

Ce bien vous est proposé par notre filiale :

AFEDIM Gestion
Mes notes

Ce bien a attiré votre attention ?

Retrouvez vos notes personnelles en vous connectant à votre espace.

Connexion

Pas encore de compte ? Créez un espace utilisateur AFEDIM.

Description du logement

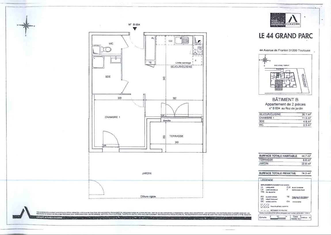
Toulouse intra muros, quartier des Minimes avec transport, bus et métro à 300 mètres. Commerces, école primaire, collège et lycée à proximité. Dans la résidence 44 GRAND PARC, vous est proposé un appartement n°B004 de type 2 de 44,70m² sis en rez-de-jardin. Pièce de vie de 26m² avec espace cuisine donnant sur une terrasse de 6,8m² et un jardin de 22,8m², une chambre, une salle d'eau et WC indépendant. Chauffage, eau chaude individuels gaz. Eau froide, entretien parties communes, entretien ascenseur et espaces verts communs, compris dans les provisions sur charges mensuelles et donnant lieu à une régularisation annuelle. Les honoraires de location TTC (à la charge du locataire) incluent le montant de rédaction des états des lieux facturé pour 110,00 euros TTC, après réalisation lors de l'entrée dans les lieux. Pour plus de détails sur ce logement, vous pouvez consulter la fiche descriptive de ce bien, sur notre site internet AFEDIM.


Voir le plan du lot


Numéro commercial : B004

Référence du bien : 0035769


Caractéristique(s) de l'immeuble

  • Résidence sécurisée

  • Antenne TV

  • Ascenseur

  • Espaces verts

  • Local à vélo


Caractéristique(s) du logement

  • Surface habitable : 44,7 m²

  • Rez-de-chaussée

  • Eau chaude individuelle - Chaudière à gaz

  • Chauffage individuel - Chaudière à gaz

  • Orientation : Sud

  • Placard(s)


Conditions financières

  • Loyer hors charges : 571,28 EUR

  • Montant du dépôt de garantie : 571,28 EUR

  • Provision sur charges : 46 EUR

  • Honoraires TTC à la charge du locataire : 451 EUR

  • Honoraires TTC états des lieux locataire : 135 EUR


Bilan énergétique


Performance du logementGaz à effet de serre

Échelle de performance énergétique s'étalant du niveau A, correspondant à un logement extrêmement performant, au niveau G, correspondant à un logement extrêmement peu performant. Les niveaux F et G sont qualifiés de passoires énergétiques. La consommation (énergie primaire) est de 86 kWh/m².an et est associée à une émission de 16 kg de dioxyde de carbone/m².an (voir détail de l'émission de gaz à effet de serre ci-après), cela correspond à une performance énergétique de niveau C.

Échelle d'émissions des gaz à effet de serre s'étalant du niveau A, correspondant à peu d'émission de CO2, au niveau G, correspondant à des émissions très importantes. Avec une émission de 16 kg de dioxyde de carbone/m²/an, l'émission de gaz à effet de serre est de niveau C.


Date du dernier diagnostic : 22/01/2025
Montant estimé des dépenses annuelles d'énergie pour un usage standard

Les coûts sont estimés en fonction des caractéristiques du logement et pour une utilisation sur 5 usages (chauffage, eau chaude sanitaire, climatisation, éclairage, auxiliaires).


entre 447 EUR et 605 EUR par an


Prix moyens des énergies indexés sur l'année 2025 (abonnement compris)

Etat des risques
Consultez l'état des risques réglementés pour l'information des acquéreurs et des locataires ici
Les informations sur les risques auxquels ce bien est exposé sont disponibles sur le site Géorisques : www.georisques.gouv.fr
Localisation du bien
Vos temps de trajet moyen
  • Ajouter un point d'intérêt personnalisé
 Nature du lieuAdresseDurée du trajet en voitureDurée du trajet en transport en communDurée du trajet en véloDurée du trajet à piedActions    Actions

Ce bien a attiré votre attention ?

Ajoutez vos emplacements préférés pour calculer le temps de trajet depuis ce bien.

Connexion

Pas encore de compte ? Créez un espace utilisateur AFEDIM.

OK X
Nous contacter

Pour toute demande de renseignements complémentaires, demander à visiter le bien ou tout simplement déposer votre dossier de location...
N'hésitez pas à nous contacter !