Louer Résultats de votre recherche Détail de l'annonce

Location Appartement 2 pièces de 40m² à 1 108 EUR/mois à RUEIL MALMAISON

RUE DES BONS RAISINS - Appartement - 2 pièces
A propos de ce bien :

1 107,79EUR / mois

Charges comprises

  • Appartement
  • 3 RUE DU GENERAL GUY DE BOISSOUDY
    92500 RUEIL MALMAISON
  • 2 pièces
  • 39,6m²
  • 3ème étage
  • Disponibilité immédiate
  • DPE : C

Location soumise au respect d'un plafond de ressources/revenus

Calculer le plafond de ressources

Ce bien vous est proposé par notre filiale :

AFEDIM Gestion
Mes notes

Ce bien a attiré votre attention ?

Retrouvez vos notes personnelles en vous connectant à votre espace.

Connexion

Pas encore de compte ? Créez un espace utilisateur AFEDIM.

Description du logement

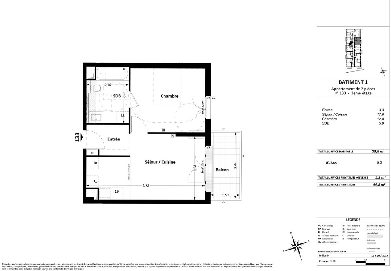
RUEIL MALMAISON - Dans la résidence neuve RUE DES BONS RAISONS, située au cour d'un ilot verdoyant, nous vous proposons un appartement T2 N°133 au 3ème étage comprenant une entrée, un séjour avec coin cuisine donnant sur un balcon, une chambre avec un accès privatif à la salle de bain avec WC. Cet appartement dispose également d'une place de stationnement en sous-sol N°103. Chauffage collectif urbain. Eau chaude, entretiens parties communes et espaces verts compris dans les provisions sur charges mensuelles et donnant lieu à une régularisation annuelle. Les honoraires de location TTC (à la charge du locataire) incluent le montant de rédaction des états des lieux facturé pour 118 euros TTC, après réalisation de l'entrée dans les lieux. Pour plus de détails sur ce logement, vous pouvez consulter la fiche descriptive de ce bien, sur notre site internet afedim.fr DISPONIBLE le 13/10/2025


Voir le plan du lot


Numéro commercial : 0133

Référence du bien : 0025969


Caractéristique(s) de l'immeuble

  • Résidence sécurisée

  • Antenne TV

  • Fibre optique

  • Ascenseur

  • Local à vélo


Caractéristique(s) du logement

  • Surface habitable : 39,6 m²

  • Balcon (5,20 m²)

  • 3ème étage

  • Eau chaude collective

  • Chauffage collectif - Urbain

  • Cuisine : Non aménagée et non équipée

  • Orientation : Sud-Est

  • Placard(s)


Annexes

  • Parking


Conditions financières

  • Loyer hors charges : 922,79 EUR

  • Montant du dépôt de garantie : 922,79 EUR

  • Provision sur charges : 185 EUR

  • Honoraires TTC à la charge du locataire : 475 EUR

  • Honoraires TTC états des lieux locataire : 118 EUR


Bilan énergétique


Performance du logementGaz à effet de serre

Échelle de performance énergétique s'étalant du niveau A, correspondant à un logement extrêmement performant, au niveau G, correspondant à un logement extrêmement peu performant. Les niveaux F et G sont qualifiés de passoires énergétiques. La consommation (énergie primaire) est de 106 kWh/m².an et est associée à une émission de 12 kg de dioxyde de carbone/m².an (voir détail de l'émission de gaz à effet de serre ci-après), cela correspond à une performance énergétique de niveau C.

Échelle d'émissions des gaz à effet de serre s'étalant du niveau A, correspondant à peu d'émission de CO2, au niveau G, correspondant à des émissions très importantes. Avec une émission de 12 kg de dioxyde de carbone/m²/an, l'émission de gaz à effet de serre est de niveau C.


Date du dernier diagnostic : 28/09/2025
Montant estimé des dépenses annuelles d'énergie pour un usage standard

Les coûts sont estimés en fonction des caractéristiques du logement et pour une utilisation sur 5 usages (chauffage, eau chaude sanitaire, climatisation, éclairage, auxiliaires).


entre 360 EUR et 530 EUR par an


Prix moyens des énergies indexés sur l'année 2021 (abonnement compris)

Etat des risques
Consultez l'état des risques réglementés pour l'information des acquéreurs et des locataires ici
Les informations sur les risques auxquels ce bien est exposé sont disponibles sur le site Géorisques : www.georisques.gouv.fr
Localisation du bien
Vos temps de trajet moyen
  • Ajouter un point d'intérêt personnalisé
 Nature du lieuAdresseDurée du trajet en voitureDurée du trajet en transport en communDurée du trajet en véloDurée du trajet à piedActions    Actions

Ce bien a attiré votre attention ?

Ajoutez vos emplacements préférés pour calculer le temps de trajet depuis ce bien.

Connexion

Pas encore de compte ? Créez un espace utilisateur AFEDIM.

OK X
Nous contacter

Pour toute demande de renseignements complémentaires, demander à visiter le bien ou tout simplement déposer votre dossier de location...
N'hésitez pas à nous contacter !


Autres annonces à proximité